Modern Family Residence with Natural Integration in Jakarta: CASA A by Wahana Architects
Wahana Architects designs CASA A in Jakarta, a modern home blending family life with lush nature.
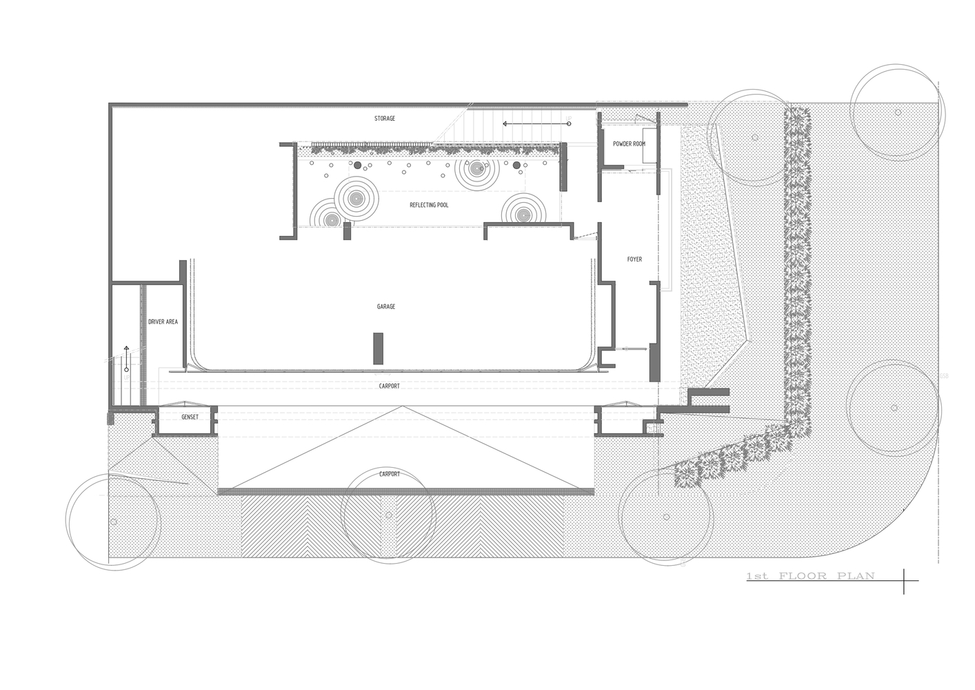
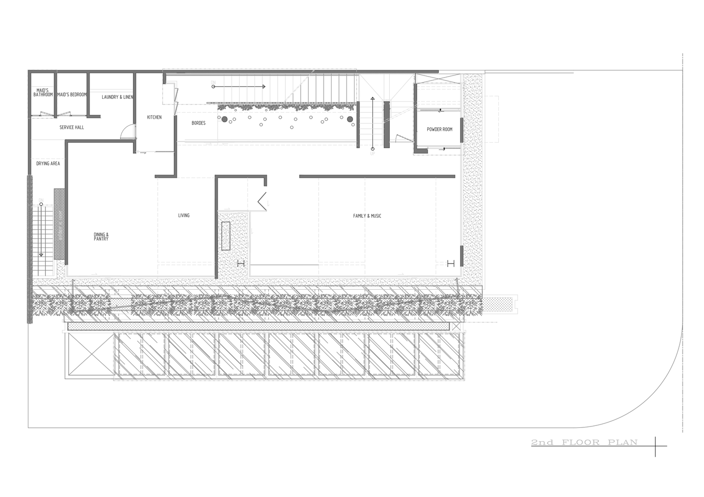
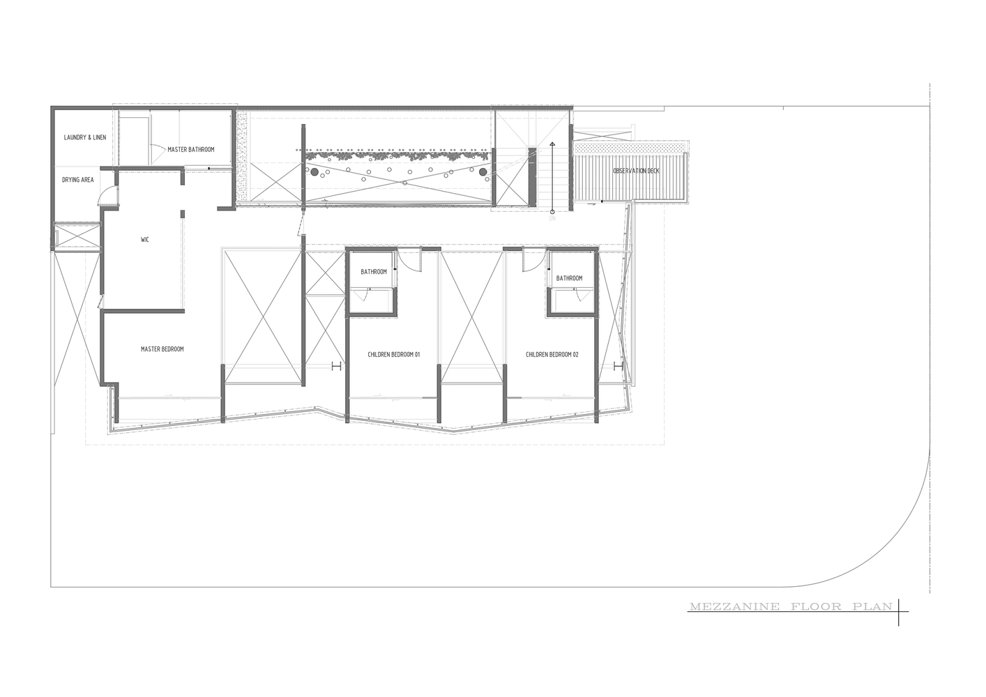
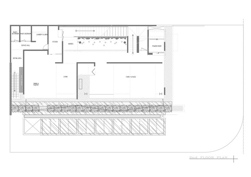
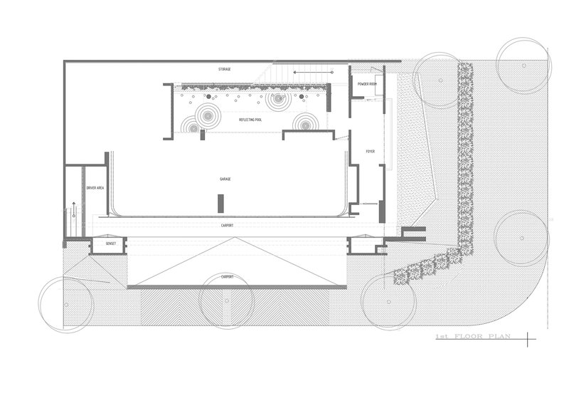
Nestled in the heart of an urban housing complex in Jakarta, Indonesia, CASA A emerges as a beacon of modern residential architecture that harmoniously blends with its lush green surroundings. Designed by Wahana Architects and completed in 2023, this 700 square meter home is a testament to the thoughtful integration of nature into everyday living spaces, catering to a family's dynamic lifestyle.


Design Inspiration and Concept
The design of CASA A was inspired by the notion of living within a dark cave, allowing the brightness and vitality of nature to be the protagonist from within the home. This concept led to the creation of a residence where the lush external environment becomes a central element of the interior experience, crafting views and connections that celebrate the outdoors.







Family-Centric Spaces
CASA A is tailored to accommodate a modern family with diverse hobbies and a shared love for spending quality time together. Wahana Architects meticulously designed the home's layout, scale, materials, and details to foster family intimacy and warmth. The house features communal areas where family members can gather and enjoy each other's company while also providing personal spaces for individual activities.










Sustainability and Materiality
The architecture of CASA A is characterized by its sustainable approach and careful selection of materials that resonate with the natural context. The existing trees and green areas on the site were preserved and integrated into the design, ensuring that the home not only respects but also enhances its environmental setting.
CASA A by Wahana Architects stands as a remarkable example of how contemporary architecture can facilitate a deep connection with nature while accommodating the diverse needs of a modern family. Through its innovative design and thoughtful spatial organization, the residence offers a serene and cohesive living environment in Jakarta's urban landscape, making it a true sanctuary for its inhabitants.



All Photographs are the work of Mario Wibowo
Popular Articles
Popular articles from the community
The Ken Roberts Memorial Delineation Competition (Krob)
As the most senior architectural drawing competition currently in operation anywhere in the world, it draws hundreds of entries each year, awarding the very best submissions in a series of medium-based categories.
A Contemporary Take on Iranian Residential Architecture
A modern interior design in Mashhad that reinterprets brick, light, and spatial flow to create a warm, contemporary residential architecture.
Inverted Architecture Installation by Studio Link-Arc: Exploring the Intersection of Architecture and Living Organisms
Inverted Architecture Installation by Studio Link-Arc blends mycelium, sustainability, inverted design, ecological cycles, and urban adaptive architecture in Shenzhen.
An Miên Lumière Cafe by xưởng xép, Ho Chi Minh City, Vietnam
An industrial-inspired café where layered steel and warm light create a dynamic, immersive environment shaped by reflection, depth, and perception.
Similar Reads
You might also enjoy these articles
The Ken Roberts Memorial Delineation Competition (Krob)
As the most senior architectural drawing competition currently in operation anywhere in the world, it draws hundreds of entries each year, awarding the very best submissions in a series of medium-based categories.
Waterfront Redevelopment and Urban Revitalization in Mumbai: Forging a New Dawn for Darukhana
A transformative waterfront redevelopment project reimagining Darukhana’s shipbreaking heritage into an inclusive urban future.
OUT-OF-MAP: A Call for Postcards on Feminist Narratives of Public Space
Rhizoma Design and Research Lab invites artists, designers, architects, researchers, and students to reflect on how feminist perspectives can reshape public space. Selected works will be exhibited in Barcelona, October 2026. Submissions open until 15 April 2026.
Documentation Work on Buddhist Wooden Temple
Architectural syncretism and cultural hybridity: A comparative study of the Buddhist temples in Chattogram Hill tracks
Explore Architecture Competitions
Discover active competitions in this discipline
The International Standard for Design Portfolios
The Global Benchmark for Architecture Dissertation Awards
The Global Benchmark for Graduation Excellence
Challenge to design luxury tourism on rails
Comments (0)
Please login or sign up to add comments
No comments yet. Be the first to comment!