Modern Farmhouse Renovation: Casa E.T. by Studio Bocchi in the Italian Countryside
Casa E.T. blends historic stone farmhouse charm with modern design in a stunning Italian countryside renovation by Studio Bocchi.
Revitalizing a Historic Farmhouse
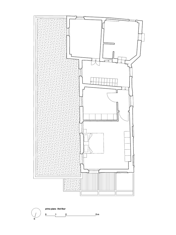
Casa E.T., renovated and extended by Studio Bocchi, is a striking example of modern farmhouse renovation in the hills of Albinea, Italy. This early 20th-century stone farmhouse, nestled on the crest of the Reggio Emilia Apennines, has undergone a sensitive yet contemporary transformation that preserves its rustic charm while introducing modern design elements. The project redefines the relationship between interior comfort, architectural heritage, and the surrounding landscape.


Blending Past and Present
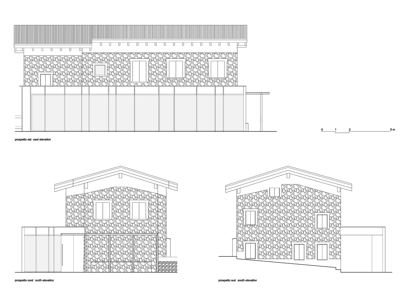
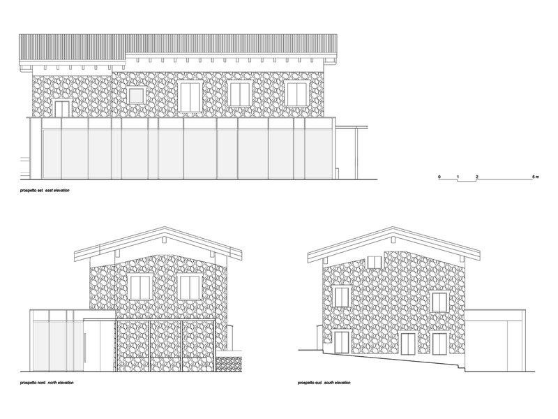
The renovation focused on expanding the ground floor to meet the homeowners’ needs for a larger living space and improved bedroom facilities. The original sloping portico was reimagined as a new living and dining area, as well as a wellness space connected to the bedroom. Retaining the concrete pillars, Studio Bocchi replaced the old wooden and tiled roof with a sleek flat roof supported by a metal structure. Original wooden beams were preserved and integrated into the new design, celebrating the building’s history while embracing a contemporary architectural language.



A Light-Filled Extension
The newly enclosed volume features continuous glass walls framed with staggered aluminum pilasters in a Cor-Ten finish, allowing the original stone wall to remain visible from the interior. This combination of transparency and texture creates a fluid connection between old and new, bringing in abundant natural light and framing panoramic views of the surrounding hills. The original living area was converted into a kitchen, connected to the new space through a large, sheet-metal-clad portal that replaced smaller historic openings.



Wellness and Connection
The bedroom now opens directly into a wellness area with a sauna, blending comfort and relaxation within the rustic farmhouse setting. The design fosters a sense of openness and connection, ensuring that both private and communal spaces feel seamlessly linked.



Transforming the Landscape
Studio Bocchi extended the renovation beyond the building envelope to completely reimagine the outdoor areas. Existing terraces were reconfigured to include an infinity pool suspended over the ridge, complete with a basement for technical systems and storage. The terracing system was expanded using reinforced and gabionized earth, creating multi-level gardens and usable green spaces. The redesign also introduced a new main entrance on the short side of the extension, framed by a metal pergola partially covered above the doorway and adorned with climbing plants.




A New Life for an Italian Icon
Casa E.T. exemplifies how modern farmhouse renovation can respect architectural heritage while enhancing livability. By combining natural materials, open layouts, and contemporary structures, Studio Bocchi has preserved the farmhouse’s historic soul while creating a home that meets today’s lifestyle demands. The result is an architectural statement that harmonizes tradition with innovation in one of Italy’s most picturesque settings.




All photographs are works of Marcello Mariana