Modern Hanok Architecture: A Contemporary Studio in Wonso-dong by See Architects
The Wonso-dong studio by See Architects blends modern hanok architecture with contemporary materials, creating a culturally rich and sustainable workspace.
The Architecture Studio in Wonso-dong by See Architects is a prime example of modern hanok architecture, where tradition and contemporary design converge. Situated in Seoul’s historic Wonso-dong district, near the Secret Garden of Changdeokgung Palace, the studio reflects Korea’s evolving architectural landscape. The project seamlessly integrates hanok-inspired elements with modern materials, creating a space that respects cultural heritage while embracing modern functionality.




Blending Tradition with Modernity
The historical significance of Wonso-dong required an architectural approach that harmonized with the area's past while addressing contemporary needs. The neighborhood, once home to Chosun-era officials, features a mixture of traditional hanok and early 20th-century Western-style buildings. See Architects designed the studio as a transitional structure that connects these influences, preserving the essence of hanok architecture while incorporating contemporary innovations.


A Village of Roofs: The Architectural Concept
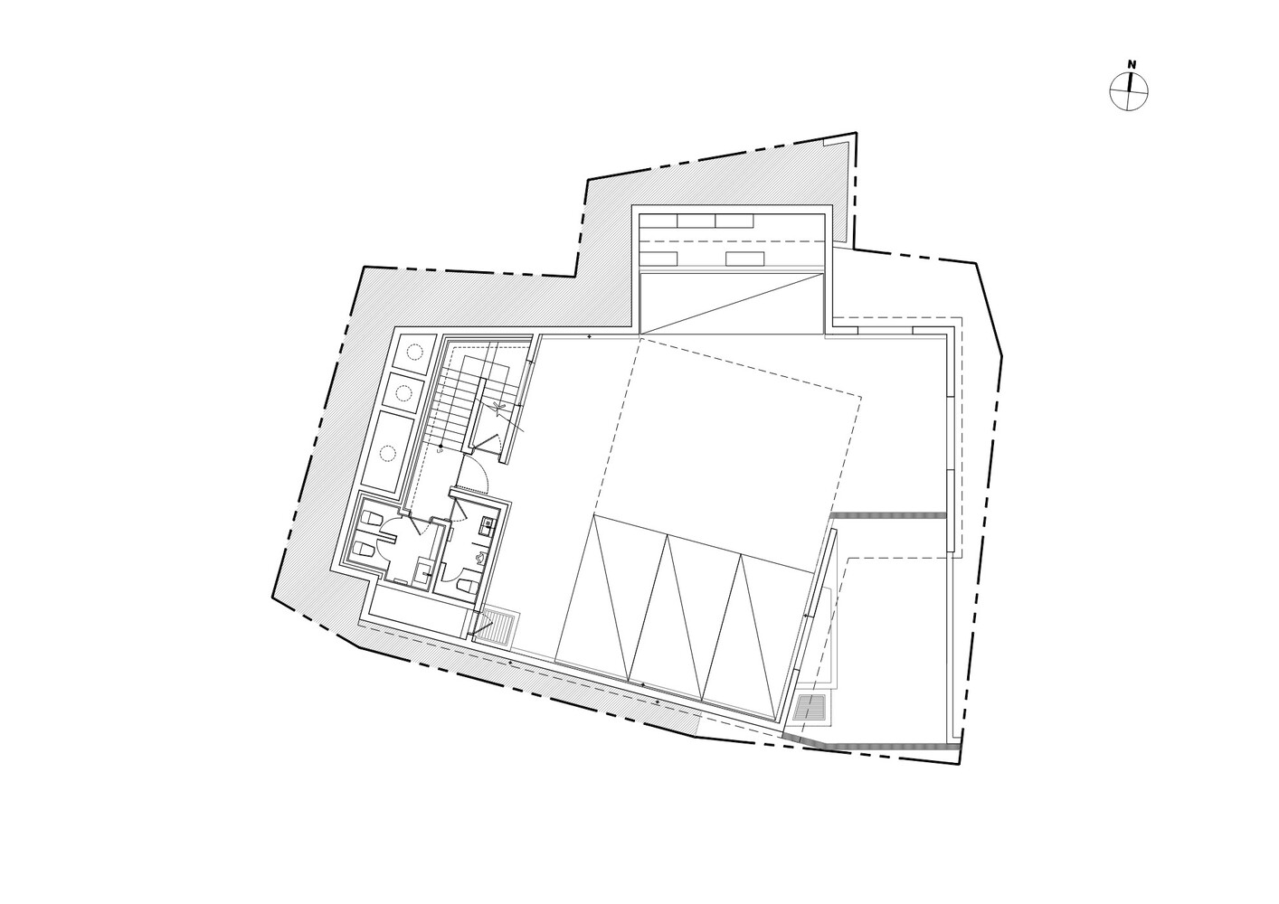
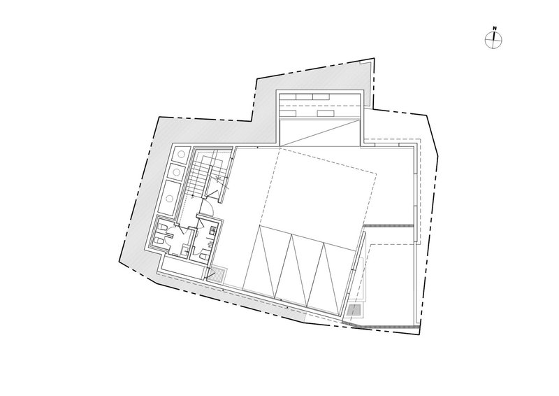
The studio’s design takes inspiration from hanok’s characteristic roof structures, reinterpreting them into a dynamic form that complements the irregular landscape. Five distinct roofs of varying sizes and orientations surround a central flat roof, creating the appearance of a miniature village. The gently curved eaves echo the organic flow of traditional hanok architecture, ensuring the building blends harmoniously with its surroundings.


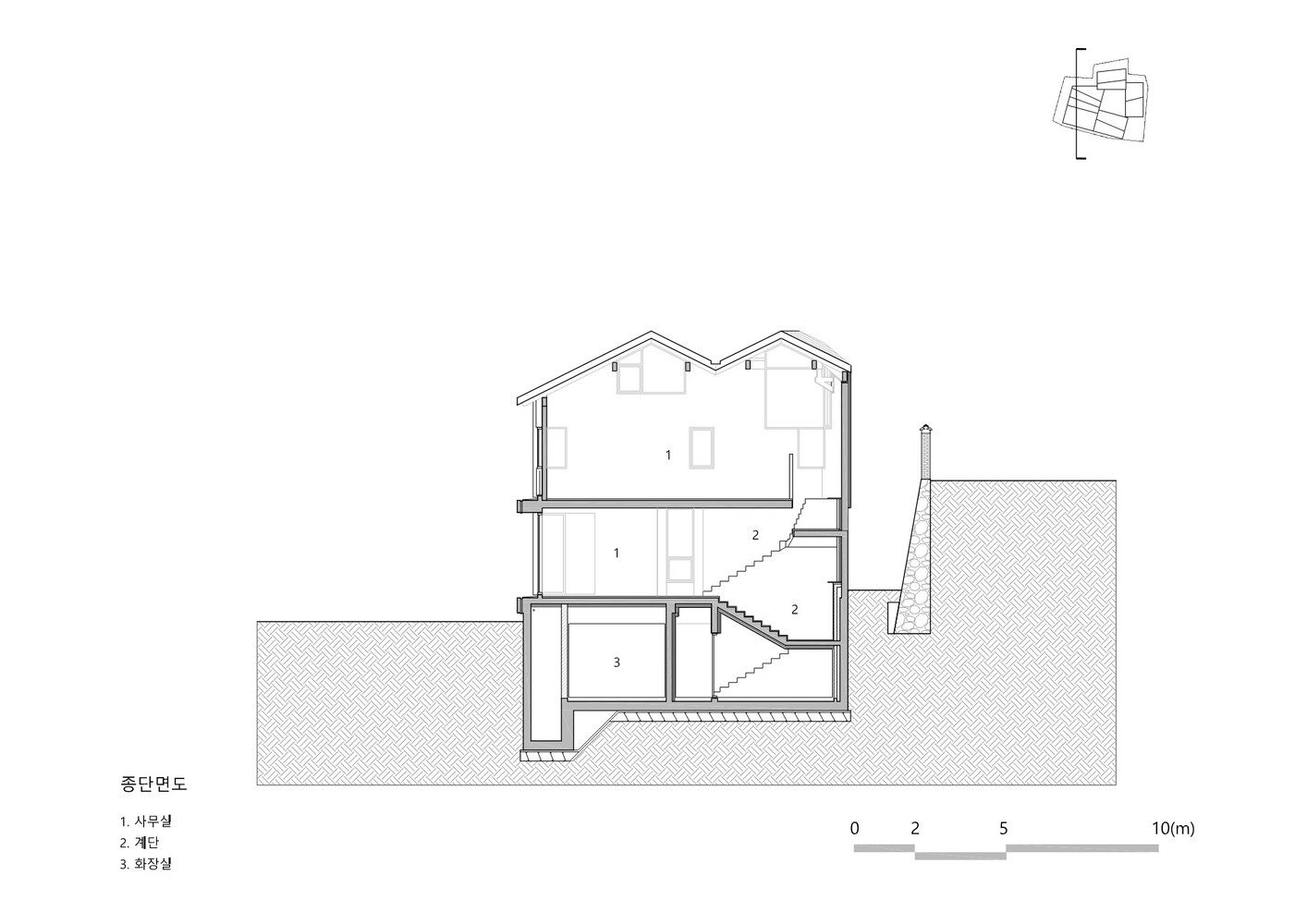
The south-facing façade incorporates horizontal concrete slabs extending across two floors, while an upward-curving roof adds a sense of movement. The use of different materials—reinforced concrete, steel, and timber—enhances both structural stability and aesthetic warmth. The lower levels feature concrete for durability, while the upper floors introduce timber elements that create a lighter, more inviting atmosphere.


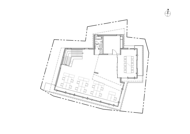
Spatial Organization and Interior Design
The interior of the studio reflects a balance between functionality and aesthetics, incorporating materials such as exposed concrete, steel, wood, and plywood. The natural wood columns and earthy tones contribute to a warm, inviting atmosphere that aligns with the surrounding environment.



Traditional Korean influences are evident throughout the space. Dancheong-painted walls add a cultural touch, while hanji paper coverings provide a subtle nod to traditional craftsmanship. The studio is designed for flexibility, allowing for adaptations over time. The wide staircase, which doubles as a bookshelf, is an example of how practicality is integrated into the design. Large corner windows enhance openness and natural lighting, while extended eaves contribute to energy efficiency by providing shade during warmer months.



Sustainability and Cultural Reflection
The integration of sustainable architectural practices is a key aspect of the studio’s design. The combination of concrete, steel, and timber not only ensures longevity but also contributes to energy efficiency. Natural insulation methods help regulate indoor temperatures, reducing reliance on mechanical heating and cooling.



The building’s orientation and use of large openings maximize natural light while maintaining privacy, a key consideration given its location within a dense urban setting. The design reflects Korea’s architectural evolution, demonstrating how contemporary spaces can remain connected to cultural roots while addressing modern-day environmental concerns.



A Symbol of Architectural Evolution
The Architecture Studio in Wonso-dong serves as a living example of how modern hanok architecture can bridge the past and future. By thoughtfully reinterpreting traditional forms and construction methods, See Architects has created a building that contributes to Seoul’s evolving architectural identity. The studio is not merely a workspace but a statement on the enduring relevance of cultural heritage in modern design.


The project highlights the potential for architecture to be both a preserver of history and a driver of innovation. By embracing the principles of hanok while incorporating contemporary materials and techniques, the studio represents the ongoing dialogue between tradition and modernity in Korean architecture.


Modern hanok architecture, as exemplified by the Architecture Studio in Wonso-dong, demonstrates the power of design to honor the past while shaping the future. See Architects has successfully created a space that respects its historical context while meeting contemporary needs, showcasing the timeless elegance of hanok-inspired design in an urban setting. As Seoul continues to evolve, projects like this stand as a testament to the enduring legacy of traditional Korean architecture in the modern world.




All Photographs are works of Kim Yongsung
Popular Articles
Popular articles from the community
Split House: A Compact Urban Home Blending Privacy, Light, and Flexible Living in Japan
Compact Japanese home featuring DOMA space, flexible café potential, passive lighting, privacy zoning, and sustainable urban living design.
Free Architecture Competitions You Can Enter Right Now
No entry fees, real prizes. Here are the best free architecture competitions open for submissions in 2026.
The Ken Roberts Memorial Delineation Competition (Krob)
As the most senior architectural drawing competition currently in operation anywhere in the world, it draws hundreds of entries each year, awarding the very best submissions in a series of medium-based categories.
Solar Steam: A Climate-Responsive Architecture That Redefines the Monument
A climate-responsive memorial architecture that transforms heat, decay, and time into a living system reflecting humanity’s ecological impact.
Similar Reads
You might also enjoy these articles
The Ken Roberts Memorial Delineation Competition (Krob)
As the most senior architectural drawing competition currently in operation anywhere in the world, it draws hundreds of entries each year, awarding the very best submissions in a series of medium-based categories.
Waterfront Redevelopment and Urban Revitalization in Mumbai: Forging a New Dawn for Darukhana
A transformative waterfront redevelopment project reimagining Darukhana’s shipbreaking heritage into an inclusive urban future.
OUT-OF-MAP: A Call for Postcards on Feminist Narratives of Public Space
Rhizoma Design and Research Lab invites artists, designers, architects, researchers, and students to reflect on how feminist perspectives can reshape public space. Selected works will be exhibited in Barcelona, October 2026. Submissions open until 15 April 2026.
Documentation Work on Buddhist Wooden Temple
Architectural syncretism and cultural hybridity: A comparative study of the Buddhist temples in Chattogram Hill tracks
Explore Architecture Competitions
Discover active competitions in this discipline
The International Standard for Design Portfolios
The Global Benchmark for Architecture Dissertation Awards
The Global Benchmark for Graduation Excellence
Challenge to reimagine the Iron Throne
Comments (0)
Please login or sign up to add comments
No comments yet. Be the first to comment!