Modern History of Christianity Museum: A Landmark in Modern Religious Architecture
The Modern History of Christianity Museum by Kode Architects redefines modern religious architecture through symbolism, minimalist aesthetics, and a spiritually immersive spatial experience.
The Modern History of Christianity Museum, designed by Kode Architects, is a striking example of modern religious architecture that encapsulates spirituality, symbolism, and architectural innovation. Located in South Korea, this 620m² museum is a contemporary interpretation of Christian values, balancing abstraction and functionality to create a meaningful space for reflection and education.



A Design Rooted in Christian Symbolism
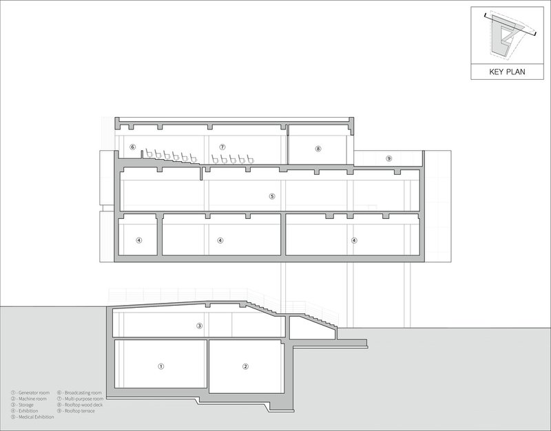
The design concept of the museum is deeply influenced by the core tenets of Christianity. The idea of the Trinity—Father, Son, and Holy Spirit—is reflected in the spatial relationships and geometric composition of the building. The triangular courtyard, a central element in the design, is a symbolic representation of the connection between humanity and divinity. Open to the sky, the courtyard embodies the aspiration toward heaven while maintaining a sense of seclusion that encourages contemplation.



The museum’s first floor, in contrast, is designed for interaction and engagement, representing the connection between people. This duality—between divine inspiration and earthly communication—is a key feature of the architectural narrative, making the museum not just a place to exhibit Christian history but also a spiritual experience in itself.



An Abstract and Minimalist Architectural Approach
Kode Architects employs a minimalist design language to reinforce the museum’s spiritual essence. Concrete, a material often associated with strength and permanence, is used extensively throughout the building, lending it a timeless quality. The restrained material palette and absence of excessive ornamentation allow the space itself to speak, guiding visitors through an introspective journey.


The courtyard acts as both a visual and spiritual anchor for the museum. Its simplicity enhances the feeling of transcendence, while the way light interacts with the enclosed space creates an ever-changing play of shadows that adds depth to the experience. The juxtaposition of enclosed walls and open sky establishes a connection between the finite and the infinite, a recurring theme in religious architecture.


Optimized Circulation for an Immersive Experience
The museum’s layout is meticulously planned to enhance visitor experience and optimize circulation. The corridor-type hallway directs movement in a unidirectional flow, allowing visitors to journey through different exhibition spaces without disruption. This carefully structured path ensures that the narrative of Christian history unfolds seamlessly as visitors move through the museum.


Each floor is designed to offer a distinct experience. The lower floors include multipurpose spaces that foster community interaction and engagement. Large openings strategically placed within the structure visually connect the interior with the exterior, reinforcing the idea that faith and history are not confined within walls but extend beyond physical boundaries. The walls themselves function as frames, offering curated views of the surroundings, creating a dialogue between the building and its context.



A New Paradigm in Modern Religious Architecture
The Modern History of Christianity Museum redefines religious architecture by merging historical significance with contemporary design principles. It serves as a testament to how modern architecture can reinterpret traditional religious spaces without compromising their spiritual essence.




By integrating symbolism, minimalist aesthetics, and thoughtful spatial planning, the museum creates a profound environment where visitors can engage with history while experiencing moments of contemplation. It stands as a pioneering example of modern religious architecture, demonstrating that places of worship and reflection can evolve while staying true to their foundational beliefs.




All Photographs are works of Won-Jun Jang
Popular Articles
Popular articles from the community
Gads Hill Early Learning Center by JGMA: Adaptive Reuse Shaping Community-Focused Educational Architecture
Adaptive reuse transforms fragmented structure into vibrant early learning center with playful façade, natural light, and community-focused sustainable design.
Alton Cliff House: A Harmonious Retreat by f2a Architecture in Lake Country, Canada
Alton Cliff House blends corten steel, prefabrication, and sustainable design, creating a luxurious, energy-efficient retreat perched on Canadian cliffs.
Solar Steam: A Climate-Responsive Architecture That Redefines the Monument
A climate-responsive memorial architecture that transforms heat, decay, and time into a living system reflecting humanity’s ecological impact.
Similar Reads
You might also enjoy these articles
The Ken Roberts Memorial Delineation Competition (Krob)
As the most senior architectural drawing competition currently in operation anywhere in the world, it draws hundreds of entries each year, awarding the very best submissions in a series of medium-based categories.
Waterfront Redevelopment and Urban Revitalization in Mumbai: Forging a New Dawn for Darukhana
A transformative waterfront redevelopment project reimagining Darukhana’s shipbreaking heritage into an inclusive urban future.
OUT-OF-MAP: A Call for Postcards on Feminist Narratives of Public Space
Rhizoma Design and Research Lab invites artists, designers, architects, researchers, and students to reflect on how feminist perspectives can reshape public space. Selected works will be exhibited in Barcelona, October 2026. Submissions open until 15 April 2026.
Documentation Work on Buddhist Wooden Temple
Architectural syncretism and cultural hybridity: A comparative study of the Buddhist temples in Chattogram Hill tracks
Explore Architecture Competitions
Discover active competitions in this discipline
The International Standard for Design Portfolios
The Global Benchmark for Architecture Dissertation Awards
The Global Benchmark for Graduation Excellence
Challenge to reimagine the Iron Throne
Comments (0)
Please login or sign up to add comments
No comments yet. Be the first to comment!