Modern Natural Light Architecture: Illuminating the MS House by Sommet
The article showcases MS House by Sommet, highlighting its integration of natural light and materials in modern architecture in Santa Cruz, Bolivia.
Nestled in the heart of Porongo, Santa Cruz-Bolivia, MS House emerges as a masterpiece of modern natural light architecture. Designed by the esteemed Sommet firm, this residence captures the quintessence of volumetric play and formal clarity, where the use of natural materials like wood and glass creates a seamless flow between the interior and the surrounding environment.





Strategic Material Integration
The predominant use of concrete, complemented by wood and glass, enables a dialogue between the house and its natural surroundings. These materials not only enhance the aesthetic appeal but also serve functional purposes, amplifying the residence's connection to the outdoor landscape.






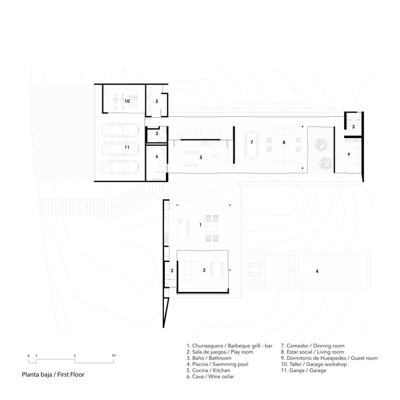
Architectural Composition and Functionality
The Layout: A Module of Harmony
Sommet’s design strategy revolves around a modular concept that aligns the structural elements with interior spaces, ensuring a cohesive look throughout the house. The result is two overlapping volumes that not only define the home’s entrance but also create a striking visual presence.





Interaction with the Sloping Terrain
Strategically placed at the highest point of the topography, MS House leverages its sloping ground to extend its volumes outwards, enhancing the visual and spatial connection with its lush surroundings. This positioning allows for the ingenious integration of different levels within the home, connecting the social, private, and service areas effortlessly.






Inside MS House: A Realm of Light and Space
The Open Floor Plan Concept
The ground floor epitomizes the open floor plan concept, where spaces transition smoothly between the public and social functions of the home. This layout fosters an environment where light and air circulate freely, emphasizing the architectural philosophy of modern natural light architecture.





A Sanctuary of Privacy and Comfort
Ascending to the second floor, one finds the private quarters, where en-suite bedrooms and a family room offer sanctuaries of comfort. The master suite, in particular, boasts a spacious dressing room and access to a terrace that offers breathtaking views of Santa Cruz de la Sierra, further blending the indoors with the natural world.





A Testament to Modern Architecture
MS House stands as a beacon of modern natural light architecture, showcasing how thoughtful design can harmonize the built environment with nature. Through its innovative use of materials, strategic layout, and emphasis on natural lighting, Sommet has created a contemporary dwelling that epitomizes functional elegance and spatial fluidity, offering a blueprint for future architectural endeavors.






All photographs are work of Paul Renaud
Popular Articles
Popular articles from the community
Solar Steam: A Climate-Responsive Architecture That Redefines the Monument
A climate-responsive memorial architecture that transforms heat, decay, and time into a living system reflecting humanity’s ecological impact.
Atelier Macri Concept Store Interior Design by CASE-REAL
Atelier Macri store features a "ko" counter, walnut wood details, cork displays, blending retail, gallery, and seamless customer experiences.
An Miên Lumière Cafe by xưởng xép, Ho Chi Minh City, Vietnam
An industrial-inspired café where layered steel and warm light create a dynamic, immersive environment shaped by reflection, depth, and perception.
On the Brooks House by Monsoon Collective – A Contemporary Kerala Home Rooted in Tradition
Kerala home blending tradition and modernity with water-inspired design, brick architecture, courtyard planning, and sustainable rainwater harvesting strategies.
Similar Reads
You might also enjoy these articles
The Ken Roberts Memorial Delineation Competition (Krob)
As the most senior architectural drawing competition currently in operation anywhere in the world, it draws hundreds of entries each year, awarding the very best submissions in a series of medium-based categories.
Waterfront Redevelopment and Urban Revitalization in Mumbai: Forging a New Dawn for Darukhana
A transformative waterfront redevelopment project reimagining Darukhana’s shipbreaking heritage into an inclusive urban future.
OUT-OF-MAP: A Call for Postcards on Feminist Narratives of Public Space
Rhizoma Design and Research Lab invites artists, designers, architects, researchers, and students to reflect on how feminist perspectives can reshape public space. Selected works will be exhibited in Barcelona, October 2026. Submissions open until 15 April 2026.
Documentation Work on Buddhist Wooden Temple
Architectural syncretism and cultural hybridity: A comparative study of the Buddhist temples in Chattogram Hill tracks
Explore Architecture Competitions
Discover active competitions in this discipline
The International Standard for Design Portfolios
The Global Benchmark for Architecture Dissertation Awards
The Global Benchmark for Graduation Excellence
Challenge to reimagine the Iron Throne
Comments (0)
Please login or sign up to add comments
No comments yet. Be the first to comment!