Modern Office Building in Tunis: The Screen Office by ARK-architecture and AUDA
The article highlights The Screen Office, a modern Tunisian workspace combining sustainable design, natural light, and Mediterranean heritage.
The Screen Office, designed by ARK-architecture and AUDA, redefines office architecture in Tunisia's premier business district, Les Berges du Lac 2. This contemporary project is not just a building but a bold statement of innovation, sustainability, and functionality. Combining advanced architectural techniques with local Mediterranean influences, The Screen Office emerges as a new urban landmark in Tunis.





A Strategic Location for Economic Growth
Positioned at the heart of Tunisia’s economic activities, Les Berges du Lac 2 offers a dynamic environment for thriving businesses. The Screen Office capitalizes on its prime location to attract tenants seeking modern workspaces with superior accessibility and facilities. Its placement within the district makes it a beacon for economic activity and architectural innovation.






Reinventing Office Space
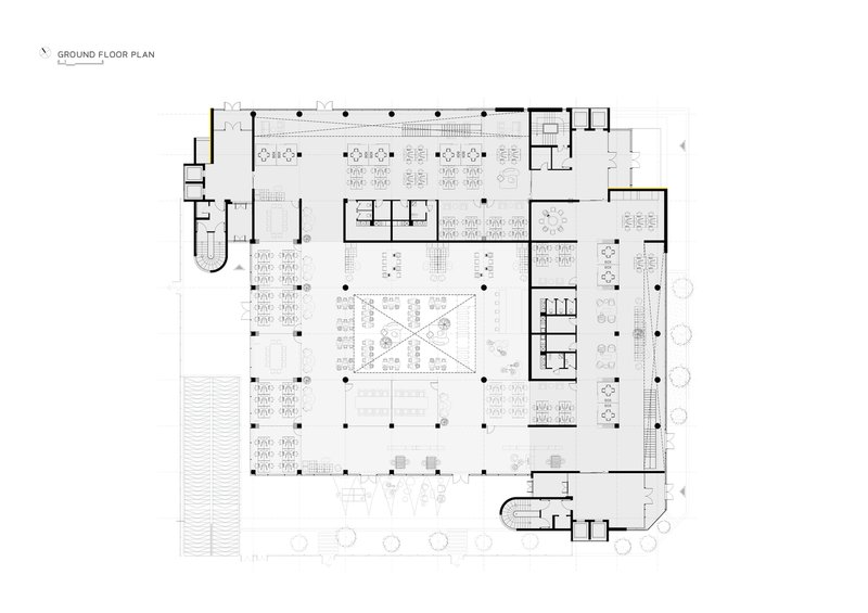
The architectural challenge for The Screen Office was to anticipate the evolving needs of modern businesses. Designed with adaptability in mind, the building’s structural system relies on a repetitive grid of 5.5m x 5.5m with flat beams, creating flexible floor plans for diverse interior layouts. This flexibility caters to the changing demands of workspace design while ensuring functionality.







A Sustainable and Light-Filled Workspace
In a country like Tunisia, where sunlight is abundant, natural light is a cornerstone of the design. The building’s façade incorporates large, high-performance solar and thermal glazing, maximizing daylight while ensuring thermal comfort. By aligning the orientation of its windows with solar trajectories, The Screen Office not only enhances productivity but also reduces energy consumption, setting a benchmark for sustainable office buildings in Tunis.







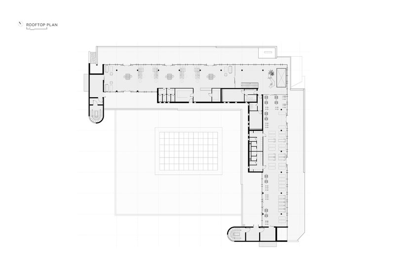
A Rooftop Oasis in the Heart of the City
The building’s rooftop offers more than just stunning views. Equipped with relaxation and dining areas, the terrace provides a 360° panoramic view of Tunis, offering a space for leisure and informal interactions. This rooftop oasis creates a balanced environment where work and relaxation coexist seamlessly.






Architectural Innovation Meets Local Heritage
One of the defining features of The Screen Office is its bold aesthetic. The main entrance, characterized by a striking glass façade, is complemented by a double-inclined concrete wall clad in fluorescent yellow HPL panels. This unique design element adds vibrancy to the urban landscape, while a cantilevered structure housing an olive tree pays homage to Tunisia's agricultural heritage.



The building’s exterior walls, constructed from locally produced double-layered thermal bricks with rock wool insulation, reflect Mediterranean architectural traditions. Painted in pristine white, these walls blend effortlessly into the Tunisian architectural palette, offering both energy efficiency and aesthetic harmony.


Functional Spaces for Modern Businesses
The Screen Office spans 23,000 square meters, featuring ten office floors and two basement levels for parking and technical facilities. Six panoramic elevators connect the levels, ensuring seamless mobility while offering breathtaking views of the city. The integration of relaxation zones, natural light, and open spaces fosters a work environment that prioritizes the well-being and productivity of its occupants.


Redefining Office Architecture in Tunisia
The Screen Office represents a new era in Tunisian office architecture. By merging sustainability, modernity, and functionality with cultural references, the project exemplifies how contemporary design can enhance both workspaces and urban environments. As a dynamic addition to the business district, The Screen Office not only meets but exceeds the expectations of modern businesses, making it a landmark of innovation in Tunis.














All Photographs are work of Bilel Khemakhem
Popular Articles
Popular articles from the community
The Ken Roberts Memorial Delineation Competition (Krob)
As the most senior architectural drawing competition currently in operation anywhere in the world, it draws hundreds of entries each year, awarding the very best submissions in a series of medium-based categories.
Fifth NRE Jazz Club – De Bever Architecten: Eindhoven’s Revitalized Cultural Hub
Historic gas factory transformed into Fifth NRE Jazz Club blending modern sustainability, jazz culture, dining, and heritage architecture seamlessly.
Inverted Architecture Installation by Studio Link-Arc: Exploring the Intersection of Architecture and Living Organisms
Inverted Architecture Installation by Studio Link-Arc blends mycelium, sustainability, inverted design, ecological cycles, and urban adaptive architecture in Shenzhen.
Louis Malle Cinema: A Limestone Cultural Landmark Revitalizing Community Life in Prayssac
Limestone cinema extension with public forecourt, blending heritage and modern design to create flexible cultural spaces and strengthen community interaction.
Similar Reads
You might also enjoy these articles
The Ken Roberts Memorial Delineation Competition (Krob)
As the most senior architectural drawing competition currently in operation anywhere in the world, it draws hundreds of entries each year, awarding the very best submissions in a series of medium-based categories.
Waterfront Redevelopment and Urban Revitalization in Mumbai: Forging a New Dawn for Darukhana
A transformative waterfront redevelopment project reimagining Darukhana’s shipbreaking heritage into an inclusive urban future.
OUT-OF-MAP: A Call for Postcards on Feminist Narratives of Public Space
Rhizoma Design and Research Lab invites artists, designers, architects, researchers, and students to reflect on how feminist perspectives can reshape public space. Selected works will be exhibited in Barcelona, October 2026. Submissions open until 15 April 2026.
Documentation Work on Buddhist Wooden Temple
Architectural syncretism and cultural hybridity: A comparative study of the Buddhist temples in Chattogram Hill tracks
Explore Office Building Competitions
Discover active competitions in this discipline
The International Standard for Design Portfolios
The Global Benchmark for Architecture Dissertation Awards
The Global Benchmark for Graduation Excellence
Challenge to reimagine the Iron Throne
Comments (0)
Please login or sign up to add comments
No comments yet. Be the first to comment!