Modern Riverfront Homes in Australia: A Deep Dive into Sjøhavn House by Lightbody Architects
The article delves into Sjøhavn House by Lightbody Architects, showcasing its innovative design as a modern riverfront home in Australia.
In the serene landscapes of Noosa Heads, Australia, Sjøhavn House stands as a quintessential example of modern riverfront homes. Designed by the esteemed Lightbody Architects, this 483 m² property merges innovative design with the tranquil vibes of riverside living.




Design Philosophy of Sjøhavn House
Integrating Nature with Modern Architecture
Sjøhavn, meaning 'Sea Gardens' in Scandinavian, reflects the client's heritage and the home's seamless connection to the Noosa River. Lightbody Architects crafted a design that respects flood levels while maximizing the serene riverfront views, embodying the essence of modern riverfront homes in Australia.


A Home Built for Leisure and Privacy
The architectural narrative of Sjøhavn House centers around creating a family-friendly space that balances open social areas with private retreats. The design emphasizes the natural surroundings, ensuring a constant dialogue between the interior and the riverside environment.




Key Architectural Features of Sjøhavn House
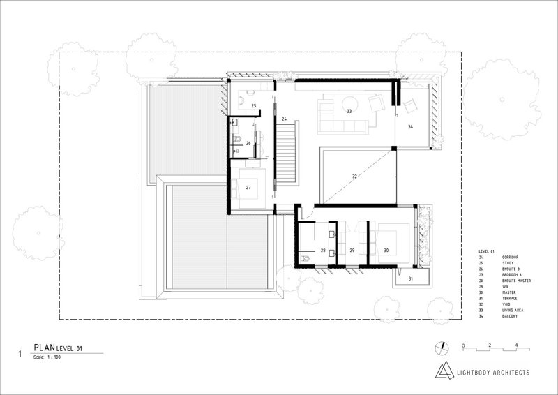
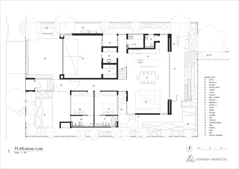
The Art of Spatial Harmony
The house's layout is a testament to thoughtful space utilization, where primary living areas and intimate 'in-between' spaces coexist harmoniously. The use of minimalistic materials enhances the fluidity between different zones, promoting a sense of unity within the home.


Embracing the River’s Edge
The design's standout feature is the central double-height void that aligns with the ground plane, extending to the river's edge. This creates an expansive outdoor living area, flanked by intimate spaces, offering both social engagement and personal solitude.


Materiality and Sustainability
The Role of Off-Form Concrete
Sjøhavn House's resilience and thermal efficiency are attributed to its primary material, off-form concrete. This choice supports the home’s structural requirements while allowing for innovative landscaping solutions, such as suspended planters that bring greenery to the upper levels.




Passive Design Principles
Incorporating passive design strategies, the house leverages the thermal mass of concrete to maintain a comfortable internal temperature, aligning with the climatic needs of modern riverfront homes in Australia. This approach ensures energy efficiency and environmental harmony.



Redefining Riverfront Architecture
Sjøhavn House by Lightbody Architects sets a new benchmark for modern riverfront homes in Australia, offering insights into blending architectural innovation with the natural landscape. As a landmark project in Noosa Heads, it represents the pinnacle of contemporary riverside living.






All photographs are work of Brock Beazley
Popular Articles
Popular articles from the community
Split House: A Compact Urban Home Blending Privacy, Light, and Flexible Living in Japan
Compact Japanese home featuring DOMA space, flexible café potential, passive lighting, privacy zoning, and sustainable urban living design.
Rede Arquitetos Builds an Open-Air School in Fortaleza That Doubles as a Neighborhood Living Room
Educar II SESC-CE folds sports, dance, and community gathering into a courtyard campus wrapped in mesh and tropical color.
Filtering Space: A Gradual Spatial Experience
From urban intensity to spatial calm.
Similar Reads
You might also enjoy these articles
Filtering Space: A Gradual Spatial Experience
From urban intensity to spatial calm.
The Ken Roberts Memorial Delineation Competition (Krob)
As the most senior architectural drawing competition currently in operation anywhere in the world, it draws hundreds of entries each year, awarding the very best submissions in a series of medium-based categories.
Waterfront Redevelopment and Urban Revitalization in Mumbai: Forging a New Dawn for Darukhana
A transformative waterfront redevelopment project reimagining Darukhana’s shipbreaking heritage into an inclusive urban future.
OUT-OF-MAP: A Call for Postcards on Feminist Narratives of Public Space
Rhizoma Design and Research Lab invites artists, designers, architects, researchers, and students to reflect on how feminist perspectives can reshape public space. Selected works will be exhibited in Barcelona, October 2026. Submissions open until 15 April 2026.
Explore Architecture Competitions
Discover active competitions in this discipline
The International Standard for Design Portfolios
The Global Benchmark for Architecture Dissertation Awards
The Global Benchmark for Graduation Excellence
Challenge to reimagine the Iron Throne
Comments (0)
Please login or sign up to add comments
No comments yet. Be the first to comment!