Modern Semi-Detached House Design: Lapatoo House by Fabian Tan Architect in Kuala Lumpur
This article explores Lapatoo House, a modern semi-detached house design by Fabian Tan Architect in Kuala Lumpur, integrating light, space, and family-oriented architecture.
Redefining Modern Semi-Detached House Design
The Lapatoo House, designed by Fabian Tan Architect, represents a masterclass in modern semi-detached house design. Located in an affluent neighborhood of Kuala Lumpur, this three-story residence is a contemporary interpretation of space, light, and family-oriented architecture. The house harmonizes geometric precision, natural materials, and functional elegance to redefine urban living on a 6,000 sqft plot with a built-up area of 5,000 sqft.




Site and Architectural Concept
The design of Lapatoo House originates from the square geometry of the plot, shaping the residence into a clean, cubic form. This formal simplicity anchors the architectural language of the house, creating a seamless relationship between indoor and outdoor spaces. Fabian Tan Architect's vision was to establish a home that promotes family connectivity while providing privacy and comfort, which is reflected in the spatial arrangement and structural articulation.




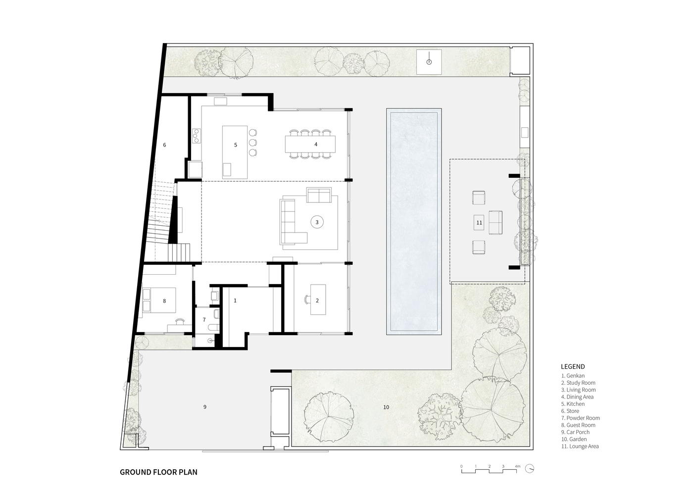
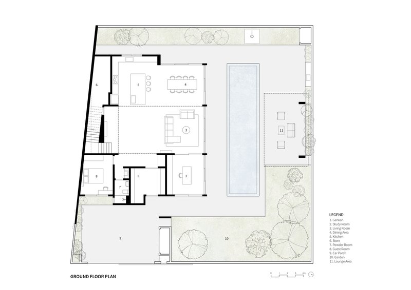
Entry Sequence and Ground Floor Plan
Upon arrival, residents and guests are welcomed into a sunken foyer, a subtle architectural gesture that introduces spatial depth from the very first step. This transitional space ascends into an expansive open-plan layout, integrating the living, dining, and kitchen areas. To the left of the entrance, a guest bedroom offers privacy while remaining connected to the social core of the home.


The primary living areas extend towards multiple outdoor zones, blurring the boundaries between the house and its surroundings. The front, rear, and side decks open up to an infinity pool, a covered lounge pavilion, and a landscaped garden. These external spaces act as natural extensions of the interior, enhancing the modern semi-detached house design by promoting cross-ventilation, light infiltration, and visual continuity.


Vertical Connection Through a Three-Story Void
At the heart of the Lapatoo House is a dramatic three-story void crowned by a timber-clad pitched ceiling. This central volume, illuminated by a skylight, becomes the architectural and emotional anchor of the home. The void not only unites the ground and first floors but also fosters a sense of openness and connectivity—a reflection of the client’s emphasis on family bonds.

The skylight floods the interior with natural light, transforming the void into a dynamic core that shifts in ambiance throughout the day. Timber cladding adds warmth to this vertical space, creating a balance between the house’s modern lines and natural textures.

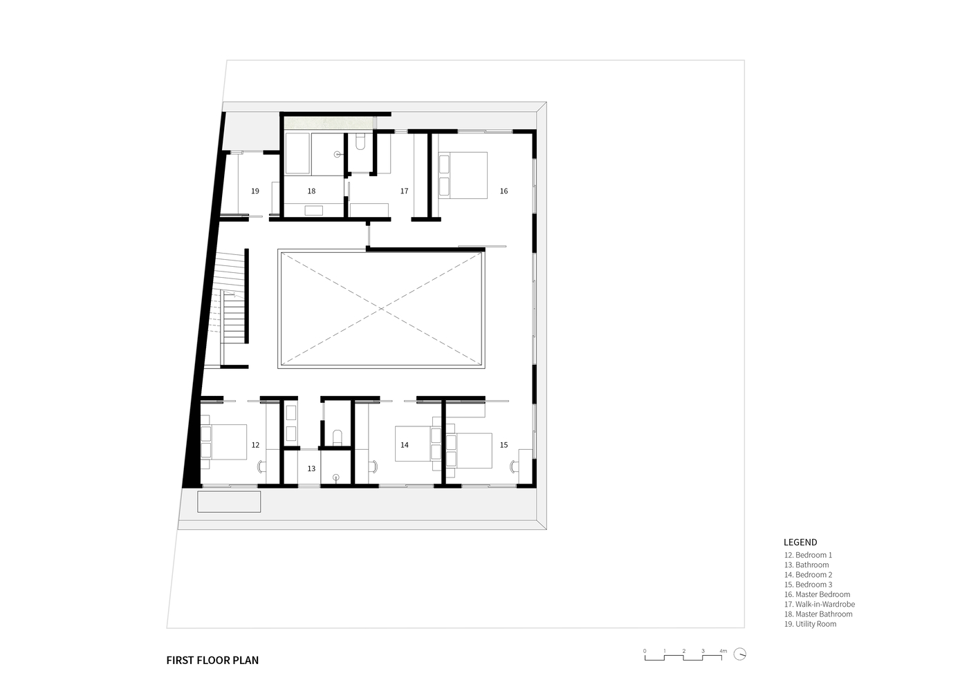
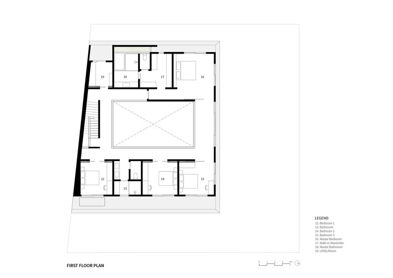
Circulation and First-Floor Layout
The staircase leading to the first floor follows the angular boundary wall, embracing the architectural geometry of the plot. A secondary staircase connecting the first and second floors runs perpendicular to the first, creating a layered visual experience within the stairwell voids.

The first floor is designed as a circulation loop around the central void. This corridor links the master bedroom with the children's bedrooms through large sliding doors. The fluid connection between these private quarters echoes the home's overarching theme of unity, while still offering secluded retreats for each family member.

The cantilevered first-floor slab extends outward on all sides with a concrete finish, providing shade to the decks below. This architectural gesture not only protects the outdoor spaces from direct sunlight but also accentuates the floating aesthetic of the upper volume. The interplay of light and shadow on the cantilevered edges defines the residence’s exterior identity.

Roof Design and Rooftop Spaces
The steeply pitched roof emerges as a defining element of the modern semi-detached house design. Extending on three sides, the roof's sharp, slender edge details unify the home's visual language. This bold roof structure is not merely a stylistic choice; it serves to optimize internal spatial quality and provide additional functional zones.

The rooftop level houses a private entertainment room, designed as a retreat for social gatherings. Above this, a concealed rooftop platform is tucked into the apex of the roof pitch, offering panoramic views of the surrounding Kuala Lumpur skyline. This hidden vantage point exemplifies the architect’s ability to integrate functionality with an element of surprise.

Integration of Nature and Light
Natural light and greenery are fundamental to the Lapatoo House’s modern semi-detached house design. The skylight above the void, the large sliding doors, and the expansive poolside openings ensure that every corner of the residence is bathed in natural light. The fluidity between interior and exterior spaces transforms the home into a living organism that breathes with its environment.

The infinity pool merges visually with the deck level, creating a water-edge effect that extends the spatial perception of the outdoor lounge area. The landscaped garden complements this visual fluidity, softening the architectural rigidity with lush greenery.

Material Palette and Architectural Detailing
The materiality of Lapatoo House embraces modern simplicity while emphasizing natural textures. Timber dominates the interior volumes, creating warmth and contrast against the concrete cantilevers and pitched roof. The timber-clad ceiling within the three-story void amplifies the sense of height while adding a tactile quality to the light-filled core.

Concrete, timber, and glass compose a restrained palette that aligns with contemporary architectural trends. The slender edge details on the roof and cantilevered slabs underscore Fabian Tan Architect’s meticulous attention to precision, further elevating the residence as a benchmark in modern semi-detached house design.

A New Standard in Modern Semi-Detached House Design
Lapatoo House by Fabian Tan Architect stands as a testament to the evolution of modern semi-detached house design in urban Southeast Asia. Its fusion of spatial transparency, natural light, and family-oriented planning sets a new benchmark for residential architecture in Kuala Lumpur.

This residence is more than a shelter—it is an architectural dialogue between structure and nature, light and material, privacy and openness. Fabian Tan Architect has successfully crafted a home where modern design principles coexist with the emotional nuances of family living.

Crafting a Modern Urban Oasis
Lapatoo House redefines the potential of modern semi-detached house design. Through its three-story void, cantilevered forms, and rooftop retreat, the residence transforms conventional residential typologies into an expressive architectural composition. By prioritizing family connectivity, natural light, and seamless indoor-outdoor integration, Fabian Tan Architect has curated a living environment that is both timeless and contemporary—a true architectural gem in Kuala Lumpur’s residential landscape.

All Photographs are works of Bricksbegin
Popular Articles
Popular articles from the community
Filtering Space: A Gradual Spatial Experience
From urban intensity to spatial calm.
Gunawarman 35: Jakarta's Corner of Quiet Complexity
WOFF's mixed-use building in Jakarta pairs translucent glass block walls with a buff brick cylinder to hold coffee, wellness, and work under one roof.
Guangzhou's Twin Towers Interiors Move Like Water
DuShe Architectural Design shapes the lobbies of a massive Guangzhou transit hub with undulating ceilings and deep geological materiality.
20 Most Popular Commercial Architecture Projects of 2025
From sustainable market concepts to heritage factories, the commercial buildings and proposals that drew the most attention on uni.xyz this year.
Similar Reads
You might also enjoy these articles
Filtering Space: A Gradual Spatial Experience
From urban intensity to spatial calm.
The Ken Roberts Memorial Delineation Competition (Krob)
As the most senior architectural drawing competition currently in operation anywhere in the world, it draws hundreds of entries each year, awarding the very best submissions in a series of medium-based categories.
Waterfront Redevelopment and Urban Revitalization in Mumbai: Forging a New Dawn for Darukhana
A transformative waterfront redevelopment project reimagining Darukhana’s shipbreaking heritage into an inclusive urban future.
OUT-OF-MAP: A Call for Postcards on Feminist Narratives of Public Space
Rhizoma Design and Research Lab invites artists, designers, architects, researchers, and students to reflect on how feminist perspectives can reshape public space. Selected works will be exhibited in Barcelona, October 2026. Submissions open until 15 April 2026.
Explore Architecture Competitions
Discover active competitions in this discipline
The International Standard for Design Portfolios
The Global Benchmark for Architecture Dissertation Awards
The Global Benchmark for Graduation Excellence
Challenge to reimagine the Iron Throne
Comments (0)
Please login or sign up to add comments
No comments yet. Be the first to comment!