Modernist Townhouse Renovation in Hampstead by Studio Hagen Hall
A sustainable and refined modernist townhouse renovation in London’s Hampstead revives mid-century charm with spatial and material elegance.
A Sensitive Revival of Post-War Architecture
Located within the verdant Hampstead Conservation Area in North London, the Pine Heath Townhouse by Studio Hagen Hall is a masterful renovation that celebrates the legacy of post-war modernist architecture while bringing the home into the present with sustainable upgrades and refined spatial planning. Originally designed by Ted Levy, Benjamin & Partners in the late 1960s, the townhouse is one of a cluster of nine homes inspired by Cape Town’s coastal developments. While many of the neighboring homes have been stripped of their mid-century character, Pine Heath retains much of its original charm, now thoughtfully reimagined for contemporary living.





From Modest Refurbishment to Comprehensive Restoration
Initially intended as a light refurbishment focusing on the kitchen, bathrooms, and windows, the project evolved into a full-scale renovation upon discovery of the home's underlying potential. Studio Hagen Hall proposed a holistic design strategy to reintroduce the house’s modernist soul, while enhancing energy efficiency, operational performance, and daily functionality. The architectural team focused on creating a broken-plan layout that accommodates the needs of a growing family and responds elegantly to the original structure’s vertical configuration.





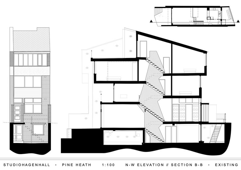
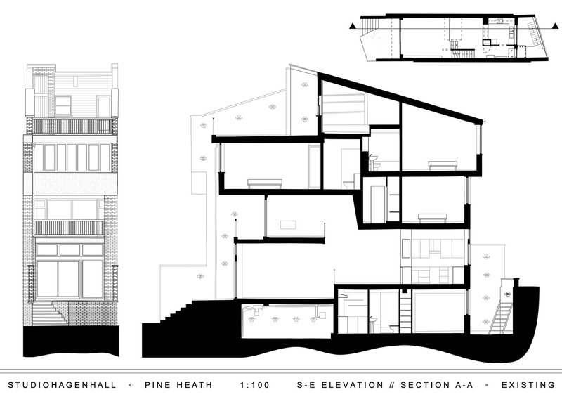
Layered Spatial Strategy and Functional Elegance
Spanning five levels, the home now balances intimate private areas with multifunctional shared spaces. A fourth bedroom suite and gym were added to the basement, while the top floor houses a guest pod and office. The reconfiguration of the plan establishes seamless transitions between indoor and outdoor zones, introducing visual and physical connectivity. The central stairwell, a defining feature, acts as the project’s spatial spine. Pocket doors, cleverly realigned to allow axial views from front to back, amplify the home's sense of openness while preserving privacy.




Material Heritage and Sustainable Craftsmanship
The design pays particular homage to the existing material palette, especially the use of Paraná pine—a rare and now endangered species. Rather than discarding or replacing this material, Studio Hagen Hall sensitively worked around it, letting it inform the aesthetic direction of the project. Floor-to-ceiling timber-lined portals frame views and transitions, while the continuity of detailing—seen in datum lines, tile grids, and joinery cut at 45-degree angles—underscores the meticulous execution of the renovation.





Light, Flow, and the Return of Modernist Character
Natural light and thoughtful sightlines define the spatial experience throughout the home. Built-in storage units are repositioned to optimize views, and large picture windows and reconfigured thresholds ensure unobstructed sightlines across the plan. Upon entry, a cloak area with seating opens directly to garden views, guiding the visitor along a coherent visual narrative. Every aspect of the design reflects Studio Hagen Hall’s dedication to spatial clarity and sensitive modernist revival.








A Blueprint for Modernist Restoration
The Pine Heath Townhouse is not merely a home upgrade—it’s a strategic restoration that reasserts the value of mid-century architectural ideals in today's context. It demonstrates how careful material preservation, modern energy-efficient interventions, and spatial rethinking can harmonize heritage with contemporary living. For architecture enthusiasts and designers alike, this project offers a compelling case study in modernist townhouse renovation—thoughtful, enduring, and deeply attuned to its history.







Popular Articles
Popular articles from the community
boq architekti Fits a Gabled Family House onto a Tiny Moravian Hillside Plot with No Room for a Garden
A 115 square meter home in South Moravia trades a garden for a rooftop terrace and a fully glazed facade facing the village below.
Studio Gram Unfurls a Concrete Curve Through an Adelaide Queen Anne Villa
In Rose Park, a billowing concrete threshold stitches a century-old house to a sun-chasing pavilion organized around an existing pool.
20 Most Popular Furniture Design Projects of 2025
Modular street systems, parametric benches, and insect hotels: the furniture design projects that captivated architects on uni.xyz in 2025.
Biophilic Architecture and Regenerative Stadium Design: Biophilia Lagos by Rachel George
A regenerative stadium in Lagos transforms landfill into a living ecosystem through biophilic architecture, waste reuse, and environmental healing.
Similar Reads
You might also enjoy these articles
BICA Arquitectos Buries a Coastal Home in a Man-Made Dune on Portugal's Tróia Peninsula
A 300-square-meter house of timber, sand mortar, and travertine dissolves into the dune landscape it helped regenerate on the Alentejo coast.
The Ranch Mine Runs a White Pavilion Parallel to a 1970s House in Paradise Valley
A hemlock-lined addition reframes desert living by pulling light, views, and a courtyard pool from an outdated Arizona home.
Architects Group RAUM Stacks Offset White Volumes into a Compact Office Tower in Busan
A 524-square-meter building on a tight corner lot in Haeundae plays with sunlight rights and shifting floor plates to create generous terraces.
Studio Gram Unfurls a Concrete Curve Through an Adelaide Queen Anne Villa
In Rose Park, a billowing concrete threshold stitches a century-old house to a sun-chasing pavilion organized around an existing pool.
Explore Architecture Competitions
Discover active competitions in this discipline
The International Standard for Design Portfolios
The Global Benchmark for Architecture Dissertation Awards
The Global Benchmark for Graduation Excellence
Challenge to reimagine the Iron Throne
Comments (0)
Please login or sign up to add comments
No comments yet. Be the first to comment!