Namoncahue House: An Architectural Masterpiece on Lake Colico by Schwember García-Huidobro Arquitectos
This article details Namoncahue House, a stunning lakeside home designed to blend with nature and overcome terrain challenges.
Nestled on the serene southern shores of Lake Colico in Chile, Namoncahue House is a stunning example of architectural ingenuity. Designed by Schwember García-Huidobro Arquitectos, the house harmonizes with its breathtaking natural surroundings while overcoming the challenges posed by the steep, 40% sloping terrain. This project exemplifies how thoughtful design can integrate seamlessly with the environment while delivering a functional and visually captivating home.




Context and Location
Namoncahue House is located in Cunco, Chile, amidst the lush, rainy forests of the region. The southern hemisphere's climate, characterized by long, rainy winters and short, warm summers, plays a significant role in shaping the house's design. The property faces the lake's southern shore, an orientation ideal for maximizing sunlight and capturing stunning views of the water and surrounding landscape.

The site's topography presented unique challenges. With its steep slope and soil composed of vegetation and alluvial fillings, the design required innovative solutions to address the low soil bearing capacity and manage the region's heavy rainfall.


Elevated Design: A House on Stilts
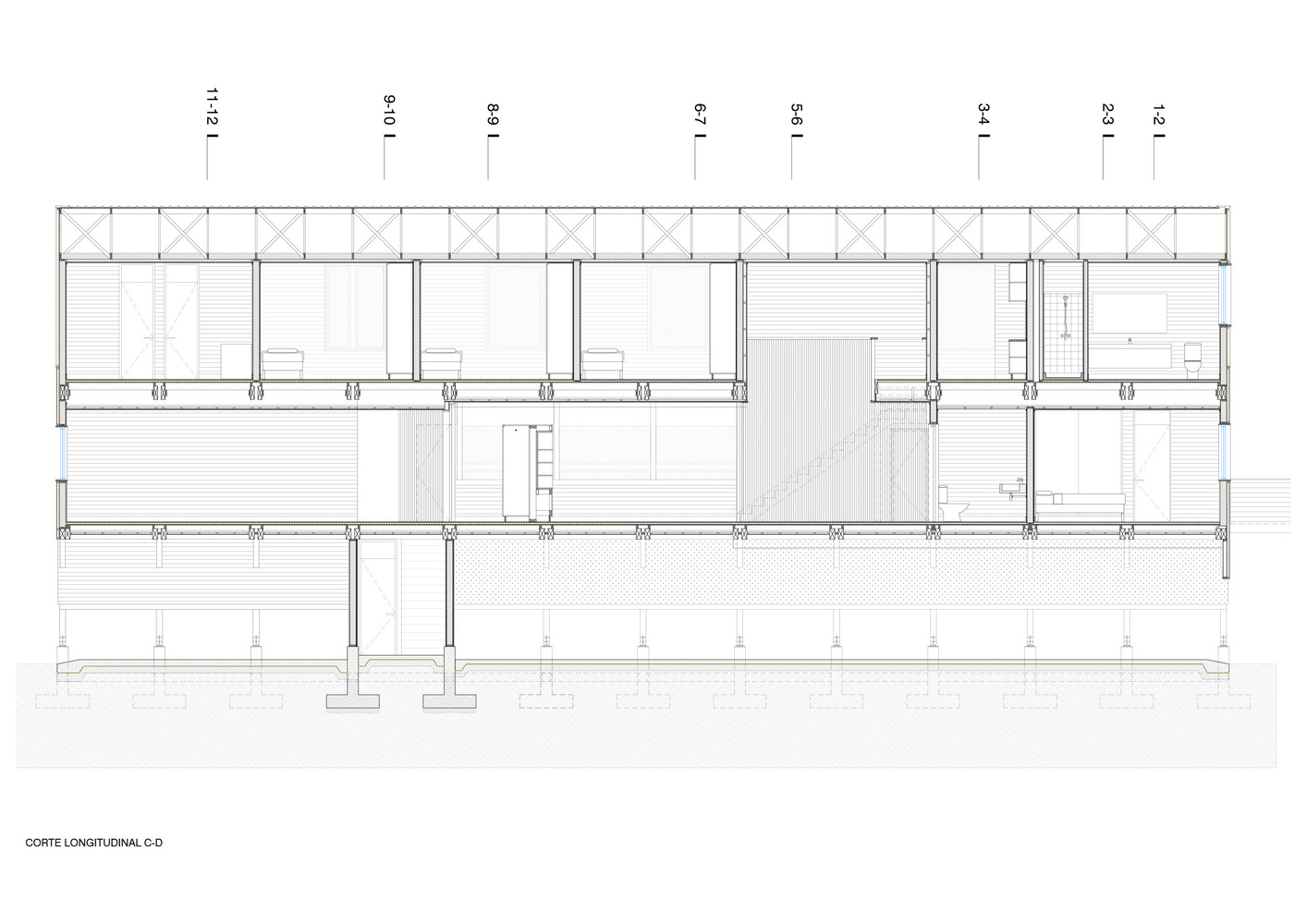
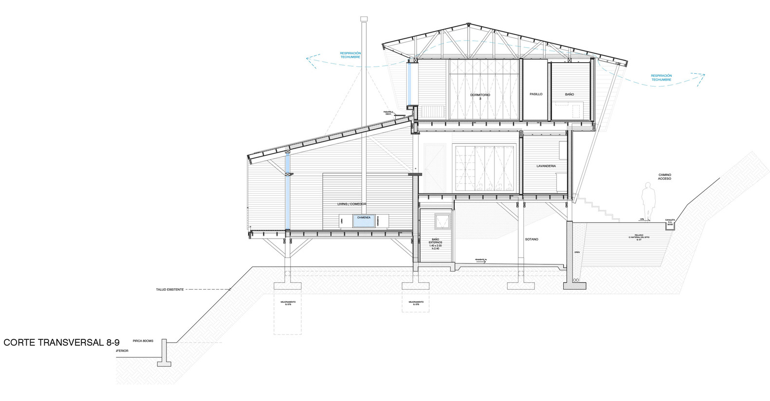
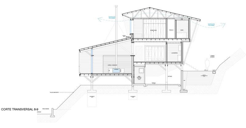
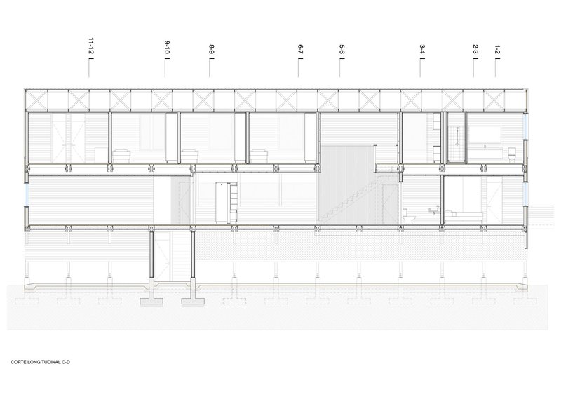
One of the primary requirements for Namoncahue House was to build it on stilts, separating the structure from the soil's humidity. This approach not only addressed the soil's limitations but also enhanced the home’s connection to its natural surroundings. The architects proposed a design featuring four half-levels, each serving a distinct purpose while maintaining fluidity and integration within the house.


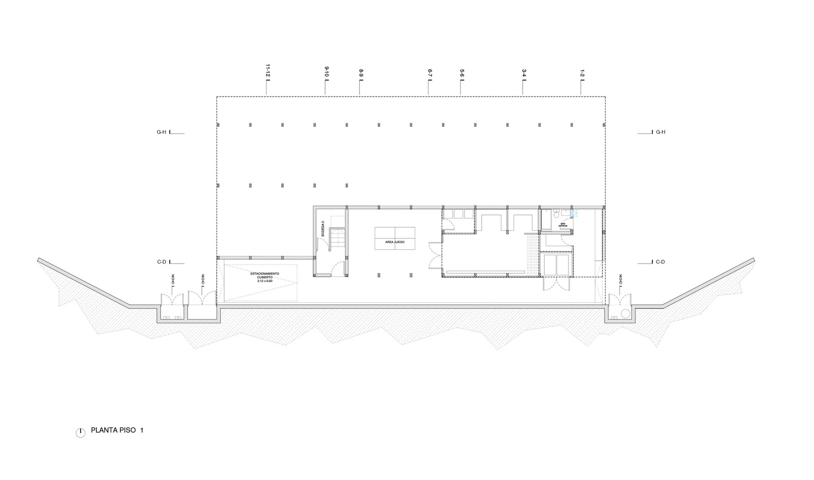
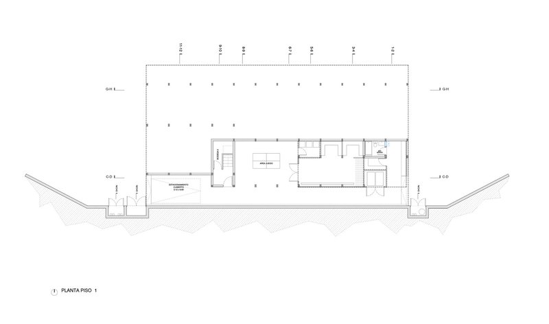
The house begins with the "earth" level, an open space beneath the elevated structure. This area is designed for covered outdoor activities, such as parking, storage, and play areas, offering a practical yet aesthetically pleasing solution to the terrain's challenges.


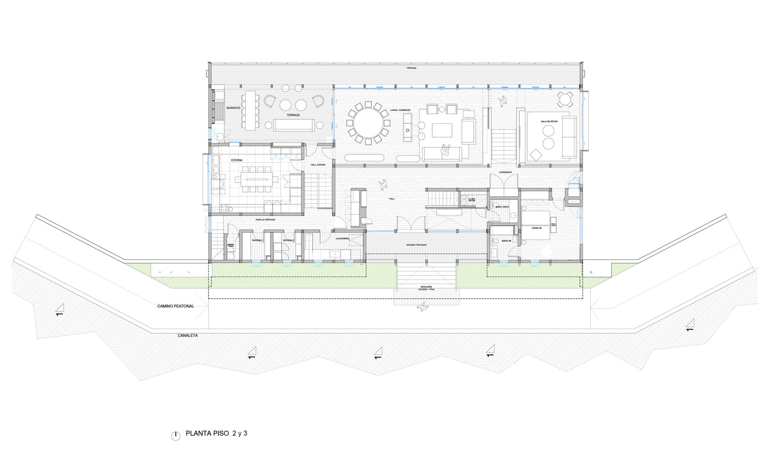
Four Levels of Functionality
The house's unique layout is organized into four distinct levels, each contributing to the seamless flow of family life.

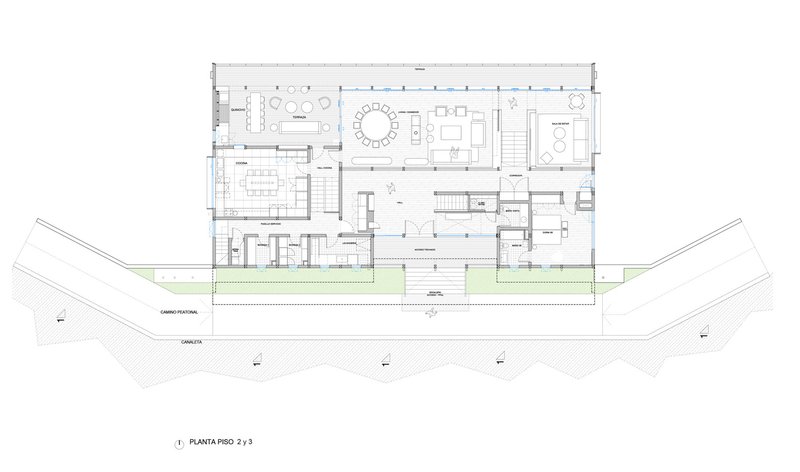
The "fire" level, located half a floor above the earth level, serves as the heart of the home. This space houses the living and dining rooms, game room, kitchen, and barbecue area. With expansive north-facing views and integrated spaces, this level fosters family connection and interaction.


The "middle" level, situated half a floor above the fire level, includes the main entrance, visitor spaces, and service areas. Part of this level visually connects to the fire level below, creating a sense of openness and enhancing the lake views.

Finally, the "dream" level, located at the top of the house, is dedicated to family bedrooms. These private spaces are oriented to the north, offering panoramic views of the lake and distant horizons.

Structural and Material Innovation
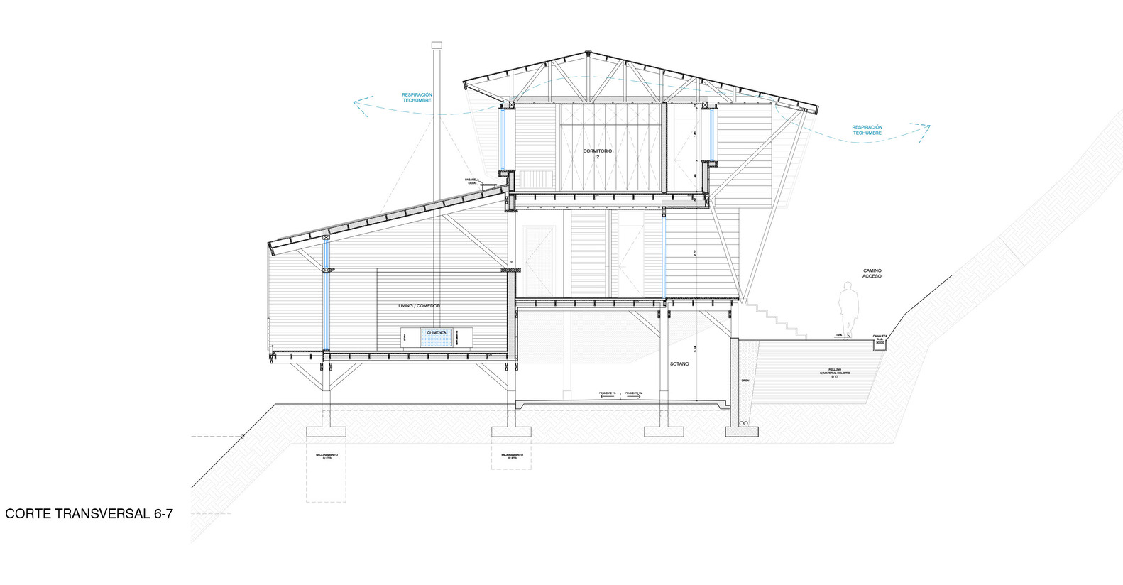
The house’s structure is a testament to the architects’ ingenuity. It is anchored to the terrain using a linear retaining wall against the hillside, complemented by stilts that penetrate three meters into the soil. From the ground up, the house is constructed entirely of laminated wood frames, emphasizing sustainability and craftsmanship.


The façade design minimizes the visual impact of the 11-meter-high structure. By decomposing the volume and incorporating varied cladding treatments, the architects created a design that blends harmoniously with the environment while maintaining a striking architectural presence.


Architectural Harmony with Nature
Namoncahue House exemplifies how architecture can adapt to and coexist with nature. The absence of rain gutters, replaced by generous eaves, reduces maintenance and protects windows from heavy rain. This approach ensures the design remains practical while emphasizing the beauty of natural materials and finishes.





The house’s elevated position and thoughtful orientation enhance its connection to the surrounding landscape, making it a serene retreat that celebrates its location. The design encourages interaction with nature while providing comfortable and functional living spaces for the family.



Namoncahue House on Lake Colico is a masterpiece of architectural design that showcases the harmony between innovative solutions and natural beauty. Schwember García-Huidobro Arquitectos have created a home that not only overcomes the challenges of its site but also celebrates the essence of its environment. With its thoughtful layout, sustainable materials, and seamless integration into the landscape, Namoncahue House stands as a testament to the power of architecture to create spaces that inspire and connect with nature.







All Photographs are works of Nicolás Sánchez