Neil Logan's karma comes back to bite him - a shocking twist is revealed!
Did Neil Logan's actions finally catch up with him? The surprising truth behind his karma was revealed!

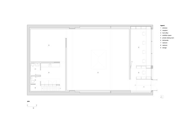
Karma, an art gallery located in the trendy East Village neighborhood of New York City, has recently opened its third exhibition space on the same street to accommodate its expanding program. The new gallery, housed in a former industrial brick building, is situated adjacent to the historic New York Marble Cemetery, which dates back to 1830. This prime location offers a remarkable green space characteristic of the area, making it an attractive destination for art enthusiasts and visitors alike.
Originally built in the early 20th century, the building has undergone a transformation to house the new exhibition space. The interior features raw exposed brick, wooden joists, and a concrete slab floor, providing a unique backdrop for the artwork on display. The building's exterior, which was once graffitied over, has been updated with a new storefront that includes steel and glass structures divided into five parts of equal width.
The main exhibition space, which is square in plan and half the width of the building's ceiling height, is nestled in the middle half of the footprint. This principal room showcases the tension between the typical 'white cube' gallery space and the desire to retain the building's essential character. The original brick and steel roof beams are exposed at the top of the walls and ceiling, while a large skylight at the center of the space provides natural light to the artwork.
The lower height non-public area features a kitchenette, restrooms, and storage, while a mezzanine office provides the possibility to display art for the gallery's clientele. Millwork pieces such as reception desks, office desks, dividing wall bookcases, built-in office cabinets, and a kitchenette and built-in under stair storage have been added to the renovation to contrast with the otherwise materially bare finishes and commercially available lighting.
The new exhibition space at Karma is an exciting addition to the East Village art scene, offering a unique and visually striking setting for art exhibitions. With its prime location and beautifully transformed interior and exterior, it is sure to attract a wide range of visitors and art enthusiasts.





















Popular Articles
Popular articles from the community
Magic Box Office Barcelona Innovative Sustainable Workplace Design
Innovative sustainable office design featuring triangular form, ceramic façade, flexible interiors, natural light optimization, and creative workspace for modern work culture.
Split House: A Compact Urban Home Blending Privacy, Light, and Flexible Living in Japan
Compact Japanese home featuring DOMA space, flexible café potential, passive lighting, privacy zoning, and sustainable urban living design.
Alton Cliff House: A Harmonious Retreat by f2a Architecture in Lake Country, Canada
Alton Cliff House blends corten steel, prefabrication, and sustainable design, creating a luxurious, energy-efficient retreat perched on Canadian cliffs.
Marvila Apartment Renovation in Lisbon: A Bright Minimalist Attic Transformation by KEMA Studio
Bright attic transformed into minimalist Lisbon apartment with skylights, sustainable materials, open plan layout, and industrial-inspired interior design elements.
Similar Reads
You might also enjoy these articles
Rede Arquitetos Builds an Open-Air School in Fortaleza That Doubles as a Neighborhood Living Room
Educar II SESC-CE folds sports, dance, and community gathering into a courtyard campus wrapped in mesh and tropical color.
NZ10 Apartment by auba studio: Adaptive Reuse in Palma de Mallorca
Adaptive reuse apartment transforms bakery into light-filled home with patios, privacy layers, and wood interiors enhancing urban living experience.
TGK Nirasaki Plant: A Smart Factory Blending Technology, Landscape, and Wellness
Smart factory in Japan blending IoT manufacturing, scenic trail design, natural ventilation, and landscape integration to enhance user experience and sustainability.
House in Macieira by Nelson Resende Arquitecto: A Sensitive Transformation Rooted in Context and Materiality
Adaptive reuse house blending wood, glass, and landscape, transforming traditional Portuguese architecture into a warm, open, contemporary living environment.
Explore Architecture Competitions
Discover active competitions in this discipline
The International Standard for Design Portfolios
The Global Benchmark for Architecture Dissertation Awards
The Global Benchmark for Graduation Excellence
Challenge to reimagine the Iron Throne
Comments (0)
Please login or sign up to add comments
No comments yet. Be the first to comment!