Net Zero Energy House in Boulder: Panorama House by Studio B Architecture + Interiors
This article explores Panorama House in Boulder, a net zero energy house blending mid-century heritage with modern sustainable design.
A Modern Renovation Rooted in Mid-Century Heritage
Panorama House, designed by Studio B Architecture + Interiors, stands as a masterful reinterpretation of mid-century architecture through the lens of 21st-century sustainable design. Nestled in the picturesque city of Boulder, Colorado, this 7,840-square-foot residence blends architectural legacy with innovation, transforming an existing home originally designed by renowned architect James Hunter into a net zero energy house.



Balancing Historic Preservation and Contemporary Expansion
Recognized as a Historic Landmark, the renovation of Panorama House began with the intent to preserve the home's original character while expanding its functionality and environmental performance. The L-shaped layout frames a private pool courtyard and spa, harmonizing privacy with open vistas of the Boulder Front Range. The East-West orientation was carefully designed to minimize the home's visual impact on the surrounding natural landscape, especially from nearby Chautauqua Park.



Vertical wood slats throughout the residence create a dynamic interplay of shadow, privacy, and light control. These architectural elements not only reference the home's mid-century origins but also support passive solar strategies, preserving expansive views while filtering sunlight.



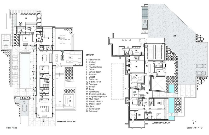
Spatial Flow and Site Connectivity
The home’s plan is designed around seamless connectivity to nature. The central pool courtyard acts as a transitional space that connects the home to the environment while serving multiple functions—a reflective pool, lap pool, and outdoor lounge. This area visually and physically links the main living zones with the mountain views and outdoor entertainment.


Inside, the kitchen and living room open toward the iconic Flatirons, offering panoramic views through floor-to-ceiling glazing. The dining room is purposefully positioned to align with cliffs above, while the primary suite and bathroom embrace the courtyard and a secluded northern yoga platform. Every spatial decision honors the original structure while enriching it with new, immersive experiences.


Interior Design: Modern Serenity with Natural Materials
Leap Interiors curated the interior environment using natural materials such as stained white oak, Japanese plaster, and limestone. These finishes reflect the calm, grounded aesthetic of modern design while enhancing acoustic performance and thermal comfort. Wood slat walls act as spatial dividers and contribute to the home's calm, textural warmth.


The original portion of the house retains its vintage charm with natural stone, a wood-burning fireplace, and curated furnishings. This space connects directly to a sunken outdoor fire pit, emphasizing introspective retreat within the broader mountain context.


Hidden Luxury and Creative Spaces
Among the home's most distinctive features is a concealed speakeasy lounge with a performance stage equipped for live music, sound, and lighting. Adjacent to this entertainment zone is a state-of-the-art recording studio with acoustic treatments designed for professional use. These elements reflect the owner’s passion for music and enhance the house’s unique character.


A hidden car lift within the garage optimizes space and provides multi-level vehicle access, a discreet nod to modern engineering within a residential setting.

Sustainable Design and Net Zero Energy Performance
Panorama House is not only an architectural masterpiece—it is a net zero energy house. The home incorporates high-performance glass, energy-efficient assemblies, and integrated photovoltaic systems. A geothermal heating and cooling system further reduces energy demand, supported by intelligent automation that responds to Boulder’s climate conditions.


Through these sustainable strategies, the residence minimizes its carbon footprint while offering year-round thermal comfort, daylight optimization, and ecological responsibility. It stands as a benchmark for integrating sustainable performance with luxury living.

A New Model for Sustainable Architectural Heritage
Panorama House exemplifies how architectural heritage can evolve into a high-performance, environmentally responsible residence. By respecting the original mid-century design and embedding innovative systems and strategies, Studio B Architecture + Interiors have crafted a net zero energy house that is both timeless and future-forward.


All photographs are works of James Florio
Popular Articles
Popular articles from the community
The Ken Roberts Memorial Delineation Competition (Krob)
As the most senior architectural drawing competition currently in operation anywhere in the world, it draws hundreds of entries each year, awarding the very best submissions in a series of medium-based categories.
Solar Steam: A Climate-Responsive Architecture That Redefines the Monument
A climate-responsive memorial architecture that transforms heat, decay, and time into a living system reflecting humanity’s ecological impact.
Fifth NRE Jazz Club – De Bever Architecten: Eindhoven’s Revitalized Cultural Hub
Historic gas factory transformed into Fifth NRE Jazz Club blending modern sustainability, jazz culture, dining, and heritage architecture seamlessly.
Similar Reads
You might also enjoy these articles
The Ken Roberts Memorial Delineation Competition (Krob)
As the most senior architectural drawing competition currently in operation anywhere in the world, it draws hundreds of entries each year, awarding the very best submissions in a series of medium-based categories.
Waterfront Redevelopment and Urban Revitalization in Mumbai: Forging a New Dawn for Darukhana
A transformative waterfront redevelopment project reimagining Darukhana’s shipbreaking heritage into an inclusive urban future.
OUT-OF-MAP: A Call for Postcards on Feminist Narratives of Public Space
Rhizoma Design and Research Lab invites artists, designers, architects, researchers, and students to reflect on how feminist perspectives can reshape public space. Selected works will be exhibited in Barcelona, October 2026. Submissions open until 15 April 2026.
Documentation Work on Buddhist Wooden Temple
Architectural syncretism and cultural hybridity: A comparative study of the Buddhist temples in Chattogram Hill tracks
Explore Architecture Competitions
Discover active competitions in this discipline
The International Standard for Design Portfolios
The Global Benchmark for Architecture Dissertation Awards
The Global Benchmark for Graduation Excellence
Challenge to reimagine the Iron Throne
Comments (0)
Please login or sign up to add comments
No comments yet. Be the first to comment!