Architecture on the borders
No Man’s Land - Result Story
Background
A humanitarian crisis has taken place along the borders of US-Mexico. In May 2019, around 19000 people were waiting in Mexico to seek asylum in States.
From only men crossing over to the US for employment in 2000 to families seeking refuge in 2014 for a better livelihood, there has been a tectonic shift along the borders of US-Mexico. This led to American Immigration Crisis in 2014, following which a crackdown was implemented by the Trump government. With ‘Zero Tolerance Policy’ in 2018 and ‘Metering’ in 2019, the total border crossings have been constant but the no. of people seeking asylum has increased. This has led to thousands of asylum seekers waiting for refugee status along the US-Mexico border.
Brief
Once a country of transit, Mexico is buckling under the demands of its new reality. With the US administration seeking for “safe third country” to absorb asylum seekers, organizations in Mexico have struggled to keep up with the influx of migrants. Along with that, the inhumane living conditions in migrant camps, systematic discrimination, and an increased crime rate - have made people restless for a response from the Centre of Border and Protection (CBP). This has led to them occupying streets, spaces near border walkways and bridges.
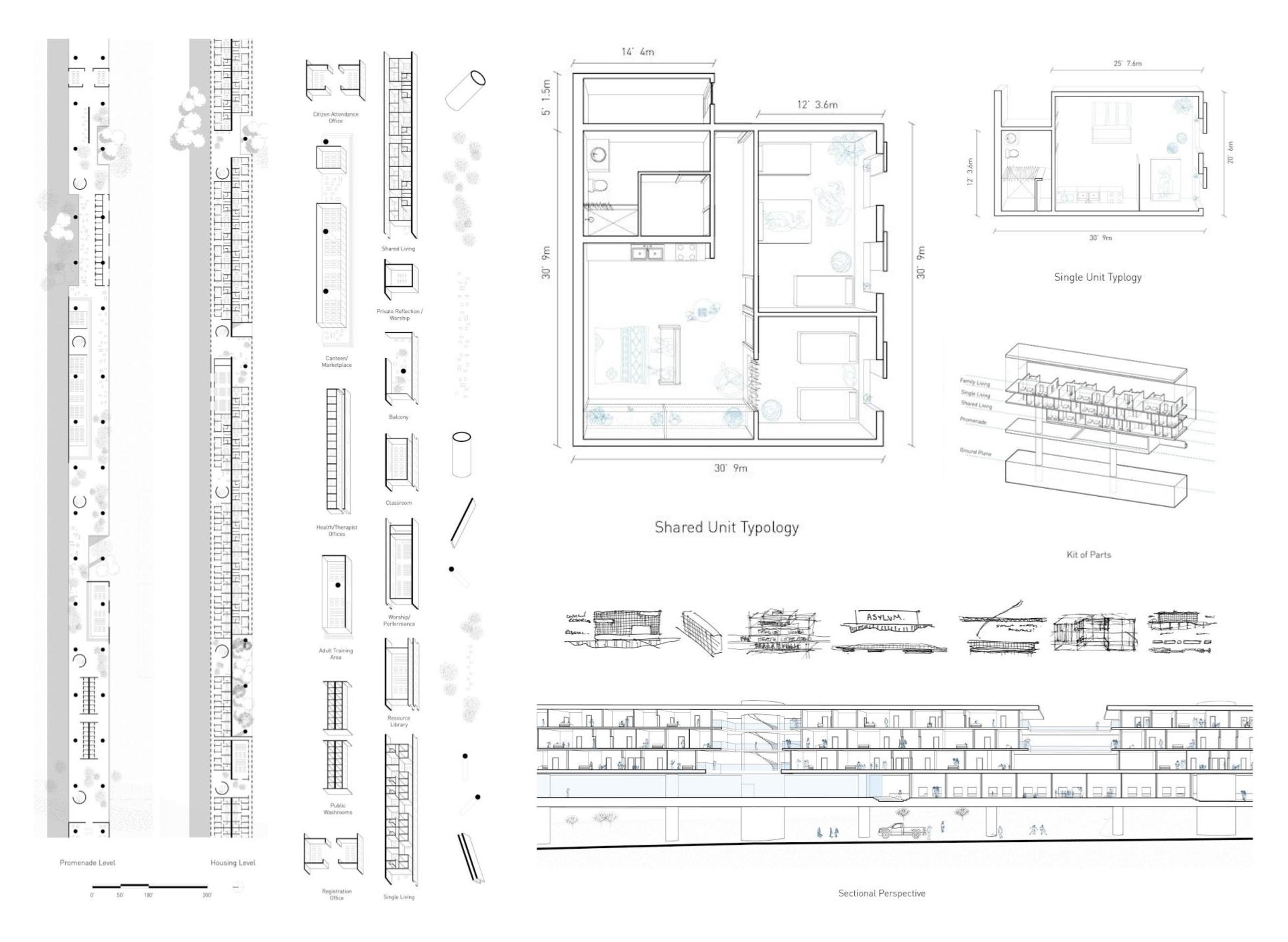
The challenge was to design an immigrant respite centre over a pedestrian vehicular border bridge. It will function as a temporary accommodation facility for 1500 asylum seekers where they can rehabilitate, interact and plan their future.
The jury for the competition consisted of esteemed designers, professionals and academicians from around the world. The Lead Jurors for the competitions were as follows:
Adrian Flores, Principal, Atelier uno, Mexico
Rolando Girodengo, Principal, Atelier uno, Mexico
Jachen Schleich, Partner, Dellekamp / Schleich, Zurich
Salvador Reyes Ríos, Director - Founder, Reyes ríos + larraín arquitectos, Mexico
Juan Cuevas Duran, Architect. Founder, Estudio Cavernas, Thailand
Luis Diego Barahona Ortega, Director, LDB Arquitectura, Costa Rica
Some of the Best of competition projects are:
Winning Project: Purgatorium
By: Matias Vilches Navarro
Description: It provides a space for those to whom globalization and bureaucracy do not give a place in this world, Nontheless, the project maintains the border control in a super infraestructura, based on vertical separation as per on length of stay. Composed by a initial ground level of encounter and finish on the top with the idyllic scenario of "Purgatorium".
------------------
Runner - Up: El Túnel Legal
By: Nastya Sibgatullina & Алексей Устинов
Description: El Tunel Legal is a prototype of what the tunnel of the future should be like, namely: protecting, adapting, helping. Passing through such "tunnels", people embark on the path of legal entry into the United States, leading to a law-abiding and happy life. It’s time to make the asylum seekers’ usual path affordable and comfortable again!
-----------------
Honorable Mention: Beyond the Border
By: Ayman Rauhani
Description: This project proposes a counter architecture to a typical border wall at the US/Mexico border. The building is imagined not only as site specific in this case but is also given ambiguity that this architectural condition can occur in any border location between Mexico and the United States, perhaps even at a global scale.
--------------------
People Choice: BNP - Building a New Perspective
By: Willian Bonora Santana
Description: Immigrants Make US Great.
-----------------------
Editor’s Choice: TEMPORARY HABITAT
By: Jerry He
Description: The purpose of this program is to give asylum-seekers a temporary habitat where they can live in dignity until they can enter the United States with legal identification, and everyone will be treated fairly here.
--------------------
Editor’s Choice: HOMELAND
By: Guangxin Xie
Description: For asylum seekers, a simple and stable living environment is the most basic requirement of life. Simple structure, fast construction and comfortable life are indispensable elements of asylum space. "No man's land" is a bold concept. The design makes "no man's land" a "home" with vitality, hope and comfortable living atmosphere, and gives asylum hope to live
--------------------
Discover the design brief here: https://uni.xyz/competitions/no-mans-land/info/about
Discover the full results here: https://uni.xyz/competitions/no-mans-land/entries
Follow us on social media: Facebook | Instagram | LinkedIn | Twitter | Youtube
Discover other design competitions to participate here: https://uni.xyz/competitions
Popular Articles
Popular articles from the community
A Contemporary Take on Iranian Residential Architecture
A modern interior design in Mashhad that reinterprets brick, light, and spatial flow to create a warm, contemporary residential architecture.
An Miên Lumière Cafe by xưởng xép, Ho Chi Minh City, Vietnam
An industrial-inspired café where layered steel and warm light create a dynamic, immersive environment shaped by reflection, depth, and perception.
Treehouse Apartment: A Warm Timber Interior Blending Craft, Play, and Contemporary Living
Warm timber apartment with integrated treehouse, combining natural materials, craftsmanship, and playful design to create a flexible, family-oriented living environment.
Solar Steam: A Climate-Responsive Architecture That Redefines the Monument
A climate-responsive memorial architecture that transforms heat, decay, and time into a living system reflecting humanity’s ecological impact.
Similar Reads
You might also enjoy these articles
ORACLE: A Sustainable Memorial Architecture Responding to Climate Urgency
A sustainable memorial architecture in Cairo that transforms climate urgency into spatial experience, urging collective reflection and action
Suspended: Reimagining Paris Through Adaptive Reuse Architecture
A suspended intervention transforms abandoned Paris railways into inclusive, adaptive reuse architecture bridging heritage, mobility, and public life.
Solar Steam: A Climate-Responsive Architecture That Redefines the Monument
A climate-responsive memorial architecture that transforms heat, decay, and time into a living system reflecting humanity’s ecological impact.
Rolly: A Modular Approach to Urban Regeneration Architecture on Paris’ Petite Ceinture
A modular urban regeneration architecture project transforming Paris’ abandoned railway into a dynamic, movable and community-driven public space
Explore Political Architecture Competitions
Discover active competitions in this discipline
The International Standard for Design Portfolios
The Global Benchmark for Architecture Dissertation Awards
The Global Benchmark for Graduation Excellence
Challenge to reimagine the Iron Throne












Comments (0)
Please login or sign up to add comments
No comments yet. Be the first to comment!