Nonhyun 169: Small Commercial Architecture in Seoul
See Architects built a 520 m² commercial building on a tight corner lot in Gangnam, Seoul, turning height limits into architectural discipline.
Seoul's Gangnam district is mostly known for the towers: glass offices, luxury retail, high-rise residential. But between the wide commercial avenues runs a finer grain of four-storey buildings on tight lots, limited by zoning to half the floor area ratio of their neighbours. Nonhyun 169, completed in 2025 by See Architects, is a commercial building on exactly that kind of site.
The challenge was specific. The lot sits at the intersection of a busy commercial street and a quiet residential alley. Four storeys, limited FAR, dual exposure. How do you make a small commercial building visible and distinctive without exceeding what the neighbourhood allows? The answer here is not volume. It is surface, proportion, and light.
Corner Condition as an Opportunity



Corner lots in Seoul carry a double obligation. They need to address two streets, which means two scales and two speeds of pedestrian traffic. Most small commercial buildings ignore this and simply repeat the same facade on both sides. Nonhyun 169 uses the corner as a hinge.
The facade wraps and shifts across the corner so the building reads differently from each approach. From the commercial street, it presents a confident face. From the alley, it steps back and becomes quieter. Lead architect Kee Lew handled this by giving the envelope a geometry that does both things at once without resorting to a feature wall or a gimmick.
Making Four Storeys Count


Height limits are usually treated as a loss. You get four floors when the market wants six, so the project starts from a position of constraint. The alternative reading, the one this project takes, is that a four-storey height forces discipline. Every floor has to earn its place.
The section is tight and deliberate. Ceiling heights are generous where the commercial tenants need them and compressed where structure and services run. The result is a building that feels taller than it is, not because of tricks, but because the proportions are carefully studied.

Facade as Identity



In a neighbourhood where most commercial buildings rely on signage to identify themselves, Nonhyun 169 uses architecture. The facade material and articulation are distinctive enough that the building does not need a billboard. Tenants benefit from the address without having to compete for visual attention.
This is an increasingly valuable proposition in Seoul's commercial districts, where landlords have started to understand that architectural identity attracts better tenants, who stay longer and pay more. A building that looks like something specific is more valuable than a building that looks like every other building on the block.
Light and Interior Quality



At 520 square metres of total area, the floor plates are compact. This could easily produce dark, deep interiors. Instead, the facade openings are sized and placed to bring natural light deep into each floor. The result is commercial space that feels open even when the lot coverage is high.
The photographs show interiors that are minimal, bright, and usable without heavy fit-out. A good speculative building gives its tenants a blank canvas that already works. The light does the finishing.
The Detail at Close Range



Up close, the facade reads as a layered composition. There are depth changes, reveals, and material transitions that reward the pedestrian. This matters because the alley side of the building is experienced at walking pace, often at very close range. A flat wall would feel oppressive. A wall with depth and shadow does not.
This level of care at the detail scale is what separates competent commercial buildings from forgettable ones. The budget for this level of detail is usually small in absolute terms, but the return in street presence is large.
Night and Artificial Light

The building reads well at night. The facade openings become light boxes, and the geometry that works through shadow during the day works through glow after dark. This is not accidental. A commercial building in Gangnam needs to perform after 6pm, when foot traffic peaks. The architects clearly designed for both conditions.
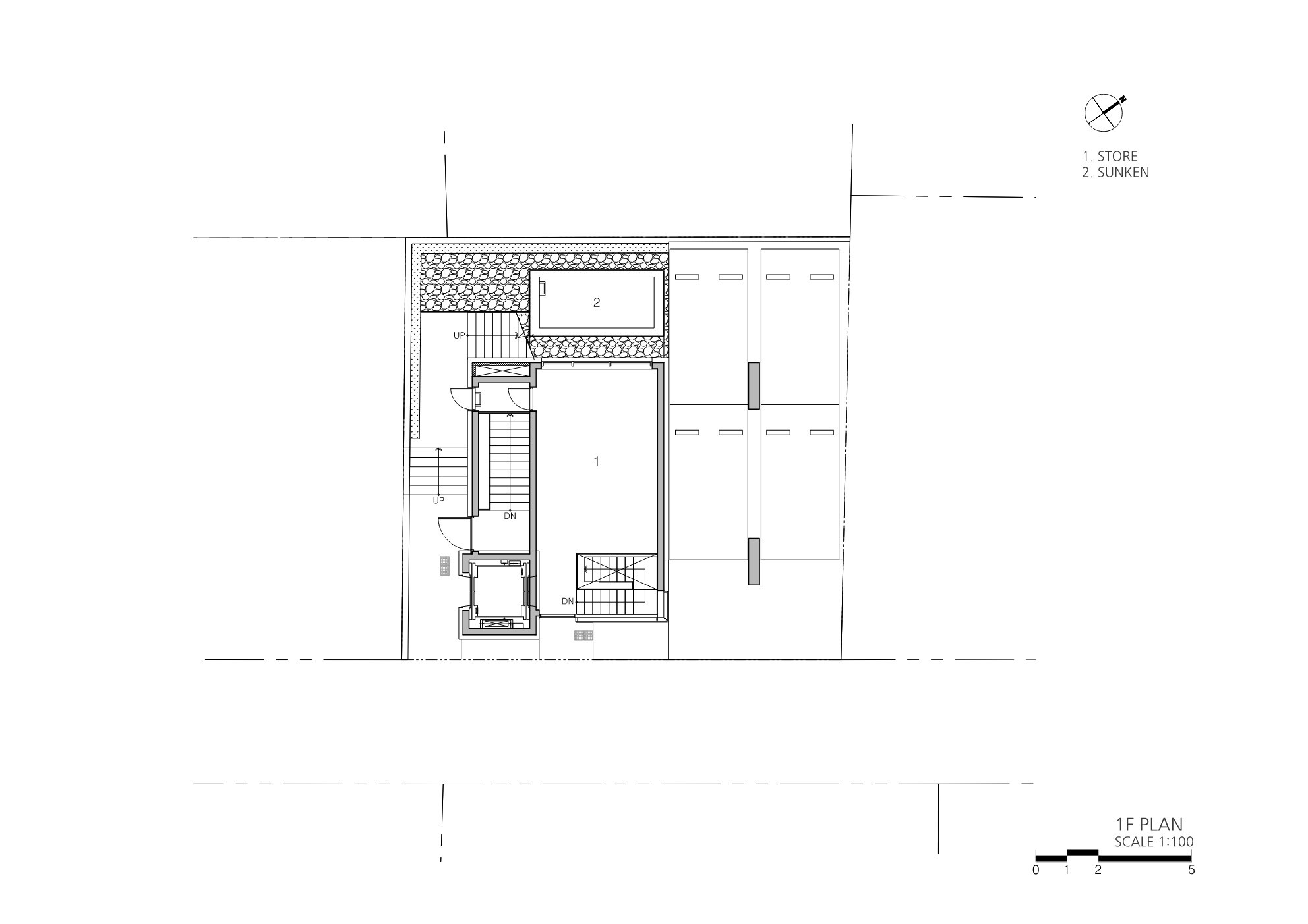
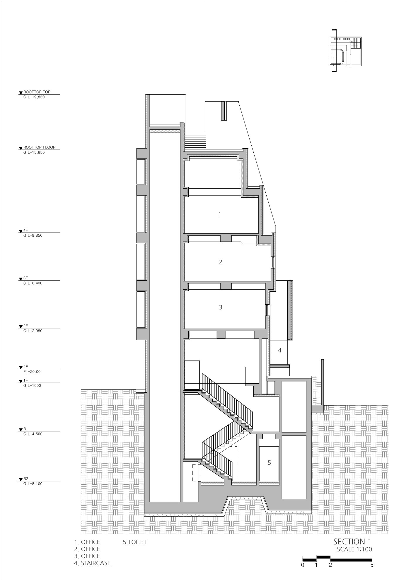
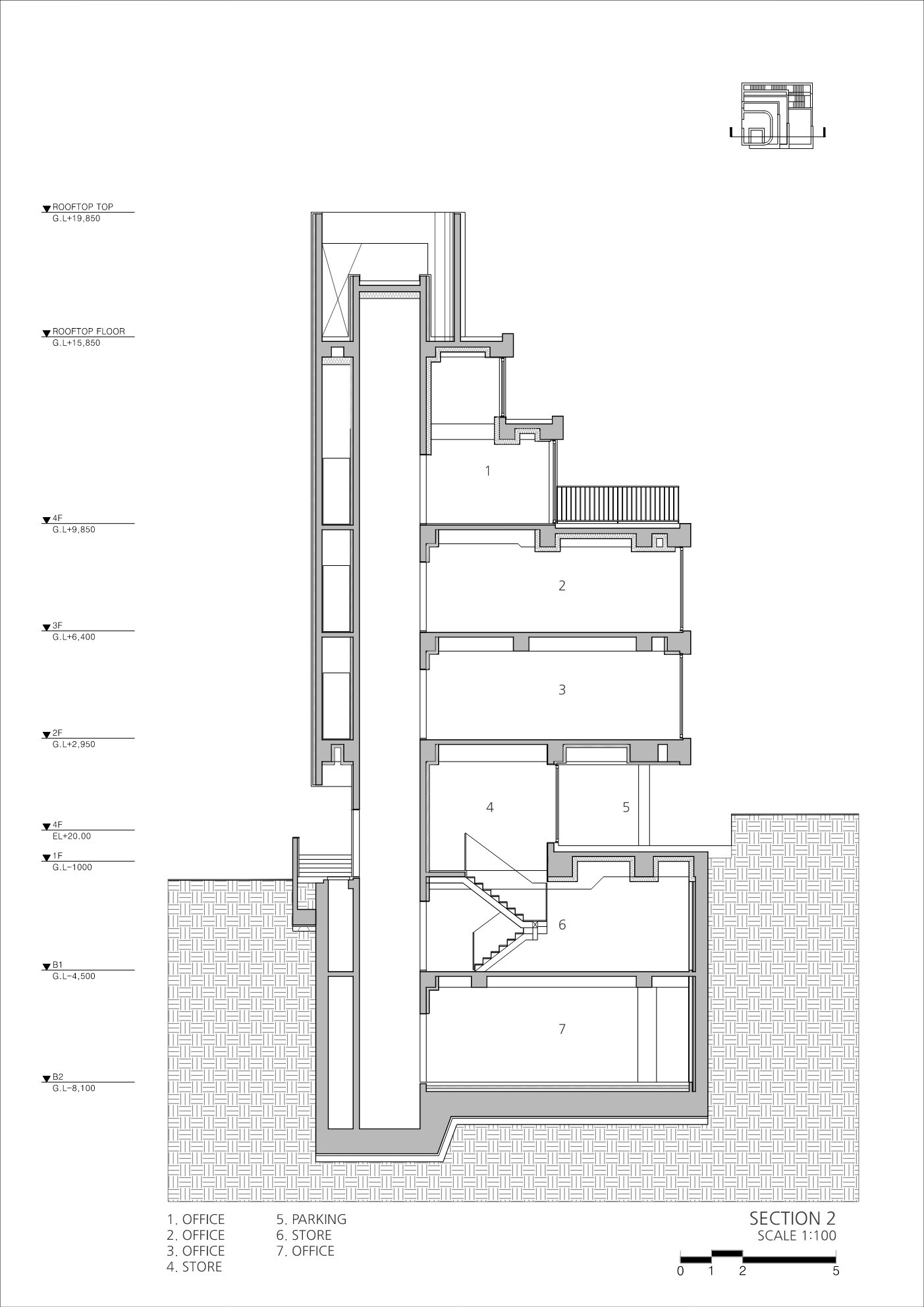
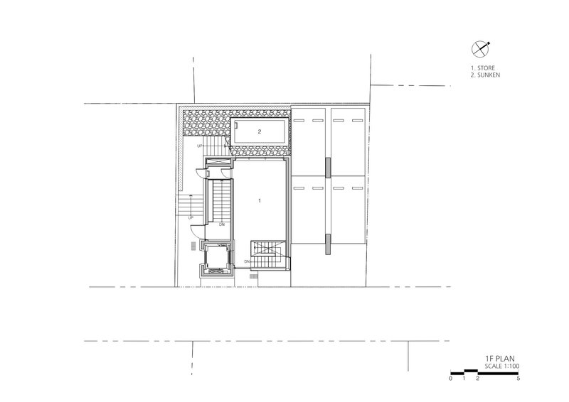
Plans, Sections, and Elevation



The plans show how the compact floor plate is organised. Ground floor maximises the public face. Upper floors stack neatly with efficient cores. The sections explain how the ceiling heights vary and where the envelope steps.


Why This Project Matters
Small commercial buildings rarely get published. They are not glamorous. They don't photograph as dramatically as houses or cultural centres. But they are the actual fabric of most cities, and the quality of urban life depends on how well they are designed. Nonhyun 169 is a good example of what happens when an architect takes a routine brief, limited zoning, and limited floor area, and treats it as a real design problem rather than a box to fill.
If you are working on a small commercial project in a dense urban neighbourhood, this building is worth studying for how it handles the corner, scales the facade, manages light on a tight lot, and uses material to create identity without signage.
About the Studio
Share Your Own Work on uni.xyz
If you are working on commercial or mixed-use architecture in dense urban settings, uni.xyz is a place to publish your work, enter competitions, and connect with a global design community.
Project credits: Nonhyun 169 by See Architects. Seoul, South Korea. 520 m². Completed 2025. Lead architect: Kee Lew. Structural engineering: SDM Partners. Mechanical: Yousung Engineering. Last updated: April 2026.
Popular Articles
Popular articles from the community
Magic Box Office Barcelona Innovative Sustainable Workplace Design
Innovative sustainable office design featuring triangular form, ceramic façade, flexible interiors, natural light optimization, and creative workspace for modern work culture.
FE House: Ground-Floor Living in Ribeirão Preto
N2B Arquitetura designed a 1,020 m² single-storey house in inland São Paulo that resolves a generous programme as both home and refuge.
Light Pavilion: Capturing Jeju's Light in 10 m²
DRAWING WORKS built a 10 m² timber pavilion on Jeju Island that treats light as architecture, framing the sky through precisely angled openings.
20 Most Popular Commercial Architecture Projects of 2025
From sustainable market concepts to heritage factories, the commercial buildings and proposals that drew the most attention on uni.xyz this year.
Similar Reads
You might also enjoy these articles
Magic Box Office Barcelona Innovative Sustainable Workplace Design
Innovative sustainable office design featuring triangular form, ceramic façade, flexible interiors, natural light optimization, and creative workspace for modern work culture.
Mantiqueira House by SysHaus and M Magalhães Estúdio
A linear modular house embedded in Serra da Mantiqueira, integrating panoramic views, sustainable prefabrication, minimal terrain impact, and contemporary interiors.
Guardia di Finanza Office Building by DEMOGO
Stepped institutional office in Bologna integrates terraces, red-toned facade, and linear staircase, reconnecting military complex with surrounding urban landscape.
Tara Thiwakorn Pavilion: A Community-Built Learning Space Along the Mekong River
A community-built pavilion in rural Thailand, combining steel and local wood to create an open-air learning and gathering space.
Explore Architecture Competitions
Discover active competitions in this discipline
The International Standard for Design Portfolios
The Global Benchmark for Architecture Dissertation Awards
The Global Benchmark for Graduation Excellence
Challenge to reimagine the Iron Throne
Comments (0)
Please login or sign up to add comments
No comments yet. Be the first to comment!