Office Renovation in Kyoto: WA House by ujizono architects
Explore WA House by ujizono architects, a thoughtful office renovation in Kyoto that blends traditional elements with modern design.
WA House by ujizono architects is an exemplary office renovation project located in Kyoto, Japan. This innovative transformation converts a former parking lot into a functional and aesthetically pleasing office space. The design integrates traditional Kyoto architectural elements with modern functionality, creating a seamless connection between the interior and exterior. This article explores the architectural strategies and design choices that define this office renovation in Kyoto.


Project Background
Vision and Location
Located in the historical city of Kyoto, WA House is a renovated space that bridges the gap between traditional and contemporary design. The project aims to honor Kyoto’s long-standing architectural traditions while providing a modern workspace that fosters creativity and collaboration.

Design Objectives
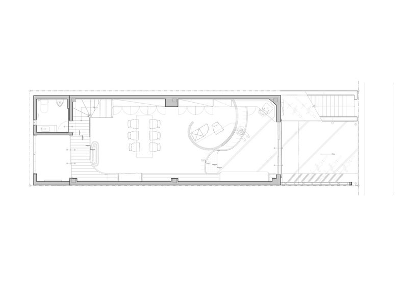
The primary goal was to create a space that connects gently and segmentally without rigid divisions. The design emphasizes continuity from the ground floor, ensuring that the openness and locality of the ground floor are preserved and enhanced.

Architectural Strategies
Continuity and Connection
Ground Floor Design
Kyoto's architectural history often regards the ground floor as a special place that connects with the city. The renovation of WA House maintains this tradition by designing the ground floor to flow seamlessly into the sidewalk, creating an open and inviting space.


Louver Wall
A key feature of the design is the louver wall, which serves both as an office space and a welcoming area for visitors. This wall creates a gentle transition between the earthen floor area and the office area, ensuring that the space remains connected and cohesive.

Materiality and Aesthetics
Use of Ordinary Materials
The project was designed with the use of ordinary materials in mind. The walls and floors are washed with a mixture of Nambu stone, and the ceiling is painted with EP on Japanese paper cloth. These materials, crafted by human hands, add a tactile quality to the space, making it inviting and warm.


Elliptical Louvers
The louvers and stiles are elliptical in shape, creating a flat expanse that enhances the sense of openness. This unique design element adds to the overall aesthetic appeal of the space, ensuring it feels both expansive and cohesive.


Functional and Aesthetic Solutions
Office Layout
The office layout is designed to foster collaboration and interaction. The space is open and segmented gently, allowing for flexibility in use. The design encourages movement and interaction, making it a dynamic workspace.


Lighting and Ambiance
The use of natural light is maximized through the design, with large windows and open spaces ensuring that the office is well-lit and airy. The materials and colors used contribute to a serene and productive ambiance, making the office a pleasant place to work.


Environmental and Cultural Impact
Sustainability
The use of ordinary, locally-sourced materials reduces the environmental impact of the renovation. By integrating traditional materials with modern design, the project promotes sustainability and environmental consciousness.

Cultural Preservation
WA House respects and preserves Kyoto's architectural traditions while integrating modern elements. This blend of old and new ensures that the office space is culturally significant and contextually appropriate.

WA House by ujizono architects is a standout example of office renovation in Kyoto. By blending traditional elements with modern design, the project creates a functional and aesthetically pleasing workspace that honors its historical context. This innovative approach sets a new standard for office renovations, demonstrating how thoughtful design can enhance both functionality and cultural heritage.


All photographs are work of Shohei Yoshida
Popular Articles
Popular articles from the community
The Ken Roberts Memorial Delineation Competition (Krob)
As the most senior architectural drawing competition currently in operation anywhere in the world, it draws hundreds of entries each year, awarding the very best submissions in a series of medium-based categories.
Solar Steam: A Climate-Responsive Architecture That Redefines the Monument
A climate-responsive memorial architecture that transforms heat, decay, and time into a living system reflecting humanity’s ecological impact.
Fifth NRE Jazz Club – De Bever Architecten: Eindhoven’s Revitalized Cultural Hub
Historic gas factory transformed into Fifth NRE Jazz Club blending modern sustainability, jazz culture, dining, and heritage architecture seamlessly.
Inverted Architecture Installation by Studio Link-Arc: Exploring the Intersection of Architecture and Living Organisms
Inverted Architecture Installation by Studio Link-Arc blends mycelium, sustainability, inverted design, ecological cycles, and urban adaptive architecture in Shenzhen.
Similar Reads
You might also enjoy these articles
The Ken Roberts Memorial Delineation Competition (Krob)
As the most senior architectural drawing competition currently in operation anywhere in the world, it draws hundreds of entries each year, awarding the very best submissions in a series of medium-based categories.
Waterfront Redevelopment and Urban Revitalization in Mumbai: Forging a New Dawn for Darukhana
A transformative waterfront redevelopment project reimagining Darukhana’s shipbreaking heritage into an inclusive urban future.
OUT-OF-MAP: A Call for Postcards on Feminist Narratives of Public Space
Rhizoma Design and Research Lab invites artists, designers, architects, researchers, and students to reflect on how feminist perspectives can reshape public space. Selected works will be exhibited in Barcelona, October 2026. Submissions open until 15 April 2026.
Documentation Work on Buddhist Wooden Temple
Architectural syncretism and cultural hybridity: A comparative study of the Buddhist temples in Chattogram Hill tracks
Explore Architecture Competitions
Discover active competitions in this discipline
The International Standard for Design Portfolios
The Global Benchmark for Architecture Dissertation Awards
The Global Benchmark for Graduation Excellence
Challenge to reimagine the Iron Throne
Comments (0)
Please login or sign up to add comments
No comments yet. Be the first to comment!