Oneness & Otherness Apartment by Shiran Ishay
The Oneness & Otherness Apartment by Shiran Ishay blends flexible furniture walls, movable partitions, and dynamic spaces for modern, intimate urban living.
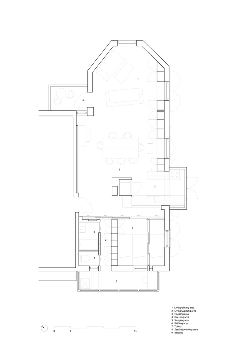
The Oneness & Otherness Apartment by Shiran Ishay is a masterclass in contemporary residential design, seamlessly merging functionality, flexibility, and spatial fluidity. Located in the historic German Colony of Jerusalem, this 70 m² apartment explores the delicate balance between shared living and personal privacy, redefining modern urban dwelling.

Design Concept: Dynamic Space Through Architecture
This apartment’s design revolves around three pivotal architectural elements:
- Vertical Furniture Walls
- Continuous Concrete Flooring
- Movable Wooden Partitions
These elements transform the apartment into a single, dynamic space that can be adapted for multiple functions or divided into distinct zones according to personal or social needs. The concept emphasizes creating a personal space carved out of common areas, fostering both family interaction and private moments.


Vertical Furniture Walls: Multifunctional Core
Replacing traditional plaster walls and doors, the vertical furniture walls define the apartment’s spatial organization. The seven-meter-long main furniture wall serves as the central hub for daily activities, including dining, working, cooking, socializing, and relaxation. Key features include:
- Four foldable tables and eight chairs for social events
- Concealed heavy gray curtain to create intimate spaces when needed
- Flexible arrangement for either communal or private settings
This design ensures that the apartment remains versatile, whether hosting guests or creating quiet zones for yoga, office work, or reflection.


Wooden Partitions: Flexibility & Flow
The five-meter wooden partitions are a crucial element of spatial adaptability. Their operation—fully open, half-open, or closed—enables:
- Separation of sleeping, dressing, and bathroom areas from common spaces
- Privacy for family members without isolating the communal areas
- Optimized daylight and ventilation when open, creating an airy, unified interior
These partitions enhance the sense of oneness and otherness, allowing the apartment to adjust fluidly to the needs of its inhabitants.


Private Zones & Sleeping Area
Another vertical furniture wall divides the sleeping area from the dressing and bathroom spaces. This dual-purpose wall incorporates:
- Sliding floor-to-ceiling doors for closet access
- Direct entry to the sleeping area
- Built-in drawers and dresser for efficient storage
The integration of storage and functionality demonstrates a smart, contemporary approach to compact apartment living.


Context & Historical Layering
The apartment is situated in a three-story building originally constructed in the 1930s, with second and third floors added in the 1960s. The 2022 renovation acts as an additional layer in the building’s architectural evolution, respecting its historic fabric while introducing modern, flexible living solutions.

Philosophy: Living Beyond Size
In an era of denser urban living, the project challenges conventional notions of small space design. Here, size is not only about storage or function but also about fostering new patterns of relationships, sensitivity, and social interaction. The title Oneness & Otherness reflects the balance between community and individuality, emphasizing adaptive, human-centered architecture.

All Photographs are works of Mikaela Burstow