Pagola 3023 Apartments: Redefining Urban Residential Architecture in Montevideo
Pagola 3023 Apartments in Montevideo blend innovative design with urban context, featuring courtyards and dynamic facades.
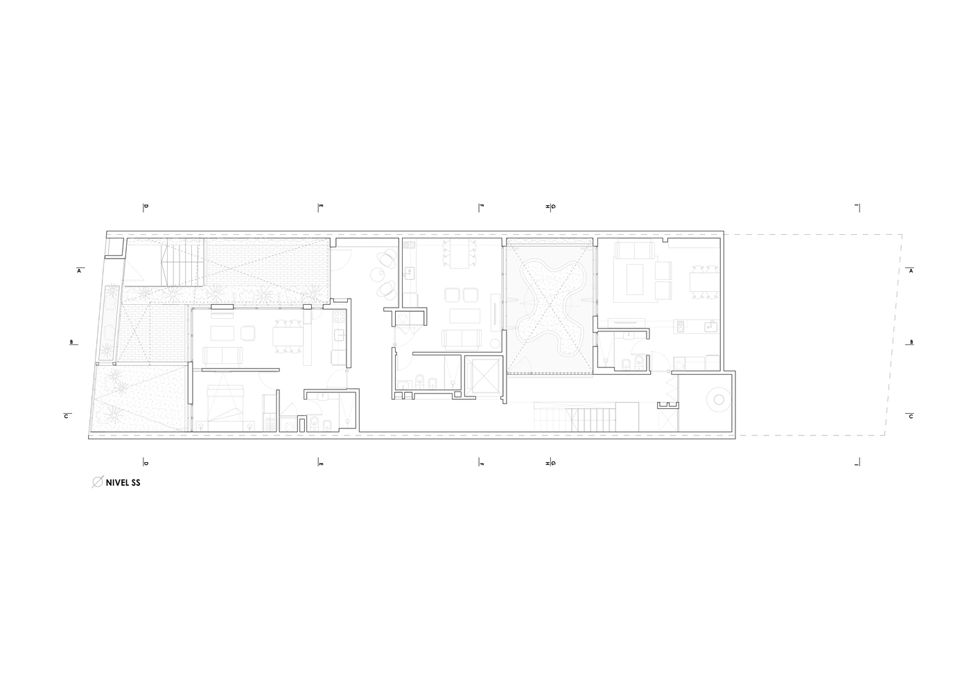
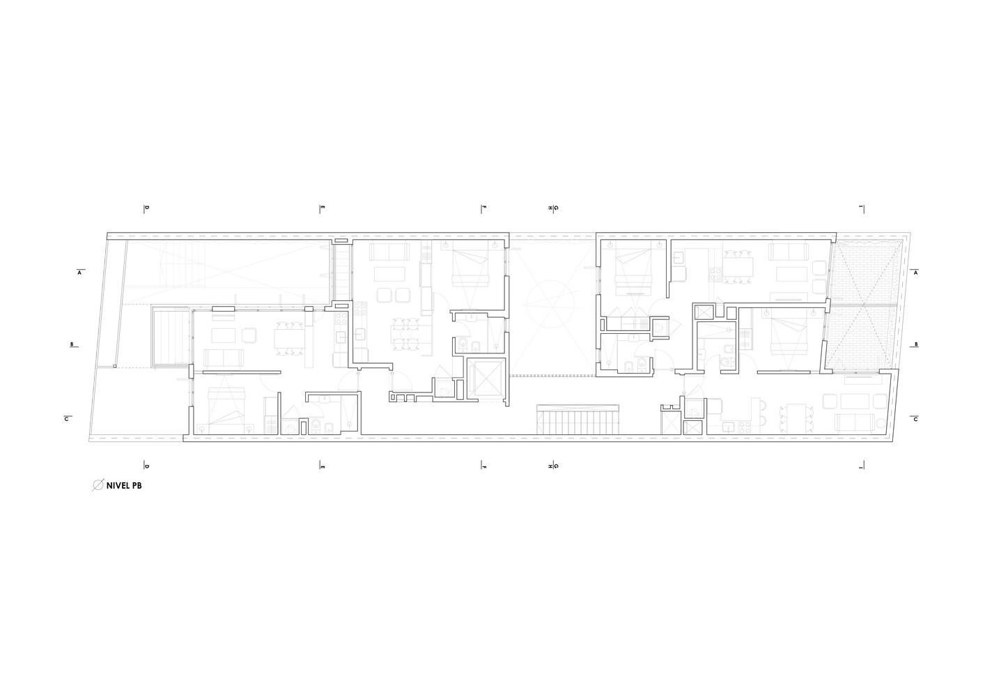
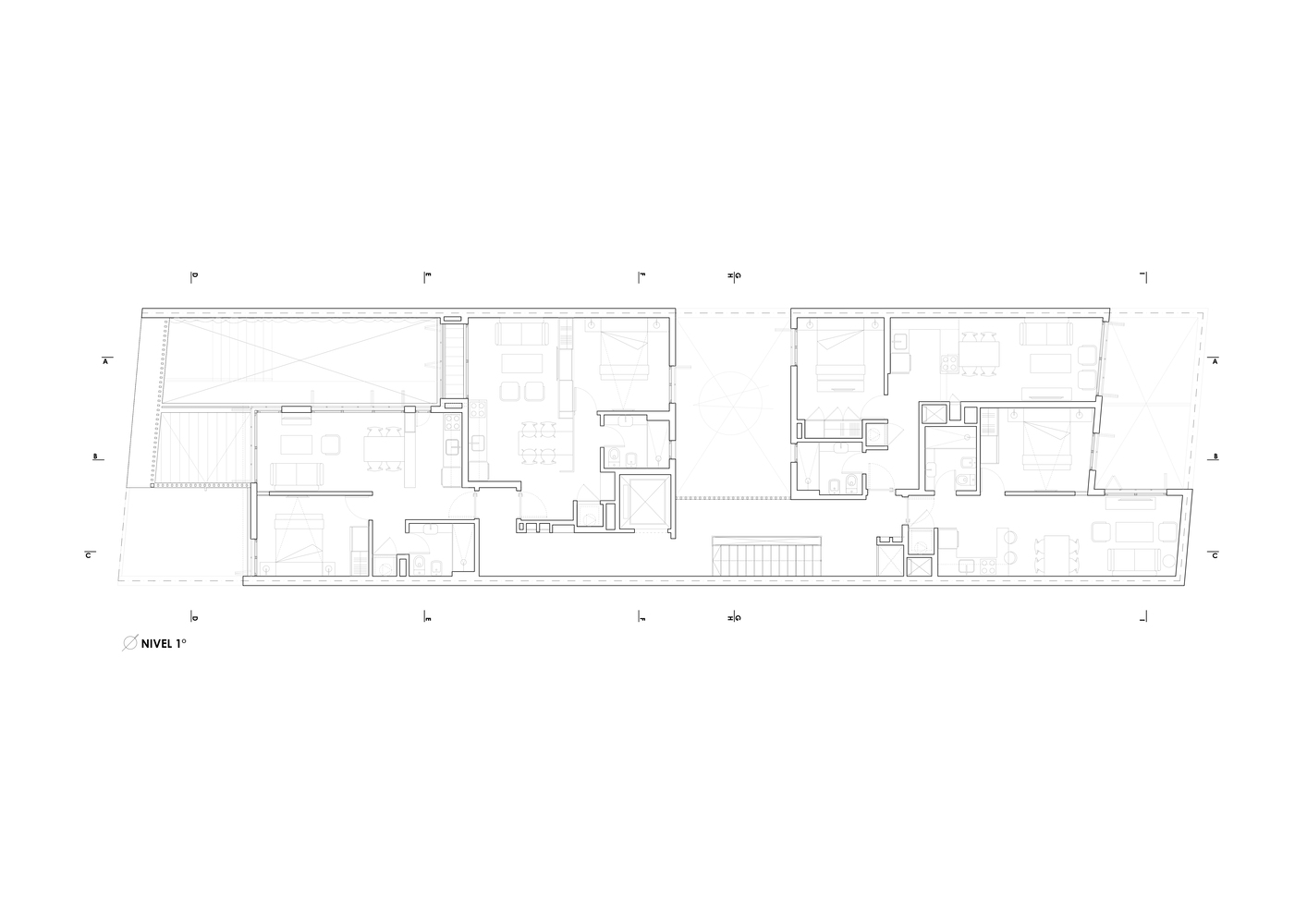
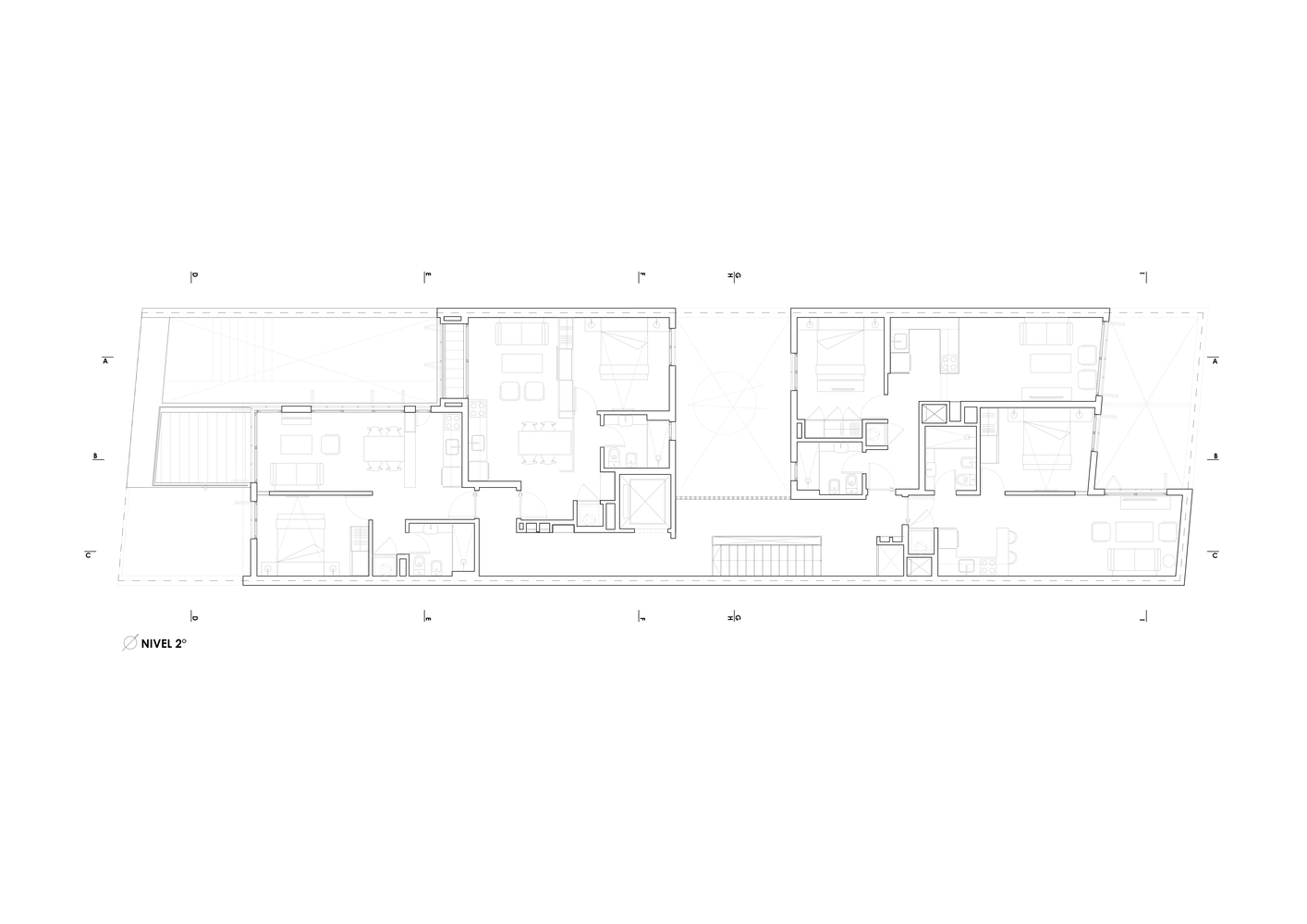
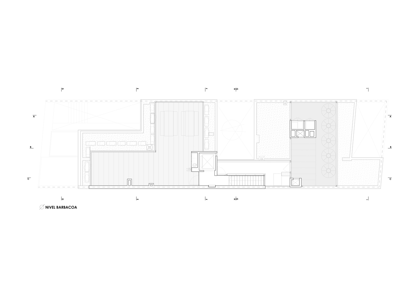
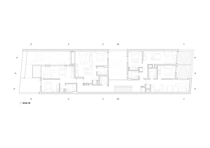
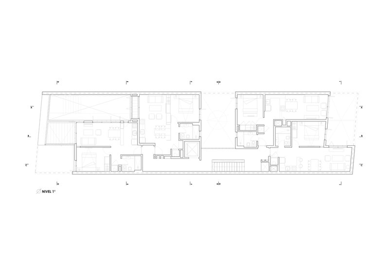
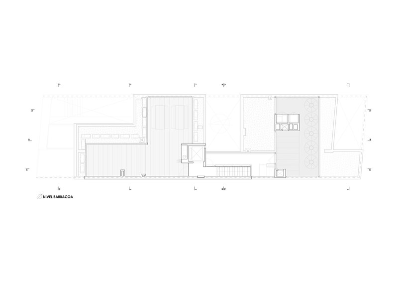
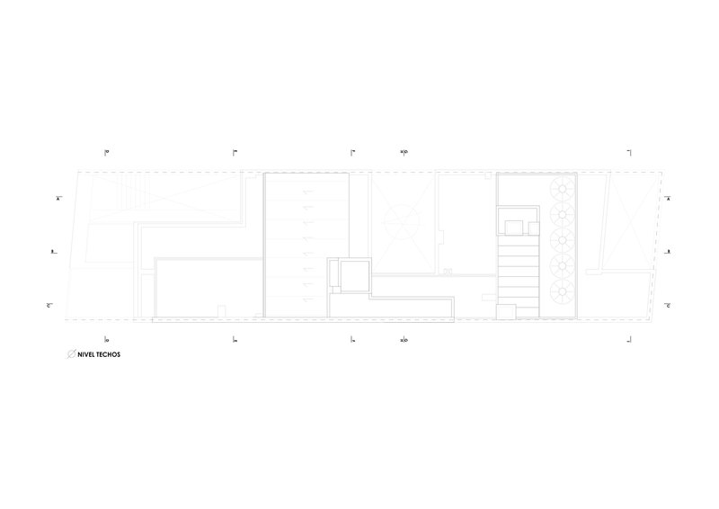
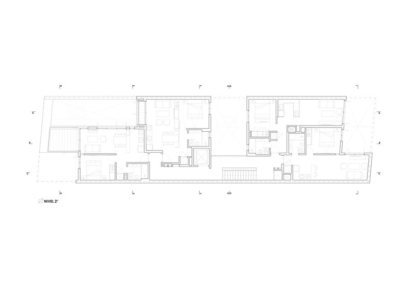
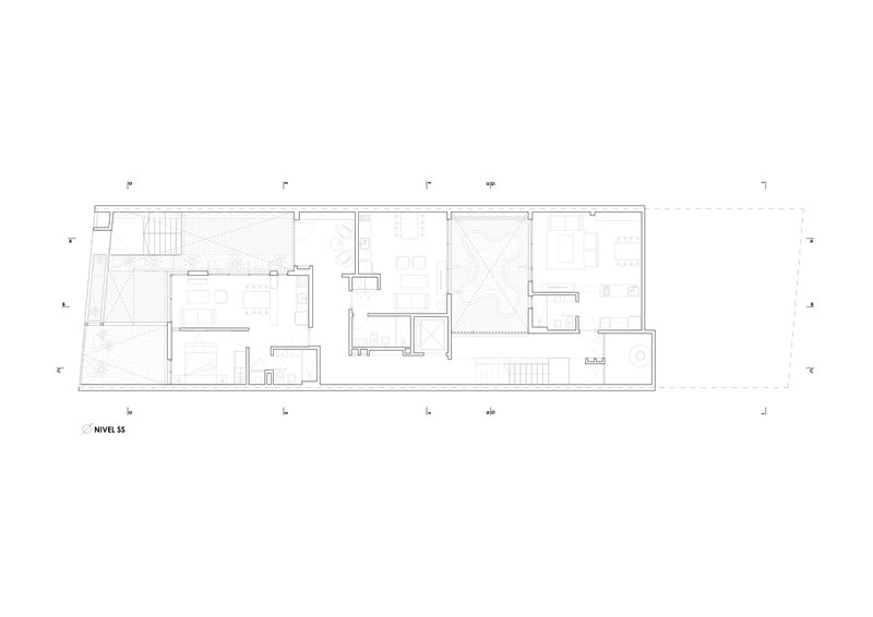
Nestled in the low-density area of Pocitos, Montevideo, the Pagola 3023 Apartments, a collaborative design effort by Pablo Szames Arquitecto and AGVA studio, emerges as a modern reinterpretation of urban residential architecture. Spanning 529 m² and captured through the lens of Marcos Guiponi, this project unveils a unique integration of living spaces within the urban fabric, offering 15 units that include 2 studio lofts and 13 one-bedroom apartments across four levels, with an additional rooftop level featuring a solarium and barbecue areas.




Dialoguing with Urban Context
The building's design is a thoughtful response to its urban context, striking a balance between the neighboring two-level house and a ten-story building. It aims to serve as a nodal point of topological integration, enhancing the streetscape with its volumetric design and permeable façade. The architects have crafted a structure that is not only a residential space but also a piece of the urban puzzle, contributing to the architectural diversity of the Pocitos neighborhood.






A Trio of Courtyards: A Spatial Narrative
Central to the design are three courtyards: an access courtyard, a central contemplative courtyard, and a private courtyard, around which the building articulates. These voids are not mere empty spaces but are thoughtfully designed to qualify and give character to both the contained and adjacent areas, fostering a sense of community and privacy within the urban setting.




Blurring the Boundaries
The Pagola 3023 Apartments are an exploration of the threshold between the public and private realms. The entrance through a garden courtyard, situated half a level below the sidewalk, extends through open covered spaces, effectively blurring the boundary between the interior and exterior. This approach not only enhances the residents' experience but also contributes to a dynamic interaction with the urban environment.





Materiality and Light
The choice of materials—exposed concrete slabs supported by black perforated metal folding panels—plays a crucial role in shaping the building's identity. These elements are designed to permeate, filter, and modulate interior light and privacy concerning the exterior, embodying the architects' vision of a living façade controlled by its users. This material strategy not only addresses functional requirements but also adds a layer of visual intrigue to the building's exterior.


A New Urban Residential Model
The Pagola 3023 Apartments stand as a testament to innovative urban residential architecture, offering a nuanced blend of privacy, community, and interaction with the urban landscape. Through its thoughtful design and strategic use of courtyards and materials, the project sets a new benchmark for residential architecture in Montevideo, reflecting a deep understanding of the city's architectural language and the needs of its residents.











All photographs are work of Marcos Guiponi
Popular Articles
Popular articles from the community
Marvila Apartment Renovation in Lisbon: A Bright Minimalist Attic Transformation by KEMA Studio
Bright attic transformed into minimalist Lisbon apartment with skylights, sustainable materials, open plan layout, and industrial-inspired interior design elements.
Split House: A Compact Urban Home Blending Privacy, Light, and Flexible Living in Japan
Compact Japanese home featuring DOMA space, flexible café potential, passive lighting, privacy zoning, and sustainable urban living design.
20 Most Popular Commercial Architecture Projects of 2025
From sustainable market concepts to heritage factories, the commercial buildings and proposals that drew the most attention on uni.xyz this year.
Similar Reads
You might also enjoy these articles
Filtering Space: A Gradual Spatial Experience
From urban intensity to spatial calm.
The Ken Roberts Memorial Delineation Competition (Krob)
As the most senior architectural drawing competition currently in operation anywhere in the world, it draws hundreds of entries each year, awarding the very best submissions in a series of medium-based categories.
Waterfront Redevelopment and Urban Revitalization in Mumbai: Forging a New Dawn for Darukhana
A transformative waterfront redevelopment project reimagining Darukhana’s shipbreaking heritage into an inclusive urban future.
OUT-OF-MAP: A Call for Postcards on Feminist Narratives of Public Space
Rhizoma Design and Research Lab invites artists, designers, architects, researchers, and students to reflect on how feminist perspectives can reshape public space. Selected works will be exhibited in Barcelona, October 2026. Submissions open until 15 April 2026.
Explore Architecture Competitions
Discover active competitions in this discipline
The International Standard for Design Portfolios
The Global Benchmark for Architecture Dissertation Awards
The Global Benchmark for Graduation Excellence
Challenge to reimagine the Iron Throne
Comments (0)
Please login or sign up to add comments
No comments yet. Be the first to comment!