Parlow Residence: A Stunning Blend of Architecture and Landscape Design by AnnaBau
How did AnnaBau achieve the perfect harmony between architecture and landscape in the Parlow Residence?

In the heart of a quaint village lies a remarkable architectural gem known as House Parlow. Designed by the esteemed AnnaBau Architektur und Landschaft, the house sits on a rectangular plot opposite the village church, with a sloping terrain that offers breathtaking views of the surrounding landscape.
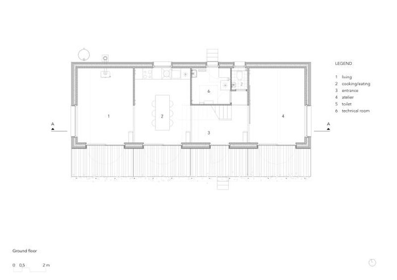
What sets House Parlow apart is its small footprint. With a width of only 5 meters and a length of 15 meters, the architects were able to preserve ample open space. The house's shed roof is aligned parallel to the topography, creating a unique blend of landscape and architecture.
The interior of House Parlow is a masterclass in flexible design. The ground floor features four plateaus cascading down, with cross-laminated timber platforms arranged at varying heights, connected by stairs with different inclinations. This layout allows for numerous open visual relationships, resulting in a performative interior development.
The cross-laminated timber elements used in House Parlow's walls and rising structural elements are all visible, adding to the house's natural and organic feel. The exterior walls are insulated with cellulose fiber and covered with rough-cut spruce planks, creating a distinct red hue that contributes to the house's unique character.
Sustainability was at the forefront of the design for House Parlow, with a green roof featuring a retention layer that stores rainwater and releases it over time to the plants. The chosen wood building materials and energy concept, including an air heat pump and wood stove, reduce energy consumption, while underfloor heating and intermediate spaces promote warm air flow.
House Parlow's large glazed wall openings blur the line between interior and exterior spaces, with a terrace on the south side framed by hardy kiwi plants that provide shade during the summer months. The house's materials are intentionally raw and unpolished, showcasing the natural beauty of the building materials.
In summary, House Parlow is a masterful blend of architecture and landscape design, showcasing the talents of AnnaBau Architektur und Landschaft. With its sustainable features and flexible interior, House Parlow is a shining example of how buildings can harmoniously coexist with nature.



























Architects: ANNABAU Architektur and Landschaft GmbH
Area: 166 m²
Year: 2022
Photographs: Hanns Joosten
Wood Construction: Zimmerei David Krebs
Facade Builder: Zimmerei David Krebs
Heating And Plumbing: Bau Casekow
City: Friedrichswalde
Country: Germany
Popular Articles
Popular articles from the community
Filtering Space: A Gradual Spatial Experience
From urban intensity to spatial calm.
Alton Cliff House: A Harmonious Retreat by f2a Architecture in Lake Country, Canada
Alton Cliff House blends corten steel, prefabrication, and sustainable design, creating a luxurious, energy-efficient retreat perched on Canadian cliffs.
Magic Box Office Barcelona Innovative Sustainable Workplace Design
Innovative sustainable office design featuring triangular form, ceramic façade, flexible interiors, natural light optimization, and creative workspace for modern work culture.
TGK Nirasaki Plant: A Smart Factory Blending Technology, Landscape, and Wellness
Smart factory in Japan blending IoT manufacturing, scenic trail design, natural ventilation, and landscape integration to enhance user experience and sustainability.
Similar Reads
You might also enjoy these articles
Rede Arquitetos Builds an Open-Air School in Fortaleza That Doubles as a Neighborhood Living Room
Educar II SESC-CE folds sports, dance, and community gathering into a courtyard campus wrapped in mesh and tropical color.
NZ10 Apartment by auba studio: Adaptive Reuse in Palma de Mallorca
Adaptive reuse apartment transforms bakery into light-filled home with patios, privacy layers, and wood interiors enhancing urban living experience.
TGK Nirasaki Plant: A Smart Factory Blending Technology, Landscape, and Wellness
Smart factory in Japan blending IoT manufacturing, scenic trail design, natural ventilation, and landscape integration to enhance user experience and sustainability.
House in Macieira by Nelson Resende Arquitecto: A Sensitive Transformation Rooted in Context and Materiality
Adaptive reuse house blending wood, glass, and landscape, transforming traditional Portuguese architecture into a warm, open, contemporary living environment.
Explore Architecture Competitions
Discover active competitions in this discipline
The International Standard for Design Portfolios
The Global Benchmark for Architecture Dissertation Awards
The Global Benchmark for Graduation Excellence
Challenge to reimagine the Iron Throne
Comments (0)
Please login or sign up to add comments
No comments yet. Be the first to comment!