Paris Mixed-Use Block: Three Studios, One ZAC
La Architectures, Atelier Régis Roudil and Nicolas Hugoo built a 13th-arrondissement block with a media library, 75 family flats and student housing.
The southern edge of Paris is in the middle of a slow-motion experiment that almost no one outside the city is paying attention to. Around the boulevards périphériques, the post-war social housing towers from the 1960s and 1970s are being thinned, repaired, and joined by new buildings that try to make a real neighbourhood out of what used to be an isolated estate. The Paul-Bourget ZAC in the 13th arrondissement is one of the more ambitious of these projects, and a recent set of completions inside it brings together three studios on a single block: La Architectures, Atelier Régis Roudil Architectes, and Nicolas Hugoo Architecture.
Together they have delivered a media library, 75 family flats, 70 student studios, and 36 social housing units across an interlocking set of buildings completed in 2025. This is what mixed-use urban renewal actually looks like when it is taken seriously. Not a single tower with retail at the bottom, but several distinct buildings, by different architects, with overlapping programmes and a shared ground floor.
A Block, Not a Tower



The first thing to notice is that the project is not one building. It is a piece of city. Looking at it from the air or from the surrounding streets, you can read a deliberate strategy: several volumes of different heights and material treatments arranged around a central park, with the existing 1960s towers visible behind them as the historical backdrop. The new buildings do not pretend the towers are not there. They acknowledge them, sit alongside them, and try to do the things the towers were not designed to do.
This kind of urban thinking is rare in any city's recent housing stock. Most large social housing projects of the last twenty years have been single objects, often by a single studio, with predictable results. The Paul-Bourget block does the opposite. By splitting the work between three studios and giving each a different programme to design, it produces architectural variety inside the same neighbourhood.
The Media Library and the Family Flats



La Architectures handled the media library and a 75-unit family-flat block. The library is the public face of the project, with a perforated metal screen wrapping its main volume and a children's section that is one of the warmest interiors in the photographs. Timber bookshelves, a gabled reading alcove, a perforated acoustic ceiling, and a counter that doubles as bench seating give it the mood of a living room rather than an institution.
Above and around the library, the family flats sit in a mid-rise block clad in concrete and pale stone. The interiors are restrained: timber-framed corner windows, generous balconies, and views over the surrounding park and the Paris skyline. These are the kind of apartments that would never be built privately at this price point, which is exactly why public housing projects matter.

The Concrete Frame as Identity



The most visually striking of the three buildings is the social housing block by Nicolas Hugoo Architecture. It uses a deep exposed concrete frame as both structure and facade, with timber-clad bays and screens infilling the openings between the columns. The columns are round, not rectangular, which gives the whole building a slightly classical reading without leaning into nostalgia.
This is the kind of facade that wins arguments about what social housing should look like. The structure is honest and visible. The materials are durable and inexpensive. The proportions are generous. The result is a building that does not need decoration to feel substantial. From the park, it reads as a piece of contemporary urban architecture that takes itself seriously.

Concrete and Timber at Close Range



Up close, the project rewards inspection. The cantilevered concrete slabs are crisp and lightly textured. The round columns meet the slabs without unnecessary bracket work. The timber screens are vertical and tightly spaced, providing both shade and a sense of material warmth against the cool concrete grid. The transitions between the new building and the planted ground level are handled with care, especially the small loggias and benches built into the base of the columns.
This is what a good concrete and timber building looks like in 2025. It is not minimal in an abstract way. The materials are doing real work, and the joinery is detailed enough that you can see how the building is put together without anyone having to explain it.

The Park as the Real Project


Everything in this neighbourhood is organised around the central park. The new buildings face it. The existing towers face it. The trees are mature, planted in advance of the new construction. From inside the apartments and the library, the park is the dominant view, and the building elevations facing it are the most carefully designed.
This is the right way to handle a renewal project. The landscape is the public good, and the architecture is arranged so that as many people as possible benefit from it. Most large urban projects pay lip service to this idea and then build right up to the property line. Paul-Bourget makes the park real.
The Student Residence



Atelier Régis Roudil Architectes designed the student residence: 70 studios above the media library, with a beige facade of repeating window bays and a quiet inner courtyard. The student building is the most compact and the most disciplined of the three. It uses a more orthodox grid of openings and a softer colour palette to differentiate itself from the more sculptural concrete block next door.
Student housing is the easiest of the three programmes to do badly and one of the harder ones to do well. The constraints are tight: small rooms, shared kitchens, low budgets, durability requirements that make most material choices feel institutional. The Paul-Bourget studios sidestep this by giving each room a real window, a small balcony view, and a generous communal lounge with timber-framed windows opening onto a planted terrace.

Inside the Student Studios


The studios themselves are small but well-handled. Each has a built-in timber storage unit, a compact kitchen, a single bed, and a window that opens onto the courtyard or the surrounding street. The light is generous for a student room, and the material palette of timber, white walls, and the soft pink rubber floor avoids the usual grey-and-beige cliche of subsidised housing.
Looking at these images alongside the family flats and the social housing, you can see that the architects have applied the same ambition to every part of the brief. The rich and the poor, the old and the young, the temporary residents and the permanent ones all live in buildings that try to do something good with the constraints they were given. That should not be unusual, but it is.
Why This Project Matters
Most cities are still building social housing the way they did fifty years ago. Single buildings, single programmes, single architects, with the kind of repetitive economy that produces familiar failures. The Paul-Bourget block at the southern edge of Paris is a quiet argument that there is a better way: split the brief, hire several studios, mix the programmes on a single block, give the public realm priority over individual buildings, and make sure the materials and the proportions are good enough to last several decades.
La Architectures, Atelier Régis Roudil Architectes, and Nicolas Hugoo Architecture have produced a piece of city that anyone working on urban renewal should look at carefully. The photographs by Charly Broyez, 11H45, Pierre-Romain Guedj, and the ZAC Paul Bourget team show what the brief looks like when it is taken seriously.
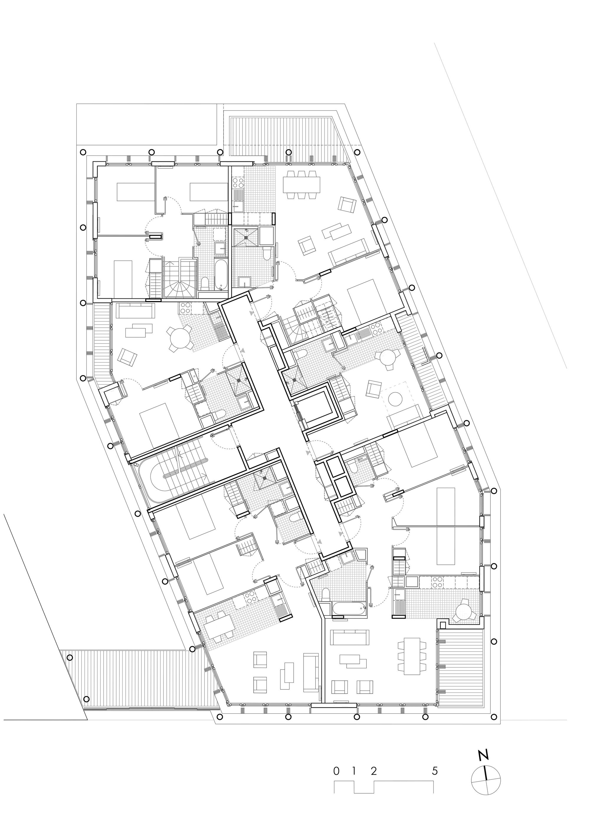
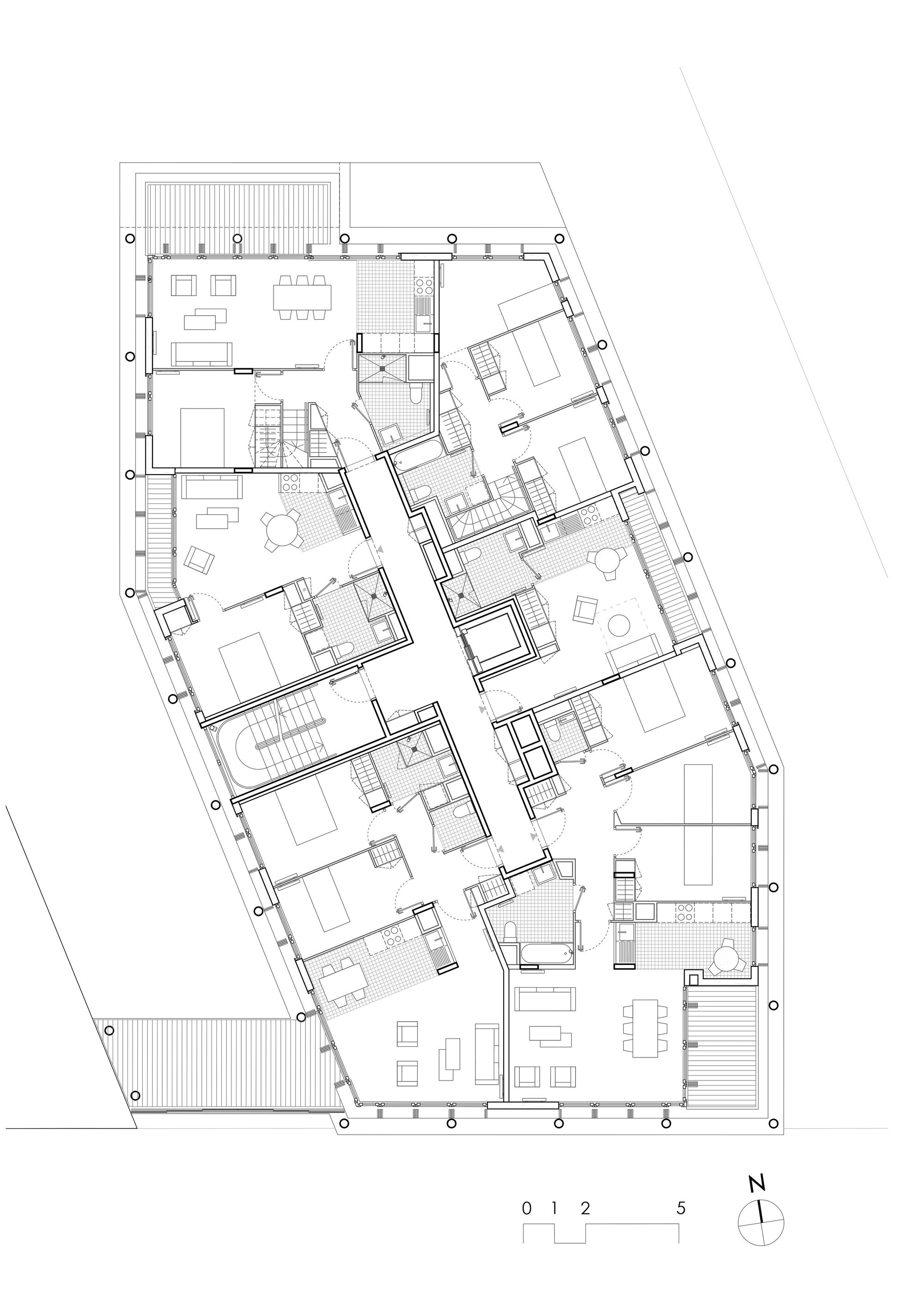
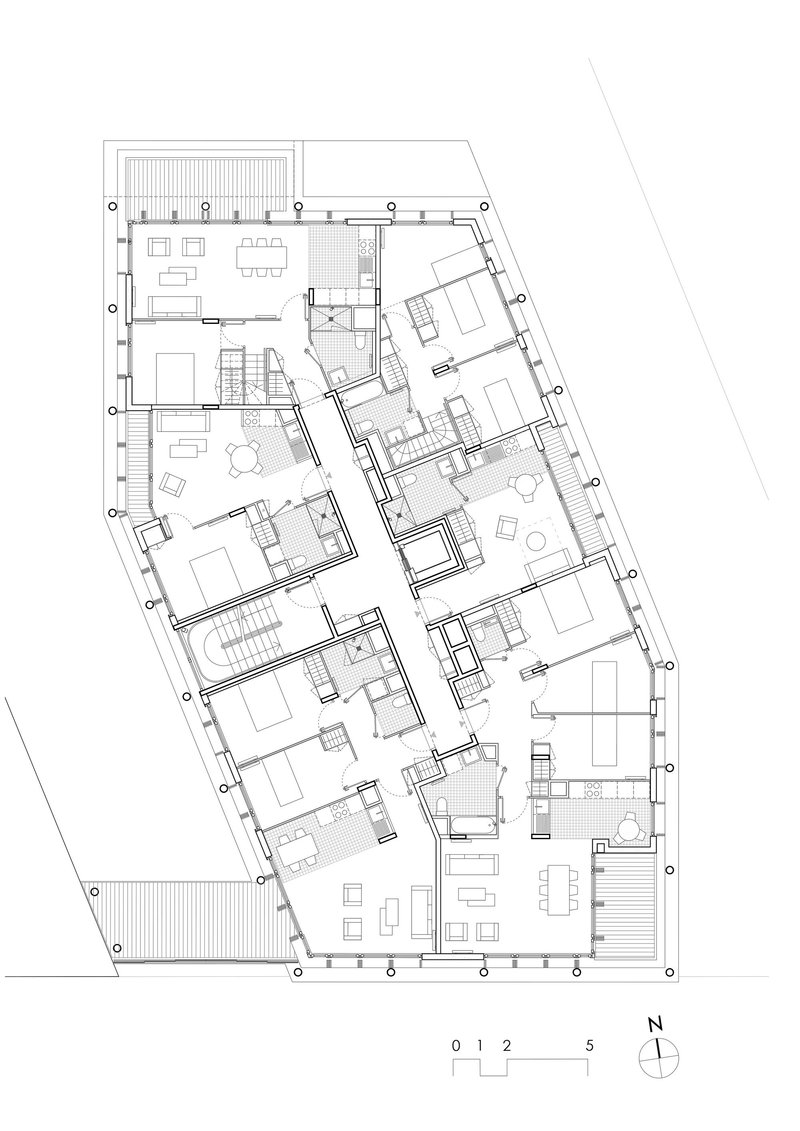
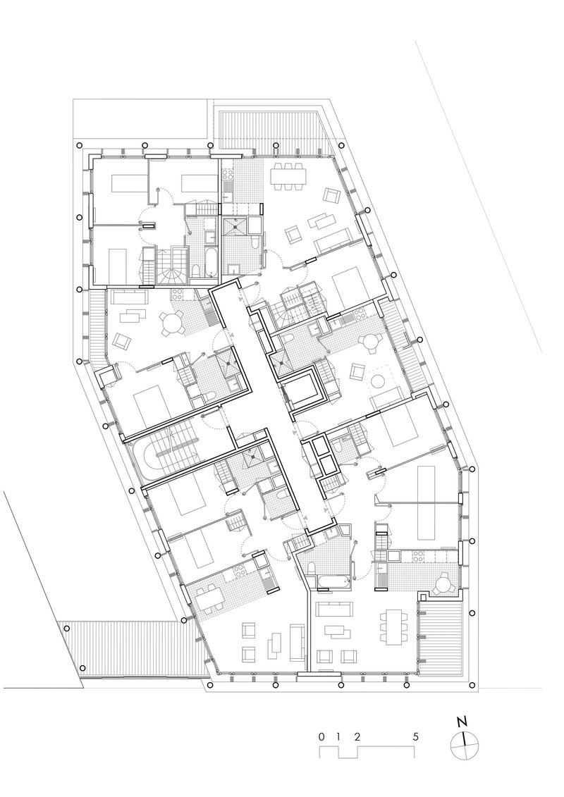
Drawings and Site Context



The site drawings confirm the urban strategy. The new buildings slot into the ZAC Paul-Bourget masterplan as two distinct lots with the Jardin Laure Albin Guillot running between them. The programme axonometric is a useful piece of diagrammatic shorthand: the housing sits above, the student residence folds in alongside, and the cultural facility (the media library) threads through the ground floor, each marked in a different colour to show how the stacked programmes interlock.



The family-flat plans show how the apartments are organised around a central core, with generous balconies on the outward-facing sides and every unit given at least one corner window. The ground-floor plan makes the lobby and the shared circulation legible without cluttering the page.


The section and facade detail confirm what the photographs suggest. The concrete frame is the primary structure, the timber boarding is the secondary skin, and the balcony slabs cantilever out between them. The detail drawing shows how thin the edges really are and how carefully the shutter boxes are integrated into the facade rhythm.





The Nicolas Hugoo Architecture plans show the social housing block floor by floor. Each level rotates the unit mix slightly as the building steps back toward the top, and the ground floor holds the entrance lobby and the shared services. Read together, the plans make the building's internal logic clear without requiring a guided tour.
About the Studios
Share Your Own Work on uni.xyz
If you are working on social housing, urban renewal, or mixed-use civic projects, uni.xyz is a place to publish your work, find collaborators, and enter design competitions.
Project credits: Neighborhood at Paul-Bourget by La Architectures (media library and 75 family flats), Atelier Régis Roudil Architectes (student residence), and Nicolas Hugoo Architecture (36 social housing units). Paris, France. 2,314 m². Completed 2025. Structure: EVP. Environment: EODD. Acoustics: CDB. Landscape: Nebbia. Photographs: Pierre-Romain Guedj, 11H45, ZAC Paul Bourget, Charly Broyez.
Popular Articles
Popular articles from the community
Free Architecture Competitions You Can Enter Right Now
No entry fees, real prizes. Here are the best free architecture competitions open for submissions in 2026.
Split House: A Compact Urban Home Blending Privacy, Light, and Flexible Living in Japan
Compact Japanese home featuring DOMA space, flexible café potential, passive lighting, privacy zoning, and sustainable urban living design.
Marvila Apartment Renovation in Lisbon: A Bright Minimalist Attic Transformation by KEMA Studio
Bright attic transformed into minimalist Lisbon apartment with skylights, sustainable materials, open plan layout, and industrial-inspired interior design elements.
Similar Reads
You might also enjoy these articles
STEM School Mechelen by LAVA Architecten: A Future-Ready Educational Architecture in Belgium
Flexible, sustainable STEM school in Mechelen featuring modular classrooms, acoustic innovation, and energy-efficient design supporting future-focused collaborative learning environments.
Marvila Apartment Renovation in Lisbon: A Bright Minimalist Attic Transformation by KEMA Studio
Bright attic transformed into minimalist Lisbon apartment with skylights, sustainable materials, open plan layout, and industrial-inspired interior design elements.
20 Most Popular Commercial Architecture Projects of 2025
From sustainable market concepts to heritage factories, the commercial buildings and proposals that drew the most attention on uni.xyz this year.
Magic Box Office Barcelona Innovative Sustainable Workplace Design
Innovative sustainable office design featuring triangular form, ceramic façade, flexible interiors, natural light optimization, and creative workspace for modern work culture.
Explore Architecture Competitions
Discover active competitions in this discipline
The International Standard for Design Portfolios
The Global Benchmark for Architecture Dissertation Awards
The Global Benchmark for Graduation Excellence
Challenge to design locus for the upliftment of human rights
Comments (0)
Please login or sign up to add comments
No comments yet. Be the first to comment!