Pioneering Urban Architecture: Sustainable Skyscraper Design at Foshan Entrepreneur Building
Explore the Foshan Entrepreneur Building by CCDI, a sustainable skyscraper design that integrates innovative architecture with environmental sustainability in China.
The Foshan Entrepreneur Building, a landmark project by CCDI, stands as a beacon of sustainable skyscraper design in the rapidly evolving urban landscape of Foshan, China. This 246-meter tall structure not only redefines the city's skyline but also sets new standards for environmentally responsible high-rise buildings.

Architectural Vision and Design Strategy
Integrating Building with Urban Fabric
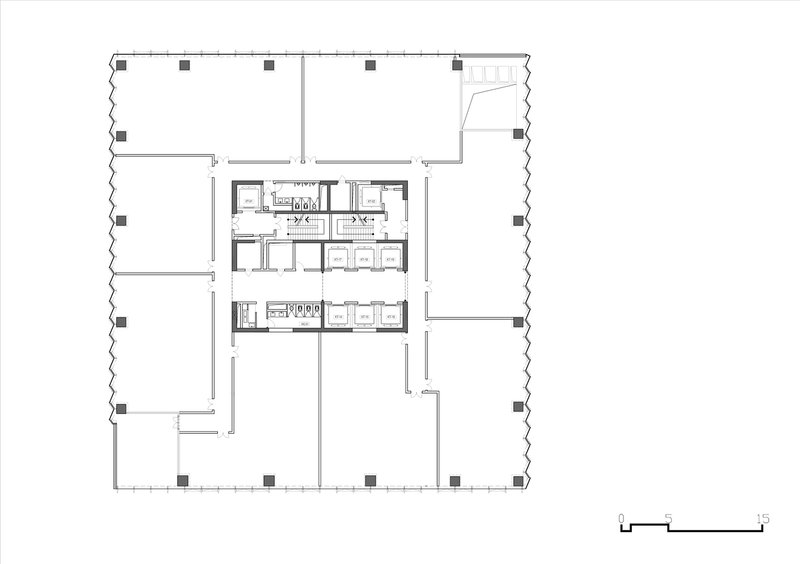
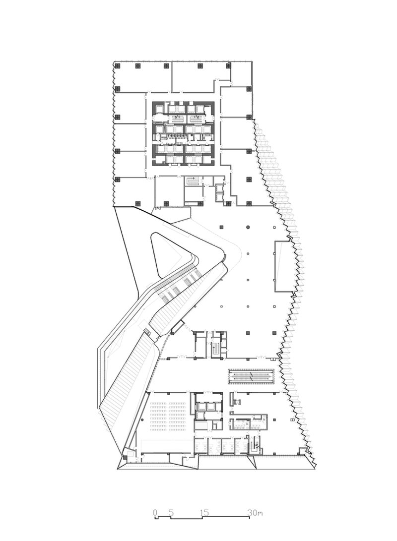
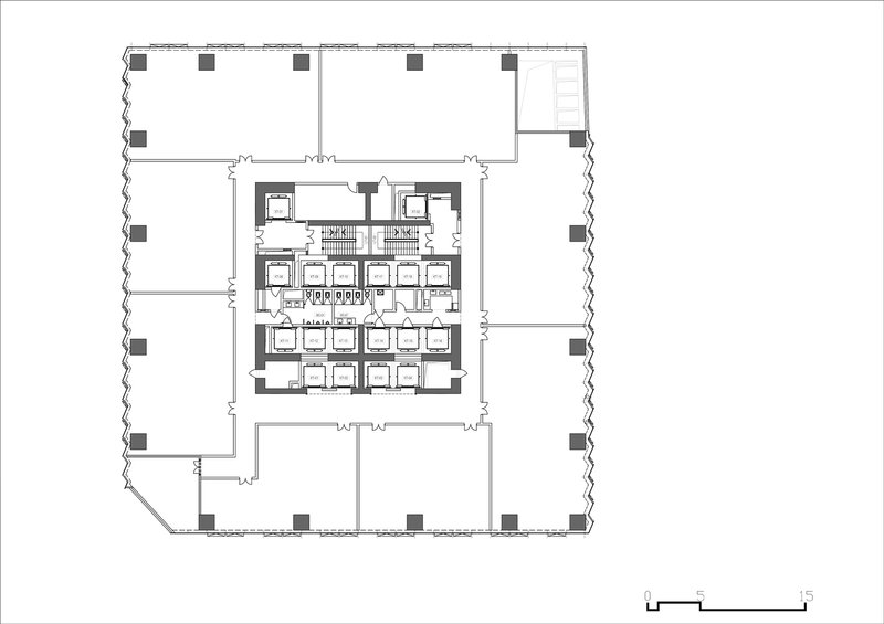
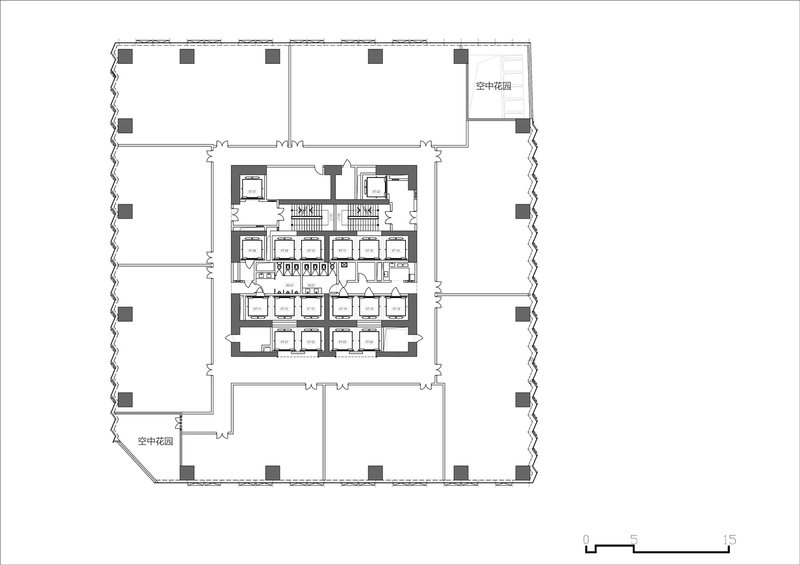
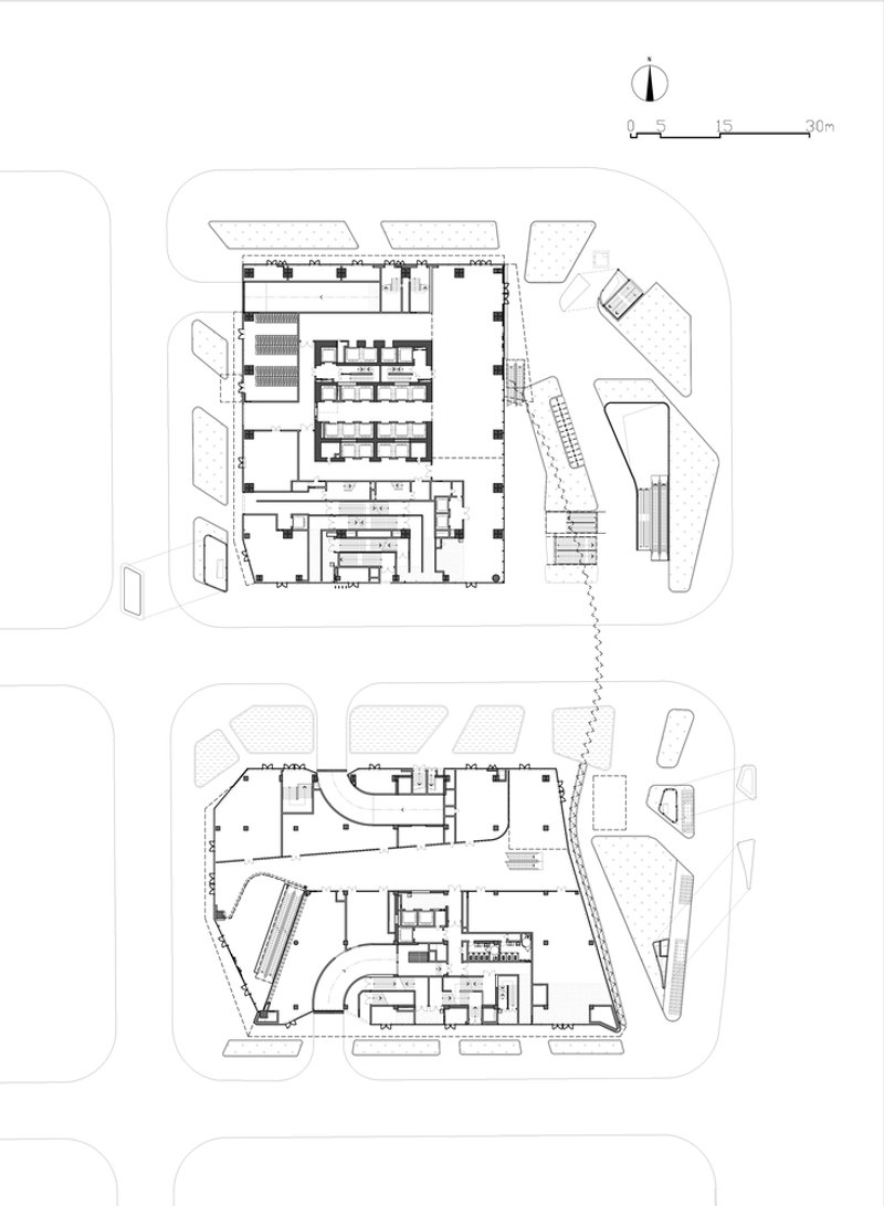
Situated at the end of the urban axis of Foshan New City, the Foshan Entrepreneur Building masterfully integrates both plots it occupies, thanks to a thoughtful design that includes a podium spanning the plots. This approach not only enhances the building’s physical presence but also fosters a better connection with the surrounding cityscape, making it a pivotal element in the urban environment.


Enhancing Public Spaces and Accessibility
The design incorporates extensive public spaces that promote accessibility and community interaction. The ground floor features a transparent facade and a café that transforms the once exclusive business hotel into a welcoming community hub. This level of openness continues with the integration of elevated pedestrian pathways that connect different parts of the building and extend to nearby urban areas.

Sustainable Features and Environmental Considerations
Climate-Responsive Design
Understanding the local climate was crucial in the architectural planning. The building employs passive solar control techniques with strategically placed eaves and fins to minimize heat gain during the hot summers of Qingpu. The orientation and external configuration of the building also contribute to energy efficiency, reducing the need for artificial cooling.


Green Building Techniques
The Foshan Entrepreneur Building goes beyond traditional sustainability measures by incorporating green roofs and a sustainable urban drainage system. These features not only aid in reducing the urban heat island effect but also enhance biodiversity and manage rainwater more effectively.


Structural Innovation and Material Usage
Prefabrication and Construction Efficiency
A significant aspect of the project is its commitment to construction efficiency through prefabrication. Approximately 40% of the building components were prefabricated, reducing construction waste, cost, and time. This method also allowed for a higher quality of finish and alignment with the building's complex geometrical design.


Innovative Curtain Wall System
The skyscraper's facade is a testament to innovative engineering, featuring a combination of glass and aluminum that simulates a curved surface. This design not only enhances the building’s aesthetic but also contributes to its sustainability goals by optimizing natural light and reducing thermal gain.


Community Impact and Future Outlook
A Catalyst for Urban Transformation
The Foshan Entrepreneur Building is more than just an office tower; it's a catalyst for urban transformation. By blending sophisticated architectural design with public amenities, it sets a precedent for future developments in Foshan and other cities worldwide.


Adapting to Evolving Urban Needs
With its flexible design and emphasis on public spaces, the building is poised to adapt to the changing needs of its urban environment. It embodies the principles of sustainable development and community-focused design, ensuring its relevance and functionality for years to come.


The Foshan Entrepreneur Building by CCDI is a pioneering example of sustainable skyscraper design, combining innovative architectural techniques with stringent environmental considerations. It stands as a model for future high-rise developments, proving that skyscrapers can be both aesthetically pleasing and environmentally responsible.

All photographs are work of Fang Jian
Popular Articles
Popular articles from the community
Gads Hill Early Learning Center by JGMA: Adaptive Reuse Shaping Community-Focused Educational Architecture
Adaptive reuse transforms fragmented structure into vibrant early learning center with playful façade, natural light, and community-focused sustainable design.
The Ken Roberts Memorial Delineation Competition (Krob)
As the most senior architectural drawing competition currently in operation anywhere in the world, it draws hundreds of entries each year, awarding the very best submissions in a series of medium-based categories.
Atelier Macri Concept Store Interior Design by CASE-REAL
Atelier Macri store features a "ko" counter, walnut wood details, cork displays, blending retail, gallery, and seamless customer experiences.
Split House: A Compact Urban Home Blending Privacy, Light, and Flexible Living in Japan
Compact Japanese home featuring DOMA space, flexible café potential, passive lighting, privacy zoning, and sustainable urban living design.
Similar Reads
You might also enjoy these articles
Free Architecture Competitions You Can Enter Right Now
No entry fees, real prizes. Here are the best free architecture competitions open for submissions in 2026.
Top 15 Architecture Competitions to Enter in 2026
From student-friendly idea competitions to prestigious international awards, here are the best architecture competitions open for entries in 2026. Updated regularly.
DIY & Engineering in Computational Design : Enter the BeeGraphy Design Awards
Showcase Your Creativity with Computational Design and Open Source Projects

Innovative Design Solutions: Award-Winning Projects from Recent Architecture Competitions
Exploring award-winning architectural projects shaping the future of design, sustainability, and community.
Explore Architecture Competitions
Discover active competitions in this discipline
The International Standard for Design Portfolios
The Global Benchmark for Architecture Dissertation Awards
The Global Benchmark for Graduation Excellence
Challenge to reimagine the Iron Throne
Comments (0)
Please login or sign up to add comments
No comments yet. Be the first to comment!