Plantagegatan Apartment Renovation: Small Apartment Renovation Design by mnmt in Gothenburg
Adaptive 78 square meter Gothenburg apartment by mnmt repositions rooms, unifies with terracotta, and layers flexible low-tech mobile elements throughout.
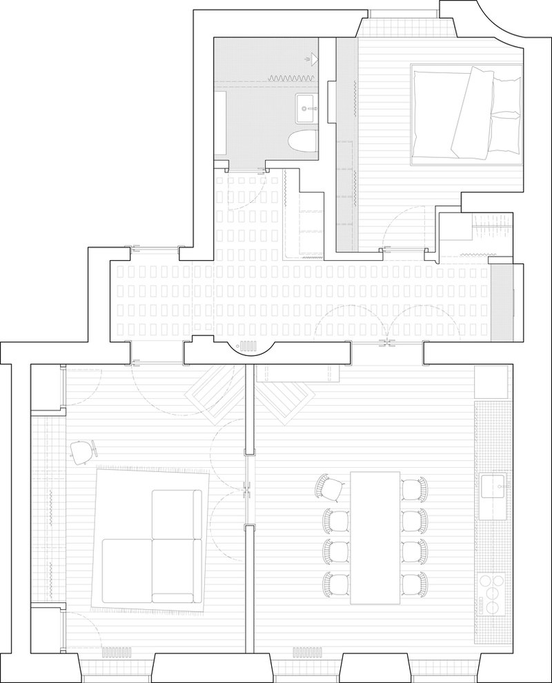
The Plantagegatan Apartment Renovation by mnmt demonstrates how small apartment renovation design can transform a compact 78 square meter dwelling in a historic Gothenburg building into an adaptable, materially rich home that honors its past while enabling future change. Rather than freeze the apartment in a nostalgic restoration, the architects pursued a strategic reorganization and a tactile yet minimal material framework that balances permanence with improvisation.



Context And Brief
Located in Olivedal within Gothenburg’s early twentieth century urban fabric, the apartment inherited cellular proportions and street oriented hierarchies that no longer matched contemporary patterns of living, working, and gathering. The clients sought more light, a better relationship between kitchen and social space, acoustic privacy for sleep, and a flexible backdrop that could evolve without major reconstruction. mnmt responded with targeted spatial moves and an elemental material palette capable of aging gracefully.



Spatial Reorganization For Contemporary Life
The renovation’s primary intervention relocated the bedroom to the quieter courtyard side of the plan, carving out a private retreat buffered from street noise. The former front living room was reimagined as a bright, open kitchen connected directly to the adjacent living area, establishing a generous social core at the heart of the small footprint. This re-zoning aligns daily patterns—cooking, eating, gathering—with the apartment’s best daylight and volume, while pushing sleep to the calmest edge.




Continuity Through Material Grounding
A continuous field of terracotta floor tiles flows through the apartment and becomes the unifying datum that visually and physically links newly connected rooms. Warm, durable, and subtly reflective, the tile surface anchors the renovated plan and mediates between historic shell and contemporary insertions. Because the floor reads uninterrupted, spatial boundaries recede and the 78 square meters feel more expansive.




Fixed Architectural Backdrop
Durable, quietly expressive fixed elements form the apartment’s enduring architectural backbone. Clay plastered walls add depth, regulate humidity, and soften light. Custom wood joinery defines storage, thresholds, and integrated seating without crowding the small rooms. Select tiled surfaces provide functional durability in wet and work areas while maintaining visual calm. Together these fixed interventions supply a composed background against which daily life can shift.



Mobile Elements And Low Tech Flexibility
Against the calm fixed layer, mnmt introduced an ecosystem of mobile components that support reconfiguration. Steel framed carts topped with Alpes Inox and fitted with plastic crate storage can roll between kitchen, dining, and work zones. Lightweight wooden carts extend surface or seating as needed. Curtain tracks enable soft partitions, converting open space into secluded work nooks or guest sleeping areas without building walls. These low tech strategies encourage residents to participate in shaping the apartment over time.


Preserving Character While Updating Use
Historic fragments—door casings, ceiling lines, window proportions—were selectively retained where they could coexist with the new plan. Their presence anchors the renovation in the building’s domestic history while the new interventions reinterpret rather than imitate. The result is a dialogue: past craft articulations meet present day living needs in a balanced composition that feels neither overly restored nor aggressively new.


Tactility, Color, And Light
Material tactility drives spatial perception. Terracotta’s earthy tone pairs with matte clay plaster to warm light entering from both street and courtyard. Fine grained wood joinery introduces touchable surfaces at the scale of the hand. Ceramic tile accents from CE.SI. and Fornace Brioni punctuate service areas with subtle color shifts that help orientation. Textiles by Kvadrat soften acoustics and add seasonal adaptability. The palette remains restrained so that changes in furnishing or use will not visually overload the small interior.


Adaptability Over Time
The renovation treats the apartment as a platform for evolving life patterns. Mobile storage allows seasonal rotation of objects. Open shelving supports display or work. Curtains define temporary rooms for solitude, childcare, remote work, or social events. Because the durable fixed layer is materially consistent, modifications to loose elements can occur without undermining architectural coherence. Adaptability becomes embedded value in small apartment renovation design.

Living Framework Rather Than Finished Object
mnmt’s approach favors an inhabited framework over a finished tableau. The apartment invites users to rearrange, layer, and edit; its materials are chosen to patina; its spatial logic allows reversal or expansion. The project demonstrates that meaningful renovation in historically scaled European apartments need not rely on high tech gadgets or expensive millwork. Instead, clear zoning, durable surfaces, and moveable low tech components can unlock lasting flexibility within modest area.

Plantagegatan Apartment Renovation stands as a model of small apartment renovation design that respects historic context, maximizes limited space, and empowers residents to co author their living environment. By relocating key functions, unifying the interior with terracotta flooring, establishing a calm material backdrop, and layering mobile, reconfigurable elements, mnmt creates a home that is grounded, open ended, and ready to evolve across years of changing life.

All the photographs are works of Roger Sandberg
Popular Articles
Popular articles from the community
Split House: A Compact Urban Home Blending Privacy, Light, and Flexible Living in Japan
Compact Japanese home featuring DOMA space, flexible café potential, passive lighting, privacy zoning, and sustainable urban living design.
Alton Cliff House: A Harmonious Retreat by f2a Architecture in Lake Country, Canada
Alton Cliff House blends corten steel, prefabrication, and sustainable design, creating a luxurious, energy-efficient retreat perched on Canadian cliffs.
Marvila Apartment Renovation in Lisbon: A Bright Minimalist Attic Transformation by KEMA Studio
Bright attic transformed into minimalist Lisbon apartment with skylights, sustainable materials, open plan layout, and industrial-inspired interior design elements.
TGK Nirasaki Plant: A Smart Factory Blending Technology, Landscape, and Wellness
Smart factory in Japan blending IoT manufacturing, scenic trail design, natural ventilation, and landscape integration to enhance user experience and sustainability.
Similar Reads
You might also enjoy these articles
Bamboo Housing Challenge 2026: Design Affordable, Sustainable Homes Using Bamboo
An international design competition by Bamboo U and IBUKU inviting architects and designers to reimagine affordable housing using bamboo — with the winning design built full-scale in Bali.
Computational Design & Education: Beegraphy Design Awards Introduces 7th Category (Featuring Jiyun's Innovative Approach)
Dive into Beegraphy’s 7th Design Awards category, where computational design meets education to create immersive, interactive learning tools, inspired by Jiyun’s work.
From Parametric Lighting to Urban Furniture: Join the 2nd Workshop in Beegraphy’s Computational Design Series
Dive into Cutting-Edge Design Techniques and Practical Applications with Industry Experts
Explore Architecture Competitions
Discover active competitions in this discipline
The International Standard for Design Portfolios
The Global Benchmark for Architecture Dissertation Awards
The Global Benchmark for Graduation Excellence
Challenge to reimagine the Iron Throne
Comments (0)
Please login or sign up to add comments
No comments yet. Be the first to comment!