PLP City Range: Redefining Mixed-Use Architecture in Bangkok with a Golf-Centric Urban Experience
PLP City Range blends golf, lifestyle, and living into an iconic example of mixed-use architecture in the heart of Bangkok.
A Visionary Approach to Mixed-Use Architecture in Bangkok
Located in the heart of Bangkok’s upscale Thonglor district, PLP City Range by ASWA is a compelling new example of mixed-use architecture in Bangkok. Designed to blend leisure, lifestyle, and residential functions within a singularly iconic structure, the project revolves around a state-of-the-art indoor golf simulation center. With a distinctive facade of concave and convex precast concrete panels, the architecture captures the rhythmic elegance of a golf swing, forming a dynamic canvas of shade and light that changes with the day’s cycle.



This innovative form not only delivers strong visual identity but also addresses the building’s functional needs, especially controlling light for optimal golf simulator performance. Accents of steel and semi-reflective materials emphasize the sleek, contemporary aesthetic while evoking the form of a golf driver—tying the building’s skin to its core purpose.



Multi-Level Programming That Balances Function and Form
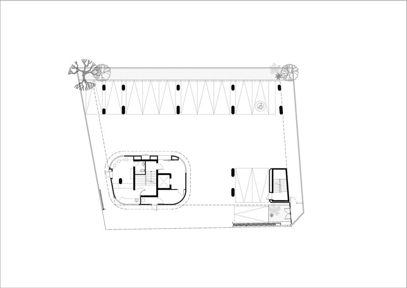
The 2,750-square-meter building is programmed across six levels, each floor carefully designated to serve a distinct function. The ground level welcomes visitors with a spacious main lobby, provisions for future retail zones, and convenient on-site parking. Above, the second floor is dedicated to a youth-focused golf simulation area. Designed to support young athletes, this space includes a cozy canteen that encourages social interaction and mid-session relaxation.




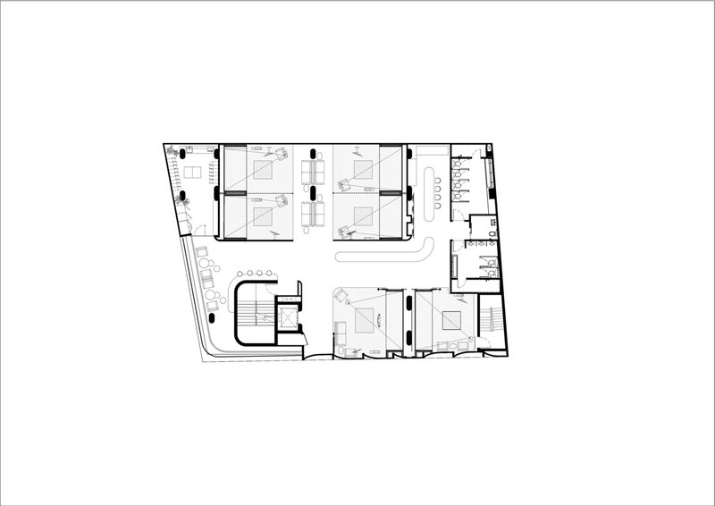
As the vertical journey continues, the third floor unveils a more private and exclusive atmosphere. VIP golf simulation bays, a luxe bar, and lounge-style VIP rooms provide a premium experience tailored for enthusiasts seeking comfort and seclusion.




An Urban Oasis for Recreation and Wellness
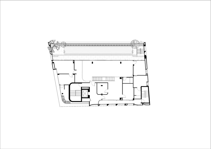
On the fourth floor, the architectural strategy becomes more porous. A semi-outdoor chipping and putting green along with a multi-sport court offers guests an invigorating experience that embraces natural ventilation and open-air interaction. The design facilitates active lifestyle habits while maintaining climatic comfort, making the fourth level a recreational oasis in the dense urban fabric of Bangkok.



The fifth and sixth floors are prepared as double-volume bare-shell spaces reserved for private residences. Framed by sweeping views of the Thonglor skyline, these upper levels symbolize the intersection of leisure and living, offering future owners direct access to world-class recreational facilities within the same building.


Integrating Light and Technology with Architectural Precision
The use of concave and convex precast concrete panels is more than a stylistic gesture. It strategically filters natural light, crucial to maintaining the performance standards required by high-end golf simulation equipment. Additionally, a transparent curved glass corner acts as a light-well and viewing portal, balancing controlled interior lighting with curated glimpses of the surrounding cityscape.


This calculated manipulation of materials and form underscores ASWA’s commitment to functionality-driven design, where every architectural decision serves both aesthetic expression and technical precision.



A New Standard for Recreational Mixed-Use Design
PLP City Range is more than a building—it’s a blueprint for the future of mixed-use architecture in Bangkok. By integrating recreation, wellness, community, and private living into a compact vertical format, the project addresses the evolving demands of urban life. It stands as a dynamic structure that challenges conventional typologies while offering a richly layered urban experience.




This development marks a new era for how sports, leisure, and residential spaces can harmoniously coexist under one roof. In a rapidly densifying city like Bangkok, PLP City Range presents an inspiring model for multifunctional urban design, proving that architecture can be both deeply contextual and refreshingly bold.





All Photographs are works of Soopakorn Srisakul, Phuttipan Aswakool
Popular Articles
Popular articles from the community
De la Riva Sherry Homes By Juan Vega Arquitectos
De la Riva Sherry Homes transform a historic winery into unique residences, blending industrial heritage, modern comfort, and community-focused courtyard living.
Art 1 Office Strips Athens Back to Its Bones
Neiheiser Argyros transforms a 40-year-old Athens office building into a vivid, materially rich workplace anchored by red steel, exposed concrete, and roof
KCAP and DCA Architects Build a Stepped Urban Village on Singapore's King's Dock Waterfront
A 26,000 square meter residential development in Singapore trades tower isolation for terraced courtyards and a planted promenade along the harbor.
Not All Architecture Grounds a Timber Retreat in Victoria's Coastal Bushland
Ironbark House stretches low beneath eucalyptus canopy, threading a quiet domestic life between courtyard, deck, and landscape.
Similar Reads
You might also enjoy these articles
Three Architects Stitch a Social Center into a Crumbling Galician Hamlet
In Muimenta, Spain, timber and plywood volumes graft onto granite ruins to anchor a rural revitalization effort.
IF Architecture Designs Its Own Collingwood Studio as a Textile-Wrapped Incubator for Ideas
A 90-square-metre office in Melbourne's Collingwood uses layered curtains and color to turn a compact footprint into a laboratory for design.
CTA | Creative Architects Designs Triangular Floating Shelters for Vietnam's Flood-Ravaged Communities
A timber-louvered triangular shelter rises on concrete pontoons to keep Vietnamese families safe and together when floodwaters come.
Francisca Sottomayor and Fahrenheit.Works Build a Living Kitchen Where Plants Cook Alongside People
A multispecies dining installation in Porto transforms a communal table into a working ecosystem of herbs, fire, and shared meals.
Explore Architecture Competitions
Discover active competitions in this discipline
The International Standard for Design Portfolios
The Global Benchmark for Architecture Dissertation Awards
The Global Benchmark for Graduation Excellence
Challenge to reimagine the Iron Throne
Comments (0)
Please login or sign up to add comments
No comments yet. Be the first to comment!