Pyramid-Inspired House Design: The Timeless Elegance of Pyramid Hut by IGArchitects
This article highlights a pyramid-inspired house in Okinawa, blending modern design with cultural heritage and environmental harmony.
The Pyramid Hut, designed by IGArchitects, is a striking architectural marvel located in Okinawa, Japan. Completed in 2024, this 83 m² residence reimagines traditional architectural forms through a contemporary lens. Situated on a long, sloped site surrounded by apartments and a cemetery, the Pyramid Hut embraces its unique setting with a design that is both dignified and timeless.




Harmonizing with the Environment
The Pyramid Hut was conceived to respect its environment while maintaining a distinct identity. Surrounded by a cemetery whose vegetation encroached upon the site, the boundary between the land and its surroundings blurred, giving the property an organic connection to the neighboring forest-like setting. Recognizing this, the architects eschewed the traditional Okinawan style of large openings, opting instead for a more enclosed and introspective form that honors its environment without compromising privacy.





The architects envisioned a structure with a strong, enduring presence that would be cherished long after its original purpose or ownership changed. This timeless design philosophy inspired the creation of a compact yet monumental structure shaped like a square pyramid.



The Pyramid as an Architectural Form
The pyramid form of the house is both a practical and aesthetic response to its site. Built on a gently sloping terrain, the site was organized into three distinct levels. Retaining walls formed the foundation, supporting the elevated pyramid structure. The design evokes a sense of permanence, as though the house were perched on sturdy clogs above the Ryukyu limestone. This elevated form not only enhances stability but also ensures privacy for its inhabitants.



Openings in the foundation and roof are limited, creating a serene and peaceful living space. The result is a structure that blends functionality with the timeless elegance of a ruin, reflecting the wisdom and resilience of traditional Okinawan tombs.


Interior Design and Spatial Composition
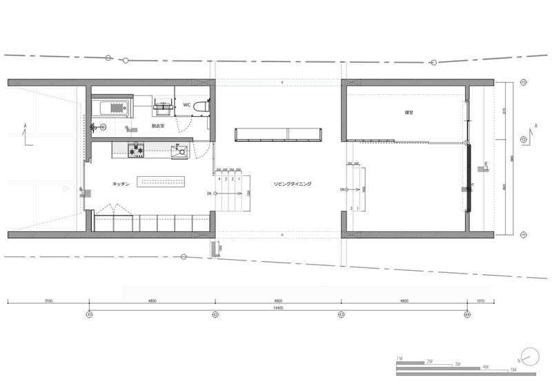
The interior of the Pyramid Hut is a study in simplicity and functionality. The house is divided into three main levels, each serving a distinct purpose. The entry level houses the bathroom and entrance, efficiently consolidating plumbing. A step down leads to the living and dining areas, along with a study space that opens up under a skylight. At the far end, the third level accommodates the bedroom and other private spaces.


Concrete walls and wooden accents create a harmonious contrast within the living spaces, evoking the warmth of natural materials against the solidity of the structure. The skylight bathes the interior in natural light, softening the starkness of the concrete and adding a sense of openness.



A Tribute to Okinawan Heritage
The design of the Pyramid Hut draws inspiration from the grandeur of traditional Okinawan tombs, which are built to endure harsh climates and serve as lasting symbols of cultural heritage. These tombs are not merely burial sites but spaces for gathering, celebration, and reverence. Similarly, the Pyramid Hut is imbued with a sense of permanence and festivity.



While the form of the building is modern, its connection to Okinawan traditions is unmistakable. The pyramid shape, dictated by environmental considerations and budget constraints, reflects the durability and grace of these ancient structures. The result is a house that resonates with the wisdom and cultural significance of its location.



Timeless Architecture for Modern Living
The Pyramid Hut by IGArchitects is more than a residence; it is a testament to the enduring power of thoughtful design. By integrating elements of traditional Okinawan architecture with modern principles, the Pyramid Hut stands as a timeless structure that harmonizes with its environment while offering a peaceful, private retreat for its inhabitants.


This project exemplifies how architecture can transcend time and purpose, creating spaces that are both functional and profoundly connected to their cultural and environmental contexts.


All Photographs are works of Ooki Jingu
Popular Articles
Popular articles from the community
Split House: A Compact Urban Home Blending Privacy, Light, and Flexible Living in Japan
Compact Japanese home featuring DOMA space, flexible café potential, passive lighting, privacy zoning, and sustainable urban living design.
Atelier Macri Concept Store Interior Design by CASE-REAL
Atelier Macri store features a "ko" counter, walnut wood details, cork displays, blending retail, gallery, and seamless customer experiences.
Free Architecture Competitions You Can Enter Right Now
No entry fees, real prizes. Here are the best free architecture competitions open for submissions in 2026.
Similar Reads
You might also enjoy these articles
The Ken Roberts Memorial Delineation Competition (Krob)
As the most senior architectural drawing competition currently in operation anywhere in the world, it draws hundreds of entries each year, awarding the very best submissions in a series of medium-based categories.
Waterfront Redevelopment and Urban Revitalization in Mumbai: Forging a New Dawn for Darukhana
A transformative waterfront redevelopment project reimagining Darukhana’s shipbreaking heritage into an inclusive urban future.
OUT-OF-MAP: A Call for Postcards on Feminist Narratives of Public Space
Rhizoma Design and Research Lab invites artists, designers, architects, researchers, and students to reflect on how feminist perspectives can reshape public space. Selected works will be exhibited in Barcelona, October 2026. Submissions open until 15 April 2026.
Documentation Work on Buddhist Wooden Temple
Architectural syncretism and cultural hybridity: A comparative study of the Buddhist temples in Chattogram Hill tracks
Explore Architecture Competitions
Discover active competitions in this discipline
The International Standard for Design Portfolios
The Global Benchmark for Architecture Dissertation Awards
The Global Benchmark for Graduation Excellence
Challenge to reimagine the Iron Throne
Comments (0)
Please login or sign up to add comments
No comments yet. Be the first to comment!