Qingshan Cultural Hall Architecture: A Harmonious Dialogue Between Tradition, Nature, and Community
This article explores the Qingshan Cultural Hall Architecture, blending tradition, nature, and modern design to create a dynamic community space.
The Qingshan Cultural Hall Architecture by MOMENTUM Architects is a visionary project that redefines the relationship between built form, nature, and community. Located in Qingshan Village, an experimental hub for rural architecture and artistic interventions in Hangzhou, China, the cultural hall stands as a testament to how architecture can foster social engagement and cultural continuity while embracing contemporary design.





With its strategic location at the southern edge of the village, the project takes advantage of mountain views to the north, seamlessly integrating into its natural surroundings. Through an innovative approach that challenges conventional formalism, the design shifts attention from architectural mass to the spaces in between, creating a fluid and interactive experience.





Architectural Concept and Spatial Organization
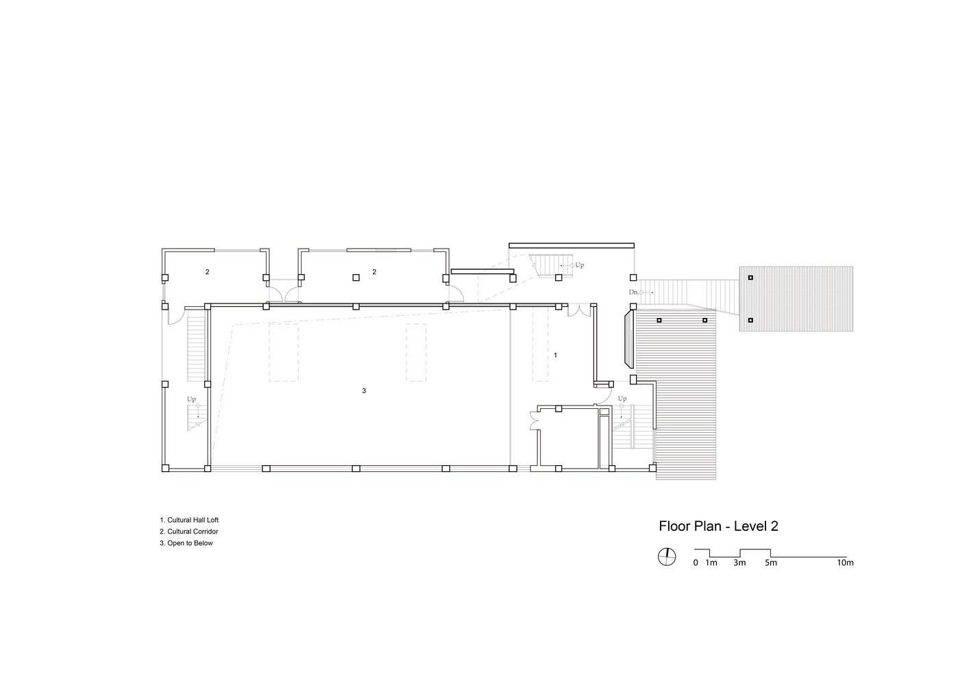
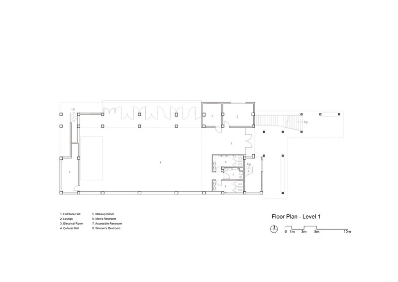
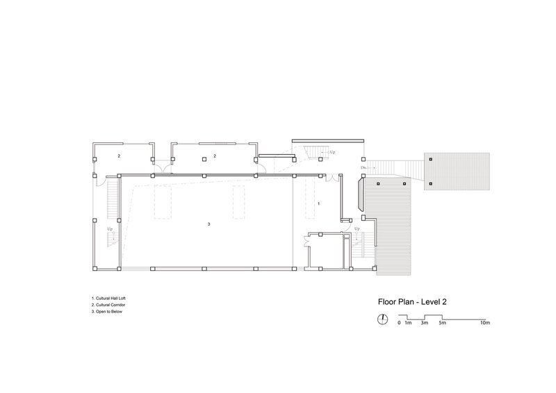
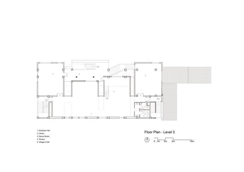
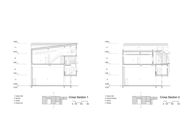
Rather than viewing architecture as a singular object, the Qingshan Cultural Hall Architecture deconstructs the notion of a monolithic structure by breaking it into interwoven and stacked volumes. This fragmented composition mirrors the rugged natural terrain, drawing inspiration from the organic forms of rocks and mountain trails. The intentional gaps between these volumes allow natural light and air to circulate freely, creating a breathable and permeable environment that enhances human interaction.






The project’s circulation strategy reinforces this concept, with a folded staircase functioning as an extension of the natural landscape. Much like a meandering mountain path, this staircase connects the public square with different levels of the cultural hall, promoting a dynamic and social spatial experience. Unlike conventional facades, which separate interior and exterior, the building blurs these boundaries, fostering a continuous dialogue between people, space, and function.





Materiality and Craftsmanship: A Connection to Local Tradition
A defining feature of the Qingshan Cultural Hall Architecture is its deep respect for local craftsmanship and traditional building materials. The architectural team collaborated with local artisans to incorporate regionally sourced materials, ensuring a strong connection to Qingshan Village’s vernacular architecture.



Mud plaster, a material deeply embedded in the village’s construction heritage, was used for the walls, giving the structure a warm, earthy texture that blends seamlessly with its surroundings. Bamboo weaving, another hallmark of traditional craftsmanship, was employed for the stair railings, showcasing an intricate rhythm that echoes the movement of people traversing the space. By integrating these elements, the project preserves the authenticity of the village’s architectural identity while reinterpreting it in a contemporary context.





A New Perspective on Architecture and Community
Beyond its aesthetic and material considerations, the Qingshan Cultural Hall Architecture serves a broader purpose—challenging the rigidity of contemporary architectural norms. In contrast to the cold, sterile nature of modern structures, this project emphasizes sensory engagement, cultural continuity, and social interaction. By allowing nature to permeate the space and inviting community participation, the design fosters a living, breathing architectural experience.






This approach is particularly significant in the evolving discourse on rural architecture in China. As urbanization accelerates, projects like the Qingshan Cultural Hall demonstrate how architecture can support cultural preservation while embracing modern advancements. It offers a compelling vision for the future of rural development, where tradition and innovation coexist harmoniously.





The Qingshan Cultural Hall Architecture by MOMENTUM Architects is a landmark project that redefines the role of architecture in community life. By embracing fragmentation, permeability, and vernacular materials, the design successfully integrates the built environment with the natural landscape and local culture. It challenges the conventions of contemporary architecture, proposing a more responsive and interactive approach that prioritizes human experience. This project serves as an inspiring model for future cultural spaces, demonstrating how architecture can be a powerful bridge between history, nature, and modernity.




All photographs are works of Shengliang Su
Popular Articles
Popular articles from the community
Gads Hill Early Learning Center by JGMA: Adaptive Reuse Shaping Community-Focused Educational Architecture
Adaptive reuse transforms fragmented structure into vibrant early learning center with playful façade, natural light, and community-focused sustainable design.
Inverted Architecture Installation by Studio Link-Arc: Exploring the Intersection of Architecture and Living Organisms
Inverted Architecture Installation by Studio Link-Arc blends mycelium, sustainability, inverted design, ecological cycles, and urban adaptive architecture in Shenzhen.
Atelier Macri Concept Store Interior Design by CASE-REAL
Atelier Macri store features a "ko" counter, walnut wood details, cork displays, blending retail, gallery, and seamless customer experiences.
Similar Reads
You might also enjoy these articles
Bamboo Housing Challenge 2026: Design Affordable, Sustainable Homes Using Bamboo
An international design competition by Bamboo U and IBUKU inviting architects and designers to reimagine affordable housing using bamboo — with the winning design built full-scale in Bali.
Computational Design & Education: Beegraphy Design Awards Introduces 7th Category (Featuring Jiyun's Innovative Approach)
Dive into Beegraphy’s 7th Design Awards category, where computational design meets education to create immersive, interactive learning tools, inspired by Jiyun’s work.
From Parametric Lighting to Urban Furniture: Join the 2nd Workshop in Beegraphy’s Computational Design Series
Dive into Cutting-Edge Design Techniques and Practical Applications with Industry Experts
Explore Architecture Competitions
Discover active competitions in this discipline
The International Standard for Design Portfolios
The Global Benchmark for Architecture Dissertation Awards
The Global Benchmark for Graduation Excellence
Challenge to reimagine the Iron Throne
Comments (0)
Please login or sign up to add comments
No comments yet. Be the first to comment!