Renovated Corrugated Architecture: Transforming the Corrugated House by monotrum
Exploring the transformation of the Corrugated House by monotrum, a unique example of renovated corrugated architecture turned into a hotel.
The concept of renovated corrugated architecture is gaining popularity as architects and designers seek sustainable and innovative ways to repurpose existing structures. The Corrugated House by monotrum is a stellar example of this trend, turning a corrugated pipe structure into a modern accommodation facility.


The Corrugated House Transformation
Situated in Japan, the Corrugated House originally built by Kenji Kawai in 1965, has been repurposed into a unique hotel space. This project showcases the possibilities within renovated corrugated architecture, blending historical value with contemporary design.


Preserving Historical Integrity
The renovation of the Corrugated House aimed to maintain the building's cultural significance while introducing modern comforts. The design team approached the transformation with sensitivity, ensuring that the new space would respect the original architectural intent while accommodating current needs.




Innovative Design Solutions
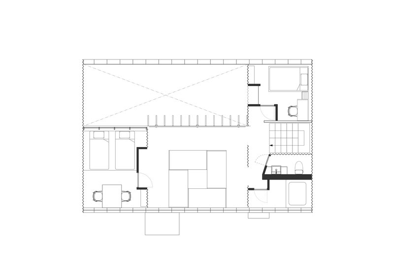
In adapting the house for its new role, the designers faced the challenge of creating private spaces within the open, tunnel-like structure. The solution involved strategic placement of new walls and the use of dark brown wooden paneling to maintain continuity with the existing flooring, demonstrating a thoughtful approach to renovated corrugated architecture.


Key Features of the Corrugated House
Material Contrast and Harmony
The juxtaposition of rough iron materials with calm-colored wood paneling illustrates the dynamic contrast at the heart of renovated corrugated architecture. This interplay enhances the spatial experience, creating a dialogue between old and new.


Customized Lighting and Furniture
The renovation introduced custom lighting solutions and furniture, further personalizing the space while staying true to the building's original character. The use of galvanized finishes connects the new elements with the corrugated material, ensuring a cohesive aesthetic throughout.





Future of Renovated Corrugated Architecture
The Corrugated House by monotrum stands as a testament to the potential of renovated corrugated architecture. By marrying historical elements with modern design practices, this project paves the way for future renovations that honor the past while embracing the present.


All photographs are work of Yoshiro Masuda
Popular Articles
Popular articles from the community
Pedevilla Architects Disguise a Five-Story School as a Tyrolean Farmhouse in Kössen
A dark-clad education center in rural Austria borrows the robust calm of Alpine vernacular to anchor a village's northern edge.
20 Most Popular Furniture Design Projects of 2025
Modular street systems, parametric benches, and insect hotels: the furniture design projects that captivated architects on uni.xyz in 2025.
Atelier LAI Scatters a Timber Resort Across a Terraced Anhui Valley
Nanshan Junning Resort uses wood joinery and topographic sensitivity to settle 6,700 square meters into a ten-meter slope near Hefei.
LABarq Builds an Entire House in Querétaro from a Single Custom Concrete Block
Casa Capuchinas uses one sand-colored block as structure, finish, and sunscreen across 477 square meters of suburban Mexico.
Similar Reads
You might also enjoy these articles
Olio Towers: A Mid-Rise for Performers That Fuses Housing, Rehearsal, and Stage
Located blocks from Houston's Theater District, this modular tower stacks living units around a central performance atrium.
Oasis: Modular Green Housing Carved into Dhaka's Urban Fabric
A shortlisted Plugin Housing entry reclaims unauthorized settlements in Dhaka with stepped concrete volumes, green roofs, and ventilation-driven design.
Black Hole: A Floating Megastructure for the Post-Physical Era
Emiliano Mazzarotto envisions a spherical, self-scaling arena where e-sports, digital hotels, and holographic stadiums replace traditional public space.
Compact & Sustainable Living in Piraeus: A Four-Level Family Home Built Around Light and Air
A narrow townhouse in one of Greece's densest port cities uses a central atrium and passive strategies to house three generations under one roof.
Explore Architecture Competitions
Discover active competitions in this discipline
The International Standard for Design Portfolios
The Global Benchmark for Architecture Dissertation Awards
The Global Benchmark for Graduation Excellence
Challenge to reimagine the Iron Throne
Comments (0)
Please login or sign up to add comments
No comments yet. Be the first to comment!