Renovation of Sichuan University Museum by CSWADI – A Landmark Cultural Transformation in Chengdu
The Renovation of Sichuan University Museum by CSWADI blends historic preservation with modern design, creating a cultural landmark in Chengdu.
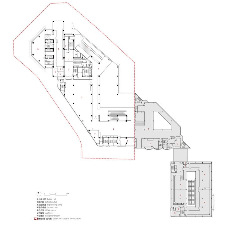
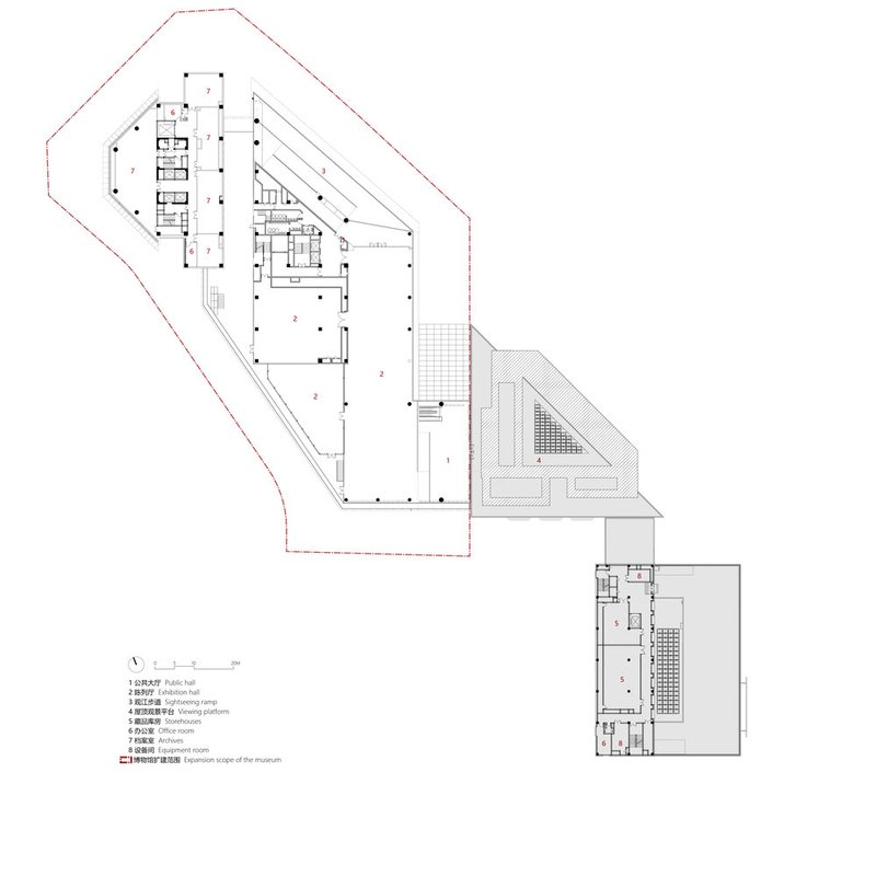
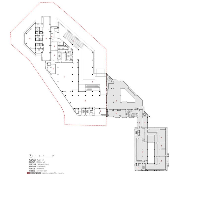
The Renovation and Expansion of Sichuan University Museum by CSWADI is a monumental project in Chengdu, China, revitalizing the country’s oldest university museum in Southwest China. Originally established in 1914 as the Huaxi Union University Antiquities Museum, the building now represents a harmonious blend of historical preservation, contemporary design, and functional expansion. Completed in 2022, the museum spans an impressive 73,414 m², offering visitors a seamless experience of humanities, natural history, and art collections within a modernized architectural framework.




Architectural Concept and Site Context
Situated along the scenic Jinjiang River near the east gate of Sichuan University’s historic campus, the museum’s design respects the southwest-deflected campus axis and grid system. By integrating the new extension with the original structures, CSWADI has maintained the cultural and architectural identity of the site while enhancing its urban presence along the riverfront.


The design includes two main elements:
- Renovated Original Structures: The 20-year-old Humanities Pavilion and Natural History Pavilion, totaling 14,700 m², have been adapted to modern functions. The Natural History Pavilion now houses collection storage due to its low ceilings, while the Humanities Pavilion is spatially restructured to connect with the new extension.
- New Museum Extension: A 20,000 m² addition complements the original structures, while an attached high-rise complex to the north provides 18,700 m² of research and office spaces.



Spatial Layout and Visitor Experience
The expanded museum follows a “one museum, two wings” configuration, connected by a full-height atrium that functions as the central circulation hub. Visitors can explore exhibition levels via escalators from the main lobby or ascend through a landscaped ramp along the riverside, enjoying curated framed views of the Jinjiang River through expansive glass curtain walls.

The exhibition spaces are thoughtfully distributed:
- Basement: Temporary exhibitions, lecture halls, educational zones, and a screening room.
- Levels 1–2: Permanent exhibitions on archaeology, folklore, and ethnic studies.
- Level 3: Natural history collections.
- Level 4: Art galleries featuring a century of Sichuan University’s art collections, enhanced by a dramatic pitched-roof volume for a ceremonial experience.



Architectural Details and Materials
The museum’s architecture draws inspiration from the historical vocabulary of Sichuan University, featuring projecting eaves, blue brickwork, and Xieshan-style pitched roofs. A prominent design highlight is the Light Wall, a permeable brick screen supported by stainless steel tension rods and ceramic tiles, which creates a luminous and textured façade.


Titanium-zinc panels replace traditional tiles for modern performance, while aluminum tube sunshades and semi-transparent curtains control natural light in gallery spaces. The redesigned roof of the original pavilion now hosts a green rooftop café and terrace, offering panoramic views of the Jinjiang River and the surrounding urban landscape.


Landscape Integration and Urban Role
The renovation project extends beyond architecture, actively revitalizing the surrounding riverfront public space, making the museum a cultural and urban landmark along the Jinjiang River corridor. Courtyards, ramps, and landscaped paths create smooth transitions between interior exhibition spaces and outdoor public areas.




Cultural and Academic Significance
The museum’s program reflects Sichuan University’s academic leadership in humanities, natural sciences, and arts. Through innovative design, the expansion ensures that the museum serves as a platform for research, cultural preservation, and public engagement, solidifying its role as a key cultural node in Chengdu.





The Renovation of Sichuan University Museum by CSWADI is a masterful balance between heritage conservation and contemporary design. By merging old and new architectural languages, the project not only restores the historic significance of the museum but also redefines its future as a vibrant cultural landmark in Southwest China.



All Photographs are works of Ting Wang, Zhen Xin, Yang Zhang
Popular Articles
Popular articles from the community
The Ken Roberts Memorial Delineation Competition (Krob)
As the most senior architectural drawing competition currently in operation anywhere in the world, it draws hundreds of entries each year, awarding the very best submissions in a series of medium-based categories.
Inverted Architecture Installation by Studio Link-Arc: Exploring the Intersection of Architecture and Living Organisms
Inverted Architecture Installation by Studio Link-Arc blends mycelium, sustainability, inverted design, ecological cycles, and urban adaptive architecture in Shenzhen.
A Contemporary Take on Iranian Residential Architecture
A modern interior design in Mashhad that reinterprets brick, light, and spatial flow to create a warm, contemporary residential architecture.
Flamboyant House by Juliana Camargo + Prumo Projetos
Modern Brazilian house integrating existing tree, pool, and volumes with glass, wood, and transitional spaces blending interior, exterior, and landscape seamlessly.
Similar Reads
You might also enjoy these articles
Bamboo Housing Challenge 2026: Design Affordable, Sustainable Homes Using Bamboo
An international design competition by Bamboo U and IBUKU inviting architects and designers to reimagine affordable housing using bamboo — with the winning design built full-scale in Bali.
Computational Design & Education: Beegraphy Design Awards Introduces 7th Category (Featuring Jiyun's Innovative Approach)
Dive into Beegraphy’s 7th Design Awards category, where computational design meets education to create immersive, interactive learning tools, inspired by Jiyun’s work.
From Parametric Lighting to Urban Furniture: Join the 2nd Workshop in Beegraphy’s Computational Design Series
Dive into Cutting-Edge Design Techniques and Practical Applications with Industry Experts
Introducing Sphere by UNI: Pioneering a New Era in AEC Industry
Unlocking Global Potential with BIM and Agile Management
Explore Architecture Competitions
Discover active competitions in this discipline
The International Standard for Design Portfolios
The Global Benchmark for Architecture Dissertation Awards
The Global Benchmark for Graduation Excellence
Challenge to reimagine the Iron Throne
Comments (0)
Please login or sign up to add comments
No comments yet. Be the first to comment!