Restelo MGR House: A Modern Home Renovation That Blends Heritage with Contemporary Design
Restelo MGR House exemplifies modern home renovation, blending mid-century charm with contemporary architecture to create a sophisticated living space.
Transforming a Mid-Century Home into a Modern Architectural Masterpiece
Restelo MGR House, designed by João Tiago Aguiar, Arquitectos, is a striking example of modern home renovation that seamlessly integrates contemporary interventions while preserving the essence of mid-century modernist architecture. Situated in Restelo, Portugal, this project redefines a late 1950s twin house, enhancing its spatial functionality, natural light exposure, and connection to the surrounding landscape. Through a meticulous blend of traditional craftsmanship and innovative materials, the transformation elevates the residence into a timeless and sophisticated living space.





Architectural Intervention That Enhances Functionality and Aesthetics
The renovation involved a carefully executed expansion, introducing a new attic level to the existing basement and two-story structure. This vertical extension was designed to maximize panoramic views while maintaining a strong visual connection to the original architecture. To achieve harmony between old and new, the extended portions were clad in white lacquered aluminum sliding panels, creating a sleek yet dynamic contrast against the original façade. These panels serve both aesthetic and functional purposes, incorporating louvers and railings within a cohesive modern design language.






Material Selection That Celebrates Tradition and Modernity
The interior design embraces noble materials such as natural wood, natural stone, and semi-handmade tiles, ensuring a rich and textured aesthetic that respects the home’s historical character. These materials were thoughtfully integrated to create warmth and continuity, bridging the gap between tradition and modern living. The meticulous selection of finishes underscores the project’s commitment to quality, sustainability, and timeless appeal.






A Multi-Layered Living Experience
The transformation of the basement introduced a mix of functional and leisure spaces. Alongside essential service areas like a technical room, laundry, and parking for two vehicles, the basement now features a maid’s ensuite bedroom, a guest suite, and an indoor counter-current swimming pool. A luxurious cinema and a pool table area further enhance the entertainment value, complemented by a temperature-controlled wine cellar, reflecting a lifestyle of comfort and refinement.



The ground floor was redesigned to emphasize openness and seamless transitions between different zones. The entrance hall, anchored by a custom-designed furniture piece, offers both aesthetic appeal and practicality. Concealed elements, including a wardrobe and guest toilet, ensure that functionality remains subtly integrated.





The kitchen was crafted as a social hub, combining an island, informal dining area, and concealed storage solutions for maximum efficiency. Adjoining the kitchen, an open office with shelving and a fireplace adds a layer of warmth and versatility to the space. The dining area, framed by integrated storage, leads into the main living area, where a striking suspended fireplace serves as a focal point. Positioned at the southwest corner of the house, this space maximizes natural light while opening up to expansive views of the Tagus River estuary.




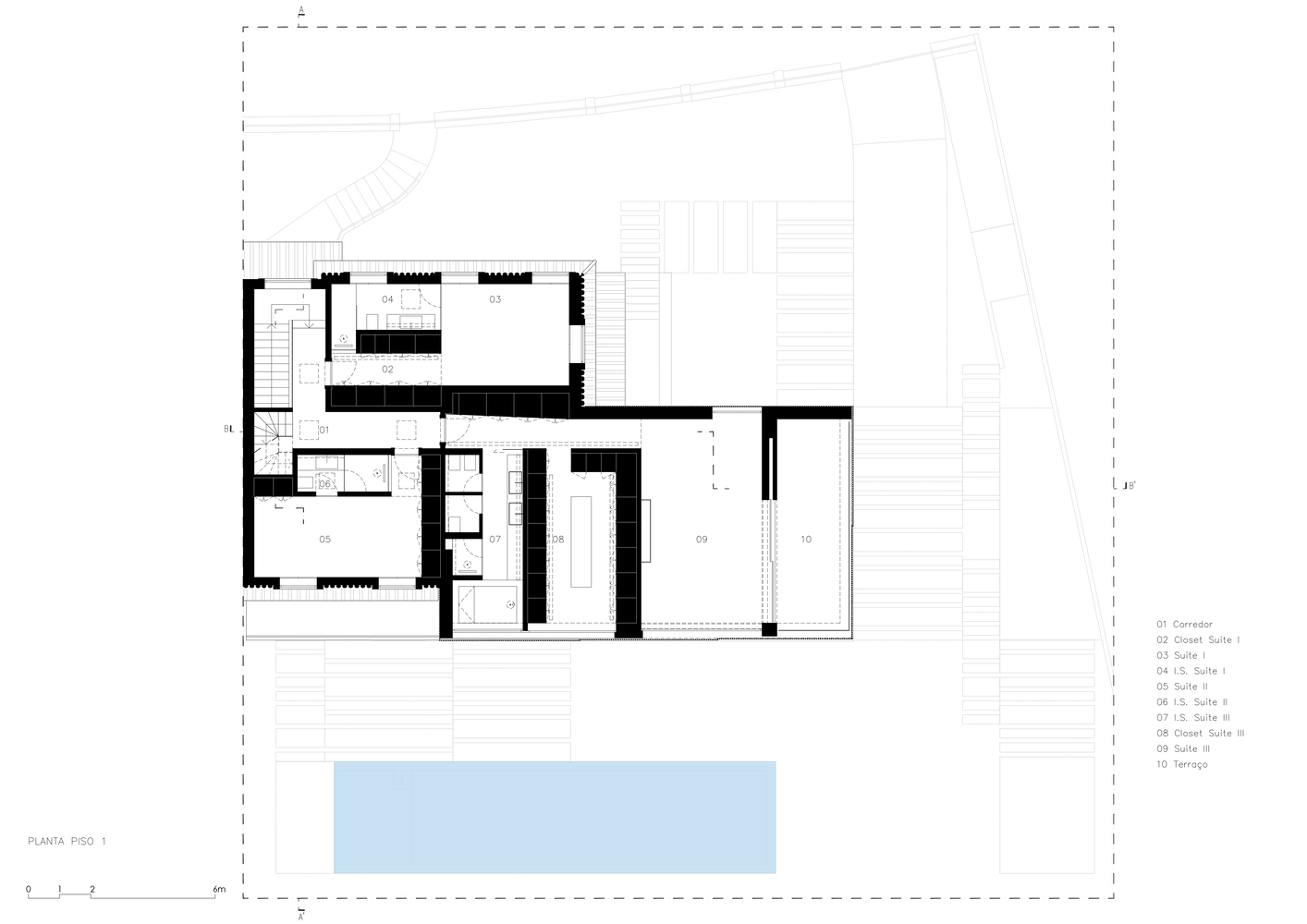
The first-floor layout was restructured to enhance comfort and privacy. The redesign converted the original three-bedroom configuration into two ensuite bedrooms and a spacious master suite. The master suite, occupying a significant portion of the expansion, features a walk-in closet and large southwest-facing windows that frame scenic vistas. A newly added veranda reinforces the connection between indoor and outdoor living.


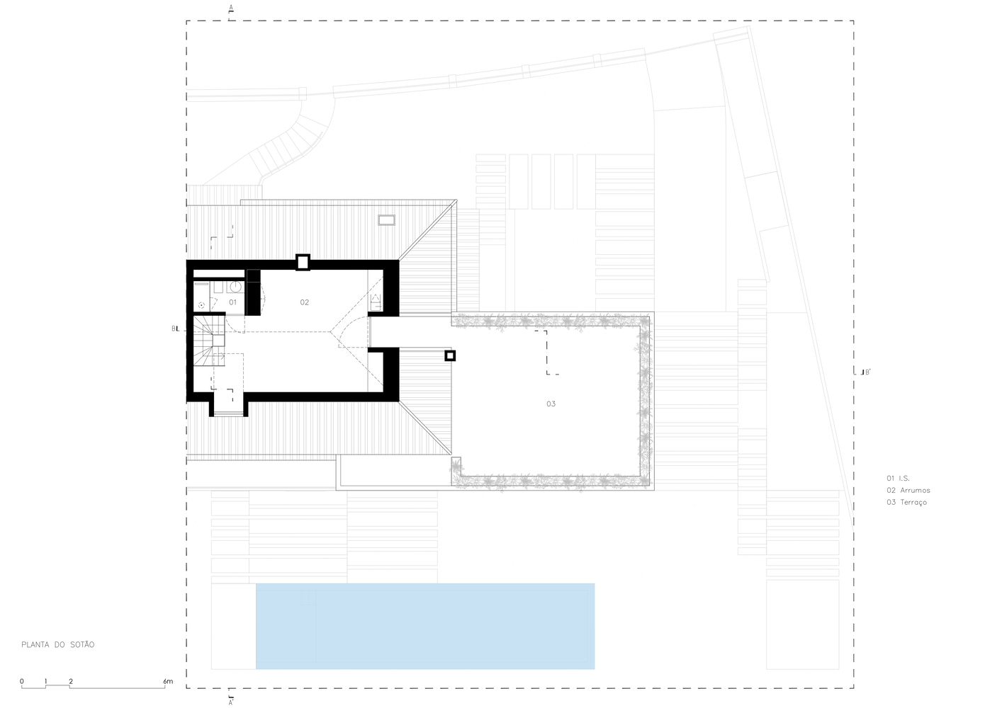
The newly introduced attic level offers a flexible retreat, housing an additional office, a multipurpose room, storage areas, and a compact kitchenette. The placement of the kitchenette allows for easy access to refreshments on the expansive terrace, making it an ideal space for relaxation and entertaining.



Seamless Indoor-Outdoor Integration
Outdoor spaces were carefully designed to complement the home’s architectural transformation. A swimming pool finished in green handmade tiles blends harmoniously with the surrounding lawn, while a dedicated BBQ area, an exterior toilet, and integrated storage solutions further enhance the functionality of the outdoor environment. The preservation of a rear veranda strengthens the continuity between the indoor social spaces and the garden, encouraging a seamless flow between built and natural elements.



A Timeless Vision for Modern Home Renovation
Restelo MGR House is a testament to the power of modern home renovation in redefining residential architecture. By balancing heritage preservation with contemporary design innovations, this project successfully bridges different architectural eras, resulting in a sophisticated yet functional living space. The careful selection of materials, strategic spatial planning, and seamless indoor-outdoor integration create a home that not only respects its past but also embraces the future of modern living.




As a model for urban residential transformation, this renovation highlights the potential of architectural interventions to enhance spatial quality, optimize functionality, and elevate the living experience. Through a thoughtful dialogue between history and modernity, the Restelo MGR House stands as an enduring example of timeless, refined design.



All Photographs are works of Francisco Nogueira
Popular Articles
Popular articles from the community
Marvila Apartment Renovation in Lisbon: A Bright Minimalist Attic Transformation by KEMA Studio
Bright attic transformed into minimalist Lisbon apartment with skylights, sustainable materials, open plan layout, and industrial-inspired interior design elements.
TGK Nirasaki Plant: A Smart Factory Blending Technology, Landscape, and Wellness
Smart factory in Japan blending IoT manufacturing, scenic trail design, natural ventilation, and landscape integration to enhance user experience and sustainability.
Filtering Space: A Gradual Spatial Experience
From urban intensity to spatial calm.
Similar Reads
You might also enjoy these articles
Bamboo Housing Challenge 2026: Design Affordable, Sustainable Homes Using Bamboo
An international design competition by Bamboo U and IBUKU inviting architects and designers to reimagine affordable housing using bamboo — with the winning design built full-scale in Bali.
Computational Design & Education: Beegraphy Design Awards Introduces 7th Category (Featuring Jiyun's Innovative Approach)
Dive into Beegraphy’s 7th Design Awards category, where computational design meets education to create immersive, interactive learning tools, inspired by Jiyun’s work.
From Parametric Lighting to Urban Furniture: Join the 2nd Workshop in Beegraphy’s Computational Design Series
Dive into Cutting-Edge Design Techniques and Practical Applications with Industry Experts
Explore Architecture Competitions
Discover active competitions in this discipline
The International Standard for Design Portfolios
The Global Benchmark for Architecture Dissertation Awards
The Global Benchmark for Graduation Excellence
Challenge to reimagine the Iron Throne
Comments (0)
Please login or sign up to add comments
No comments yet. Be the first to comment!