Revitalizing Heritage: Historic Adaptive Reuse in San Francisco by Perkins&Will
Perkins&Will transforms San Francisco's historic Building 12 into a vibrant community space through adaptive reuse.
Discover the transformative journey of Building 12 in San Francisco, as Perkins&Will breathes new life into its historic structure through adaptive reuse. This article explores the innovative approach taken to create a vibrant community space while preserving the building's rich history.








Preserving History Through Adaptive Reuse:
Dive into the details of how Perkins&Will approached the renovation of Building 12, a structure built in 1941 with a significant role in the fabrication of ship hulls. Learn how the project preserves the building's historic essence while embracing modern functionalities.







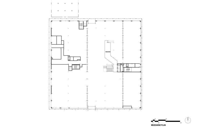
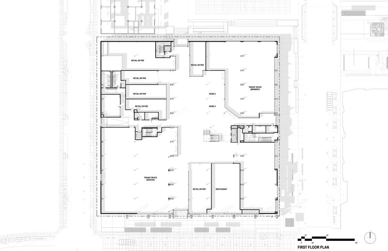
Designing a Vibrant Community Gathering Space
Explore the architect's vision to turn Building 12 into a vibrant community gathering and event space. The article delves into the design elements, including grand market halls, colossal red portals, and operable window walls, providing insights into creating a seamless connection with the surrounding landscape.



Celebrating Local Making and Manufacturing
Uncover the emphasis on celebrating local making and manufacturing within Building 12. The project aims to engage the public in the act of manufacturing, offering artisan and maker studios, retail opportunities, and event spaces for both public and private events.
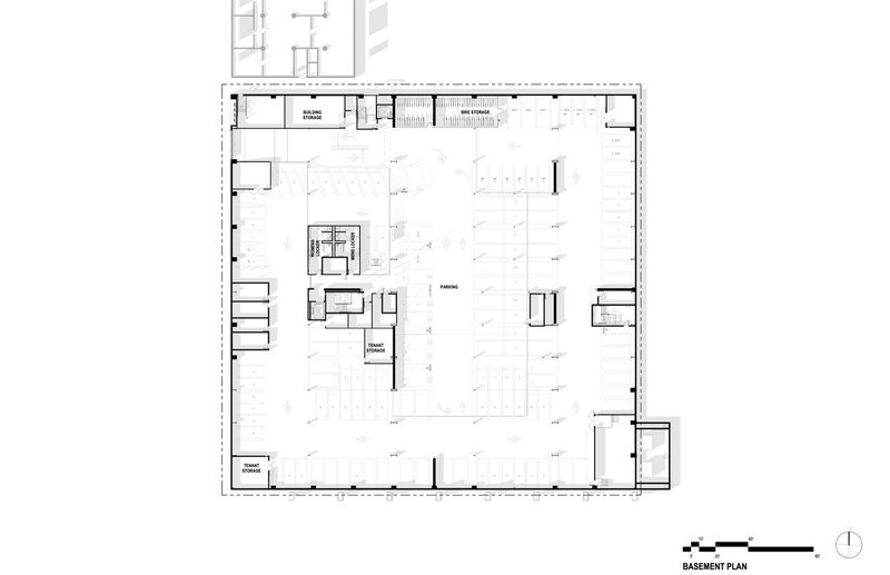
Addressing Environmental Challenges
Learn about the innovative response to environmental challenges, with a particular focus on addressing a 100-year projected sea level rise. The article explores how the design team lifted Building 12 along with the site, presenting a unique and forward-thinking solution to preserve the historic resource.










Building 12 stands as a testament to the successful marriage of historic preservation and adaptive reuse in San Francisco. Perkins&Will's visionary approach has not only revitalized a significant landmark but has also created a dynamic space that honors the past while embracing the future.
All Photographs are the work of Bruce Damonte
Popular Articles
Popular articles from the community
Louis Malle Cinema: A Limestone Cultural Landmark Revitalizing Community Life in Prayssac
Limestone cinema extension with public forecourt, blending heritage and modern design to create flexible cultural spaces and strengthen community interaction.
The Ken Roberts Memorial Delineation Competition (Krob)
As the most senior architectural drawing competition currently in operation anywhere in the world, it draws hundreds of entries each year, awarding the very best submissions in a series of medium-based categories.
Inverted Architecture Installation by Studio Link-Arc: Exploring the Intersection of Architecture and Living Organisms
Inverted Architecture Installation by Studio Link-Arc blends mycelium, sustainability, inverted design, ecological cycles, and urban adaptive architecture in Shenzhen.
Flamboyant House by Juliana Camargo + Prumo Projetos
Modern Brazilian house integrating existing tree, pool, and volumes with glass, wood, and transitional spaces blending interior, exterior, and landscape seamlessly.
Similar Reads
You might also enjoy these articles
The Ken Roberts Memorial Delineation Competition (Krob)
As the most senior architectural drawing competition currently in operation anywhere in the world, it draws hundreds of entries each year, awarding the very best submissions in a series of medium-based categories.
Waterfront Redevelopment and Urban Revitalization in Mumbai: Forging a New Dawn for Darukhana
A transformative waterfront redevelopment project reimagining Darukhana’s shipbreaking heritage into an inclusive urban future.
OUT-OF-MAP: A Call for Postcards on Feminist Narratives of Public Space
Rhizoma Design and Research Lab invites artists, designers, architects, researchers, and students to reflect on how feminist perspectives can reshape public space. Selected works will be exhibited in Barcelona, October 2026. Submissions open until 15 April 2026.
Documentation Work on Buddhist Wooden Temple
Architectural syncretism and cultural hybridity: A comparative study of the Buddhist temples in Chattogram Hill tracks
Explore Architecture Competitions
Discover active competitions in this discipline
The International Standard for Design Portfolios
The Global Benchmark for Architecture Dissertation Awards
The Global Benchmark for Graduation Excellence
Challenge to reimagine the Iron Throne
Comments (0)
Please login or sign up to add comments
No comments yet. Be the first to comment!