Revolutionizing Home Design: The Magnificent Mateo House by Zozaya Arquitectos
What Makes Zozaya Arquitectos' Casa Mateo a Masterpiece of Modern Architecture?

Zozaya Arquitectos has recently designed a masterpiece of modern architecture that seamlessly blends with its surrounding environment. The Casa Mateo is located in Punta Garrobo, Zihuatanejo, at one of the highest points of the development. The east and west views of the Pacific Ocean and the jungle landscape are perfectly integrated into the house, allowing for a complete immersion in nature.
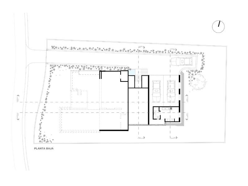
The architects faced the challenge of exalting the user's connection with the natural context in their daily life. To achieve this, the house features tours, a patio of water, and terraces that create an atmosphere of relaxation, leisure, and enjoyment. Access to the property is through a sloping road that leads to the covered parking and main entrance. The central courtyard of the house is a large mirror of water surrounded by an outdoor staircase flanked by two volumes of stone enclosure in the form of weeping walls.
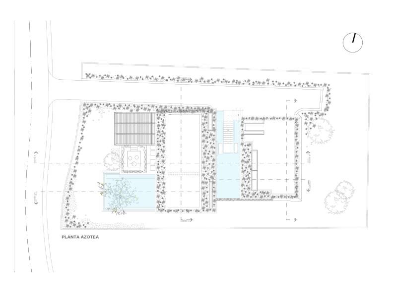
Casa Mateo is segmented into two geometries that differentiate between private and social spaces. The first geometry houses three bedrooms with their respective bathrooms, while the second contains the living room, dining room, and kitchen. There is also a possibility of unifying these spaces with the pergola terrace and the grill. The master bedroom is an exclusive private space with a direct connection to the infinity pool and ocean views.
The main structure of the house is made of apparent concrete and partition, along with secondary elements of local stone and steel. The architects have used Parota wood to provide warmth to the house, resulting in a chromatic grey and coffee that blends organically with the natural environment. The project has implemented passive bioclimatic systems through cross ventilation in various spaces, adapting to the beach situation of the area. Green roofs were also implemented to mimic the surrounding vegetation, reduce paved surfaces, and generate thermal comfort inside the residence.
The house also has its own sewage and grey treatment plant, which enables the reuse and minimization of environmental impact. In summary, Casa Mateo by Zozaya Arquitectos is a stunning example of a house that maximizes its integration with the environment while providing a luxurious and comfortable living space for its inhabitants.































Architects: Zozaya Arquitectos
Area: 488 m²
Photographs: Cesar Belio
Lead Architect: Daniel Zozaya Valdés
Design Team: Enrique Zozaya, Saddam Otero, Jesus Lopez, Luis Alonso, José Antonio Vázquez, Ana Karen Cadena
City: Zihuatanejo
Country: Mexico
Popular Articles
Popular articles from the community
Louis Malle Cinema: A Limestone Cultural Landmark Revitalizing Community Life in Prayssac
Limestone cinema extension with public forecourt, blending heritage and modern design to create flexible cultural spaces and strengthen community interaction.
On the Brooks House by Monsoon Collective – A Contemporary Kerala Home Rooted in Tradition
Kerala home blending tradition and modernity with water-inspired design, brick architecture, courtyard planning, and sustainable rainwater harvesting strategies.
A Contemporary Take on Iranian Residential Architecture
A modern interior design in Mashhad that reinterprets brick, light, and spatial flow to create a warm, contemporary residential architecture.
An Miên Lumière Cafe by xưởng xép, Ho Chi Minh City, Vietnam
An industrial-inspired café where layered steel and warm light create a dynamic, immersive environment shaped by reflection, depth, and perception.
Similar Reads
You might also enjoy these articles
Zhuxi Wonderland: Reimagining Traditional Chinese Gardens by Doarchi Architects
Zhuxi Wonderland by Doarchi Architects reinterprets traditional Yangzhou gardens, integrating courtyards, pavilions, and tea houses in modern cultural design.
Doble Soga House: A Contemporary Brick Residence Rooted in Landscape in Quito, Ecuador
Brick house in Quito integrating nature, flexible living spaces, exposed materials, and rooftop terrace, creating warm contemporary architecture for modern family life.
Al Gharra Mosque in Medina Redefining Contemporary Islamic Architecture
Minimalist Medina mosque using concrete, light, and landscape to reinterpret Islamic worship spaces through symbolic spiritual transitions and contemporary architecture.
Viczonecode Villa by DDconcept – Tropical Family Living in Ho Chi Minh City
Tropical family villa in Ho Chi Minh City featuring courtyards, skylights, natural ventilation, elevated flooring, and seamless indoor–outdoor living surrounded by greenery.
Explore Architecture Competitions
Discover active competitions in this discipline
The International Standard for Design Portfolios
The Global Benchmark for Architecture Dissertation Awards
The Global Benchmark for Graduation Excellence
Challenge to reimagine the Iron Throne
Comments (0)
Please login or sign up to add comments
No comments yet. Be the first to comment!