Revolutionizing Public Safety: The Community-Focused Police Station Design of Fukuyama Higashi Ekimae KOBAN
The article highlights the Fukuyama Higashi Police Station, showcasing its community-focused design and integration of local cultural and industrial elements.
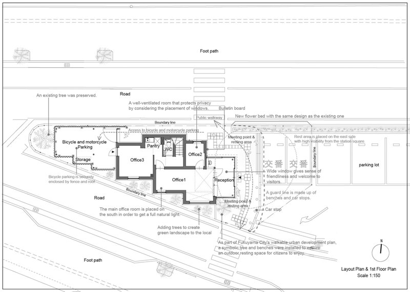
In the heart of Fukuyama, Hiroshima Prefecture, stands a testament to Community-Focused Police Station Design: the Fukuyama Higashi Police Station Ekimae KOBAN. Designed by Meguro Architecture Laboratory, this facility redefines the traditional concept of police stations in Japan, making it a beacon of security and community trust.


Embracing the Community with Open Design
The core principle behind this unique Community-Focused Police Station Design is its approachability and openness to the public. Unlike conventional police boxes, the Fukuyama Higashi KOBAN introduces an inviting atmosphere with strategically placed stone benches and well-lit surroundings, fostering a friendly and safe environment for local residents.


Integrating Local Culture and History
Reflecting Fukuyama's rich heritage, the design of the police station pays homage to local landmarks and materials. The structure’s silhouette draws inspiration from Tomo no Ura, a historic lighthouse, while incorporating titanium zinc steel panels reminiscent of Fukuyama Castle. This blend of tradition and modernity underscores the innovative approach to Community-Focused Police Station Design.




Sustainable and Locally Sourced Materials
Sustainability is a cornerstone of the project, with a focus on local resources to promote regional industries. From the titanium zinc alloy panels representing Fukuyama’s steel legacy to the interior cedar wood sourced from Hiroshima Prefecture, every element underscores the station’s commitment to environmental stewardship and local identity.






A New Era for Police Stations
The Fukuyama Higashi Police Station Ekimae KOBAN by Meguro Architecture Laboratory stands as a pioneering example of Community-Focused Police Station Design, bridging the gap between law enforcement and the community through architecture that is welcoming, culturally resonant, and sustainably built.


All photographs are work of Koichi Torimura
Popular Articles
Popular articles from the community
Atelier Macri Concept Store Interior Design by CASE-REAL
Atelier Macri store features a "ko" counter, walnut wood details, cork displays, blending retail, gallery, and seamless customer experiences.
On the Brooks House by Monsoon Collective – A Contemporary Kerala Home Rooted in Tradition
Kerala home blending tradition and modernity with water-inspired design, brick architecture, courtyard planning, and sustainable rainwater harvesting strategies.
A Contemporary Take on Iranian Residential Architecture
A modern interior design in Mashhad that reinterprets brick, light, and spatial flow to create a warm, contemporary residential architecture.
Louis Malle Cinema: A Limestone Cultural Landmark Revitalizing Community Life in Prayssac
Limestone cinema extension with public forecourt, blending heritage and modern design to create flexible cultural spaces and strengthen community interaction.
Similar Reads
You might also enjoy these articles
The Ken Roberts Memorial Delineation Competition (Krob)
As the most senior architectural drawing competition currently in operation anywhere in the world, it draws hundreds of entries each year, awarding the very best submissions in a series of medium-based categories.
Waterfront Redevelopment and Urban Revitalization in Mumbai: Forging a New Dawn for Darukhana
A transformative waterfront redevelopment project reimagining Darukhana’s shipbreaking heritage into an inclusive urban future.
OUT-OF-MAP: A Call for Postcards on Feminist Narratives of Public Space
Rhizoma Design and Research Lab invites artists, designers, architects, researchers, and students to reflect on how feminist perspectives can reshape public space. Selected works will be exhibited in Barcelona, October 2026. Submissions open until 15 April 2026.
Documentation Work on Buddhist Wooden Temple
Architectural syncretism and cultural hybridity: A comparative study of the Buddhist temples in Chattogram Hill tracks
Explore Architecture Competitions
Discover active competitions in this discipline
The International Standard for Design Portfolios
The Global Benchmark for Architecture Dissertation Awards
The Global Benchmark for Graduation Excellence
Challenge to reimagine the Iron Throne
Comments (0)
Please login or sign up to add comments
No comments yet. Be the first to comment!