Riverfront Hotel Design in Thailand: Exploring Riva Vista Riverfront Resort by IDIN Architects
Exploring Riva Vista Riverfront Resort's fusion of modern design with Northern Thai vernacular by IDIN Architects.
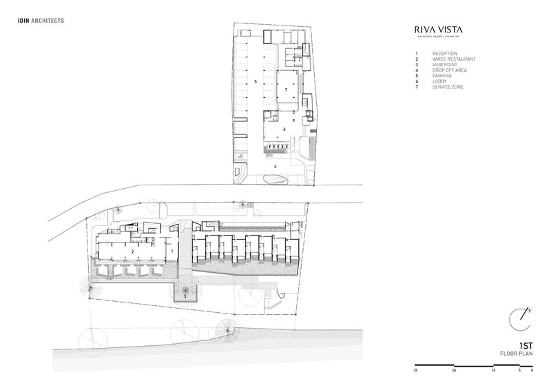
The Riva Vista Riverfront Resort, designed by IDIN Architects, is a landmark project situated along the Kok River in Chiang Rai, Thailand. Spanning an area of 5530 m² and completed in 2023, this 61-key hotel blends modern architectural principles with the vernacular Northern Thai character, creating a unique hospitality experience. Photographs by DOF Sky | Ground capture the essence of a project that harmonizes with its natural and urban surroundings, catering to the lifestyle of city dwellers and travelers alike.



Design Philosophy: A Blend of Tradition and Modernity
IDIN Architects aimed to encapsulate the rapid growth and ancient traditions of Chiang Rai in the Riva Vista Riverfront Resort's design. The project is conceived as a "peculiar dish" that combines old and new, interpreting vernacular Northern Thai elements through modern architectural techniques. This approach results in a distinctive aesthetic and functional harmony that respects the site's history while projecting a contemporary vision.







Unique Site Challenges
The resort's location, divided by a road into two separate plots, presented unique design challenges and opportunities. The riverfront plot houses the all-day dining area and main suites, maximizing the picturesque views of the Kok River. The architects ingeniously designed the building to allow all guestrooms to enjoy river vistas, while also integrating the landscape's natural elements, such as the giant raintree, into the overall design.
The second plot, situated behind the road, features an L-shaped building that wraps around a central pool, offering private access from each guestroom. This arrangement compensates for the absence of river views and creates a secluded leisure area that includes a lobby, seminar room, fitness center, and spa.









Architectural and Interior Highlights
The resort's architecture and interior design are deeply influenced by Lanna vernacular traditions, incorporating elements like the "Tern" (raised platform), "Kwan" (traditional hanging storage), and "Raan-Nam" (water jug shelf). These features, alongside the purposeful showcase of traditional wood joints, infuse the spaces with a sense of place and history.
The guestroom layout emphasizes river views, with bathrooms strategically placed to allow for expansive vistas. The facade's design, featuring alternating protrusions, adds depth and complexity to the resort's appearance. Additionally, wooden door elements are repurposed as shading devices, creating a distinctive architectural language that reflects the project's innovative approach to design.
Riva Vista Riverfront Resort by IDIN Architects stands as a testament to thoughtful architectural synthesis, where the allure of Chiang Rai's natural landscape meets the sophistication of contemporary design. It exemplifies how architecture can bridge the gap between tradition and modernity, offering guests a unique experience that is both rooted in local culture and forward-looking in its execution.






All Photographs are the work of DOF Sky | Ground
Popular Articles
Popular articles from the community
Solar Steam: A Climate-Responsive Architecture That Redefines the Monument
A climate-responsive memorial architecture that transforms heat, decay, and time into a living system reflecting humanity’s ecological impact.
On the Brooks House by Monsoon Collective – A Contemporary Kerala Home Rooted in Tradition
Kerala home blending tradition and modernity with water-inspired design, brick architecture, courtyard planning, and sustainable rainwater harvesting strategies.
Treehouse Apartment: A Warm Timber Interior Blending Craft, Play, and Contemporary Living
Warm timber apartment with integrated treehouse, combining natural materials, craftsmanship, and playful design to create a flexible, family-oriented living environment.
An Miên Lumière Cafe by xưởng xép, Ho Chi Minh City, Vietnam
An industrial-inspired café where layered steel and warm light create a dynamic, immersive environment shaped by reflection, depth, and perception.
Similar Reads
You might also enjoy these articles
The Ken Roberts Memorial Delineation Competition (Krob)
As the most senior architectural drawing competition currently in operation anywhere in the world, it draws hundreds of entries each year, awarding the very best submissions in a series of medium-based categories.
Waterfront Redevelopment and Urban Revitalization in Mumbai: Forging a New Dawn for Darukhana
A transformative waterfront redevelopment project reimagining Darukhana’s shipbreaking heritage into an inclusive urban future.
OUT-OF-MAP: A Call for Postcards on Feminist Narratives of Public Space
Rhizoma Design and Research Lab invites artists, designers, architects, researchers, and students to reflect on how feminist perspectives can reshape public space. Selected works will be exhibited in Barcelona, October 2026. Submissions open until 15 April 2026.
Documentation Work on Buddhist Wooden Temple
Architectural syncretism and cultural hybridity: A comparative study of the Buddhist temples in Chattogram Hill tracks
Explore Architecture Competitions
Discover active competitions in this discipline
The International Standard for Design Portfolios
The Global Benchmark for Architecture Dissertation Awards
The Global Benchmark for Graduation Excellence
Challenge to design luxury tourism on rails
Comments (0)
Please login or sign up to add comments
No comments yet. Be the first to comment!