Seear-Budd Ross Splits a Wellington Coastal Home into Two Timber Pavilions Around a Sheltered Court
On Eastbourne's Marine Parade, the RK Residence channels light, timber, and vernacular roof forms into a calm domestic sequence.
Between the harbour and the native-covered foothills of Eastbourne, a Wellington suburb strung along Marine Parade, Seear-Budd Ross has replaced an existing cottage with a five-bedroom house that reads less as a single building than as a small compound. Two pavilions, one for living and one for sleeping, face each other across a brick-paved courtyard planted with an olive tree. A glazed passage stitches them together, creating a house that oscillates deliberately between exposure and retreat, openness and enclosure.
What makes the RK Residence worth studying is not just the pavilion plan, which is common enough in residential architecture, but the discipline with which every detail reinforces a single atmosphere. The architects distilled the brief into four words: light, airy, informal, calm. That sounds like a mood board, but the built result proves it was actually a design protocol. Roof junctions are blade-thin because flashings and downpipes are concealed. Rafters are macrocarpa rather than engineered timber because scent and grain matter as much as span. The material palette, heat-treated New Zealand pine outside, macrocarpa inside, band-sawn oak on the floor, limestone in wet areas, is narrow enough to be legible from any room yet varied enough to mark each threshold.
A Roof That Quotes the Street



Eastbourne's housing stock is dominated by one- and two-storey timber-clad homes with strong hipped or gabled roofs. Rather than importing a flat-roofed modernist box, Seear-Budd Ross stretched a hip roof across both pavilions and the garage, creating a low-slung, asymmetrical gable that sits comfortably among its neighbours. The white-metal standing seam cladding meets the horizontal timber walls at a razor-sharp datum line that runs continuously through the house, giving the roof the visual weight of a single plane rather than a series of intersecting pitches.
The detail at the corner where metal roof meets timber column and sheer curtain is telling. There is no fascia, no gutter visible, no trim piece announcing the junction. The architects and their structural engineers at Focus Engineering worked to conceal every skylight frame, internal rafter fixing, and flashing. The result is a roof that looks almost too simple, which is precisely the point: complexity in construction, calm in perception.
The Courtyard as Hinge



The brick-paved courtyard is the spatial engine of the house. It separates the public programme (living, kitchen, garage) from the private one (bedrooms, studies) while keeping both in constant visual dialogue through full-height glazing on either side. The olive tree anchors the space and will, over time, filter light through the glazed corridor that runs alongside it. This corridor doubles as a gallery: a narrow, daylit room where the vertical white slat partitions modulate views into the courtyard without blocking them.
The clients relocated from a rural setting. Giving them a courtyard was a way to smuggle a garden into what is effectively a suburban lot. Sheltered from coastal wind, the court becomes a usable outdoor room rather than a decorative void, a distinction that separates functional pavilion plans from diagrammatic ones.
Compression and Release



The entry sequence is the most deliberate spatial move in the house. A covered passage tunnels through horizontal timber cladding toward a distant landscape view, its ceiling low and its light controlled. From there the route passes through a compressed, dim nook before releasing into the main living pavilion, where macrocarpa rafters and sarking are fully exposed overhead and full-height glazing opens the room to the harbour. The contrast is physical: you feel your posture change.
Deeper into the plan, the interior corridor leading toward the sleeping pavilion maintains the taut materiality of stone flooring and exposed timber ceiling joists but drops the ceiling height again, reinforcing the shift from communal to private. Seear-Budd Ross describe the programme as a journey between prospect and refuge. The architecture delivers on that promise without resorting to dramatic gestures; the transitions are governed by ceiling height, light level, and material temperature rather than by theatrical volumes.
Living with the Sea


The living pavilion is the most generous room in the house. Exposed macrocarpa rafters rise to a vaulted peak, and sheer white curtains filter the coastal glare without erasing the view. Glass doors on both sides dissolve the boundary between interior and terrace, so the room effectively doubles its footprint on a calm day. Skylights over the dining area supplement the lateral light and keep the centre of the deep plan bright through the afternoon.
The kitchen, visible through the covered terrace, is anchored by a limestone island that introduces a cooler, denser material into the warm timber palette. It is a deliberate counterpoint: the stone grounds the space and signals a functional zone without requiring a wall. The standing seam roof extends over the terrace to create a covered outdoor living area, framing the kitchen beyond as if it were a stage set. On Marine Parade, where weather shifts fast, this kind of sheltered threshold is not a luxury but a necessity.
Material Honesty, Local Supply


Every significant material in the house is sourced from New Zealand. The exterior cladding is Abode heat-treated pine, a product that achieves durability without chemical treatment by modifying the timber's cell structure at high temperature. Inside, macrocarpa grown in New Zealand lines walls, rafters, and ceilings. Band-sawn oak flooring with a matte finish gives the living areas a textured grain underfoot, while New Zealand wool carpets soften the bedrooms. Low-VOC paints and low-usage electrical fittings round out a sustainability strategy that relies on sensible specification rather than conspicuous technology.
The material module is controlled with unusual precision. The roof-to-wall junction datum that runs through the house dictates cladding dimensions and fixing patterns, so the transition from one material to the next is always aligned. Builders at RJC Building clearly had to work to tolerances more typical of cabinetry than house framing. The payoff is a building that reads as crafted rather than assembled.
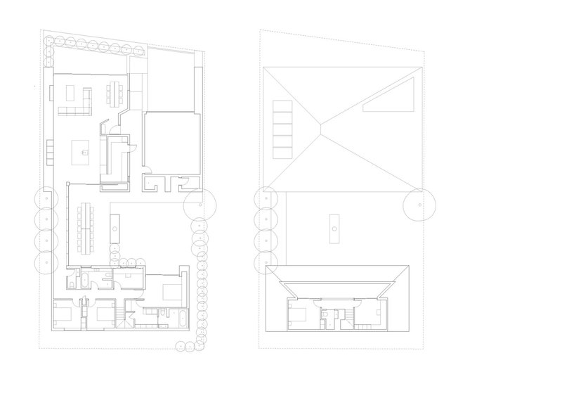
Plans and Drawings

The floor plan and roof plan confirm the clarity of the parti. Two rectangular volumes sit parallel to each other, offset just enough to create the courtyard between them and a covered passage at one end. The front pavilion, containing living areas and garage, addresses the street and the harbour. The rear pavilion, two storeys of bedrooms and studies, backs up against the hillside and is topped with a roof terrace that captures evening sun. The glazed corridor connecting them reads on the roof plan as an absence, a gap between two metal-clad planes, which keeps the two volumes legible as distinct objects even as the house functions as a single dwelling.
Why This Project Matters
The RK Residence is a lesson in restraint applied at every scale. The pavilion-and-courtyard plan is not new, but the rigour with which Seear-Budd Ross execute it, controlling material modules, concealing services, calibrating the sequence from compression to release, lifts the project well above the residential norm. Shortlisted for the 2023 NZIA Local Award, the house demonstrates that vernacular roof forms and locally sourced timber are not constraints to be overcome but resources to be exploited.
More broadly, the project offers a model for suburban coastal living that neither retreats behind fortress walls nor surrenders to the view. It negotiates wind, neighbours, privacy, and prospect through architecture rather than landscaping or setback alone. For a 321-square-metre house on a tight Eastbourne lot, that is a significant achievement, and one that other architects working along New Zealand's urbanising coastlines would do well to study.
RK Residence by Seear-Budd Ross. Located in Eastbourne, Lower Hutt, New Zealand. 321 m². Completed in 2022. Structural engineering by Focus Engineering; construction by RJC Building. Photography by Rory Gardiner.
About the Studio
Share Your Own Work on uni.xyz
If projects like this are the kind of work you want to make, uni.xyz is a place to publish your own, find collaborators, and enter design competitions.
Popular Articles
Popular articles from the community
Free Architecture Competitions You Can Enter Right Now
No entry fees, real prizes. Here are the best free architecture competitions open for submissions in 2026.
Rede Arquitetos Builds an Open-Air School in Fortaleza That Doubles as a Neighborhood Living Room
Educar II SESC-CE folds sports, dance, and community gathering into a courtyard campus wrapped in mesh and tropical color.
Magic Box Office Barcelona Innovative Sustainable Workplace Design
Innovative sustainable office design featuring triangular form, ceramic façade, flexible interiors, natural light optimization, and creative workspace for modern work culture.
20 Most Popular Commercial Architecture Projects of 2025
From sustainable market concepts to heritage factories, the commercial buildings and proposals that drew the most attention on uni.xyz this year.
Similar Reads
You might also enjoy these articles
Filtering Space: A Gradual Spatial Experience
From urban intensity to spatial calm.
The Ken Roberts Memorial Delineation Competition (Krob)
As the most senior architectural drawing competition currently in operation anywhere in the world, it draws hundreds of entries each year, awarding the very best submissions in a series of medium-based categories.
Waterfront Redevelopment and Urban Revitalization in Mumbai: Forging a New Dawn for Darukhana
A transformative waterfront redevelopment project reimagining Darukhana’s shipbreaking heritage into an inclusive urban future.
OUT-OF-MAP: A Call for Postcards on Feminist Narratives of Public Space
Rhizoma Design and Research Lab invites artists, designers, architects, researchers, and students to reflect on how feminist perspectives can reshape public space. Selected works will be exhibited in Barcelona, October 2026. Submissions open until 15 April 2026.
Explore Architecture Competitions
Discover active competitions in this discipline
The International Standard for Design Portfolios
The Global Benchmark for Architecture Dissertation Awards
The Global Benchmark for Graduation Excellence
Challenge to reimagine the Iron Throne
Comments (0)
Please login or sign up to add comments
No comments yet. Be the first to comment!