Rozana Montiel and Alin V. Wallach Collaborate to Revolutionize the Fresnillo Playground Experience!
Are Montiel and Wallach's Innovations Transforming the Fresnillo Playground into a Land of Wonder?

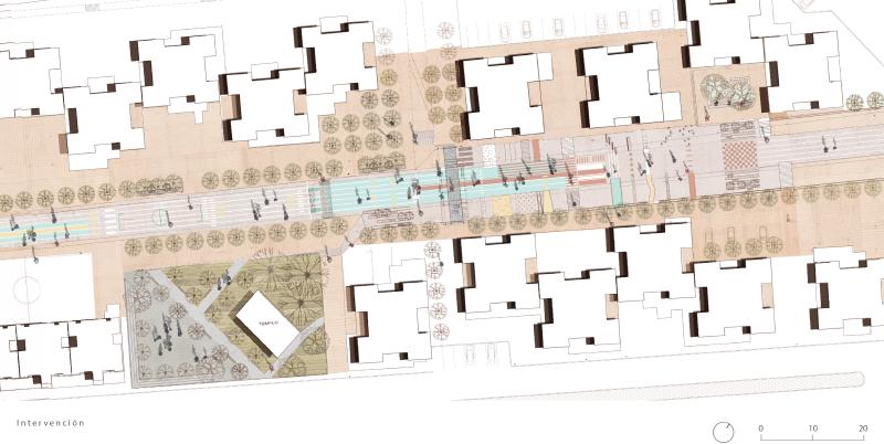
In a remarkable display of architectural innovation and community revitalization, renowned architect Rozana Montiel has spearheaded the transformation of a paved sewage canal into a captivating playground in the heart of Fresnillo, Zacatecas. The visionary project, aptly named Fresnillo Park, has not only breathed new life into the area but has also provided the local community with a safe and inviting recreational space, promoting physical activity and social cohesion.
Situated within the Housing Unit, Fresnillo Park stands as a testament to Montiel's commitment to sustainability and urban renewal. By repurposing existing infrastructure, the architectural team has successfully turned what was once an eyesore into a beautiful oasis that integrates seamlessly into the urban fabric. The result is a transitional space that not only caters to the recreational needs of residents but also serves as an open invitation to explore the wonders of local vegetation.
One of the highlights of the project is the innovative design of universally accessible bridges, strategically placed to create an open esplanade underneath. This thoughtful approach ensures that people of all abilities can enjoy the park's amenities and fosters inclusivity within the community. Additionally, the reconstruction of the canal slopes has yielded a multifunctional environment, featuring inviting resting areas, agora steps, and an exciting playground program boasting engaging climbing walls.
The impact of Fresnillo Park extends beyond its immediate surroundings, positively influencing the overall quality of life in the housing complex. By providing a safe and engaging space for residents to connect and unwind, the project strengthens social bonds, promotes a sense of belonging, and encourages an active and healthy lifestyle. Furthermore, the park's inclusive design philosophy offers opportunities for various groups, particularly those facing challenging circumstances, to benefit from its facilities and support their well-being.
Montiel's groundbreaking vision has successfully transformed an urban scar into an attractive horizon, adding to the beauty and functionality of the cityscape. The Fresnillo Park project serves as an inspiration for architects and urban planners worldwide, showcasing the potential of sustainable design principles to breathe new life into neglected spaces and foster community engagement.
As Fresnillo Park continues to captivate the hearts of locals and visitors alike, it stands as a testament to the power of architecture to shape and improve our surroundings. Through Rozana Montiel's visionary leadership and commitment to sustainability, this revitalized playground has become a beacon of hope and a symbol of transformation for the vibrant community of Fresnillo.


























Architects: Alin V. Wallach , Rozana Montiel | architecture studio
Area: 2260 m²
Year: 2018
Photography: Sandra Pereznieto , Jaime Navarro
Manufacturers: Basaltex , Trimble Navigation
Authors: Rozana Montiel, Alin V. Wallach
Collaborators: Hortense Blanchard, Silvia Mejía, Alejandro Aparicio, Amaranta Guzmán, Ana Sofía Quirós, Caroline Figaro, Ombeline De Laage, Cristobal Pliego
Structure: Structural engineering. Sergio Lopez Guevara.
Project: INFONAVIT
City: Fresnillo
Country: Mexico
Popular Articles
Popular articles from the community
Solar Steam: A Climate-Responsive Architecture That Redefines the Monument
A climate-responsive memorial architecture that transforms heat, decay, and time into a living system reflecting humanity’s ecological impact.
Atelier Macri Concept Store Interior Design by CASE-REAL
Atelier Macri store features a "ko" counter, walnut wood details, cork displays, blending retail, gallery, and seamless customer experiences.
Flamboyant House by Juliana Camargo + Prumo Projetos
Modern Brazilian house integrating existing tree, pool, and volumes with glass, wood, and transitional spaces blending interior, exterior, and landscape seamlessly.
The Ken Roberts Memorial Delineation Competition (Krob)
As the most senior architectural drawing competition currently in operation anywhere in the world, it draws hundreds of entries each year, awarding the very best submissions in a series of medium-based categories.
Similar Reads
You might also enjoy these articles
Zhuxi Wonderland: Reimagining Traditional Chinese Gardens by Doarchi Architects
Zhuxi Wonderland by Doarchi Architects reinterprets traditional Yangzhou gardens, integrating courtyards, pavilions, and tea houses in modern cultural design.
Doble Soga House: A Contemporary Brick Residence Rooted in Landscape in Quito, Ecuador
Brick house in Quito integrating nature, flexible living spaces, exposed materials, and rooftop terrace, creating warm contemporary architecture for modern family life.
Al Gharra Mosque in Medina Redefining Contemporary Islamic Architecture
Minimalist Medina mosque using concrete, light, and landscape to reinterpret Islamic worship spaces through symbolic spiritual transitions and contemporary architecture.
Viczonecode Villa by DDconcept – Tropical Family Living in Ho Chi Minh City
Tropical family villa in Ho Chi Minh City featuring courtyards, skylights, natural ventilation, elevated flooring, and seamless indoor–outdoor living surrounded by greenery.
Explore Architecture Competitions
Discover active competitions in this discipline
The International Standard for Design Portfolios
The Global Benchmark for Architecture Dissertation Awards
The Global Benchmark for Graduation Excellence
Challenge to reimagine the Iron Throne
Comments (0)
Please login or sign up to add comments
No comments yet. Be the first to comment!