SAB Office Building by Sergei Tchoban: A Modern Masterpiece in Berlin Architecture
The SAB Office Building blends Berlin’s industrial history with innovative design, creating a dynamic and sustainable modern workspace.
The SAB Office Building, designed by Sergei Tchoban and completed in 2024, is a striking addition to Berlin's Prenzlauer Berg district. Situated on Saarbruecker Strasse, this architectural marvel combines historical reverence with contemporary innovation. With a total area of 6,150 square meters, the building integrates seamlessly into the historic Koenigstadt Brewery site while setting a new benchmark in modern office design.




A Historical Context
The SAB Office Building occupies a prominent corner of a site steeped in history. Originally the location of Berlin's largest brewery, the Koenigstadt Brewery dates back to 1849 and includes six listed industrial buildings. The brewery, once renowned for its beer production, ceased operations nearly a century ago. Today, the area thrives as a vibrant hub for media companies, startups, restaurants, and neighborhood initiatives.


Adjacent to the SAB Office Building is the former brewery warehouse, built in 1872, and the old vaulted beer cellar. These historical elements have been meticulously preserved and sensitively incorporated into the new design, bridging the past and present in a compelling narrative.

Architectural Concept
The Design Philosophy
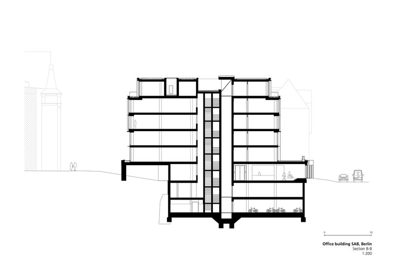
The SAB Office Building employs a reinforced concrete skeleton structure with five upper floors and two basement levels. The building's base, clad in clinker brick with a wild bond pattern, echoes the materiality and colors of the surrounding industrial architecture. Above the plinth, the upper storeys are rotated approximately 15 degrees, creating a dynamic visual contrast while offering views of the historical brewery buildings.

This rotation not only imparts a sense of lightness to the structure but also establishes new visual axes that enhance the relationship between old and new. The façade features floor-to-ceiling, sawtooth-like windows framed in dark aluminum. These windows reflect the historical surroundings, creating an interplay of reflections that harmonize the building with its historical context.


Integration of Green and Open Spaces
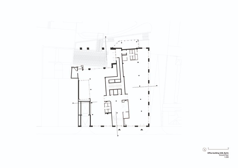
The design embraces sustainable principles with a green roof that serves both functional and aesthetic purposes. The roof also conceals technical structures, ensuring unobstructed views from neighboring buildings. The ground floor incorporates a Japanese garden, while the upwardly sloping site allows for creative use of outdoor spaces.


An open courtyard, partially overhung by upper storeys, reveals the preserved vaulted beer cellar, reminiscent of a historical ruin. Adjacent to this area, ground-floor conference rooms provide views of the unique outdoor setting. A second, recessed courtyard adjacent to Saarbruecker Strasse ensures natural light permeates meeting rooms located within the plinth.


Functionality and Flexibility
The SAB Office Building offers flexible office space for up to 400 workstations, accommodating both single and multi-tenant configurations. The ground floor features a state-of-the-art conference center with a central foyer, while the basement levels provide ample facilities for cyclists, including parking, sanitary spaces, and e-charging stations. Car parking and storage facilities further enhance the building's functionality, meeting the demands of modern urban life.



Blending Heritage with Innovation
One of the most striking aspects of the SAB Office Building is its ability to honor its historical surroundings while embracing modernity. The twisting façade and rotated volumes create a sense of movement and lightness, ensuring the building integrates seamlessly into its historical setting without overshadowing its neighbors.



The preserved elements, such as the vaulted beer cellar, serve as a tangible connection to the site's past, while the innovative design ensures the building remains firmly rooted in the present. This balance of old and new is a testament to Sergei Tchoban's mastery as an architect, demonstrating how history and innovation can coexist harmoniously.




The SAB Office Building by Sergei Tchoban is a remarkable example of contemporary architecture that respects and revitalizes historical contexts. By blending sustainable practices, innovative design, and historical preservation, the building stands as a symbol of Berlin’s architectural evolution. It not only caters to the functional needs of modern workplaces but also enriches the cityscape, proving that architecture can honor history while embracing the future.




All Photographs are work of HG Esch
Popular Articles
Popular articles from the community
An Miên Lumière Cafe by xưởng xép, Ho Chi Minh City, Vietnam
An industrial-inspired café where layered steel and warm light create a dynamic, immersive environment shaped by reflection, depth, and perception.
Inverted Architecture Installation by Studio Link-Arc: Exploring the Intersection of Architecture and Living Organisms
Inverted Architecture Installation by Studio Link-Arc blends mycelium, sustainability, inverted design, ecological cycles, and urban adaptive architecture in Shenzhen.
Louis Malle Cinema: A Limestone Cultural Landmark Revitalizing Community Life in Prayssac
Limestone cinema extension with public forecourt, blending heritage and modern design to create flexible cultural spaces and strengthen community interaction.
A Contemporary Take on Iranian Residential Architecture
A modern interior design in Mashhad that reinterprets brick, light, and spatial flow to create a warm, contemporary residential architecture.
Similar Reads
You might also enjoy these articles
The Ken Roberts Memorial Delineation Competition (Krob)
As the most senior architectural drawing competition currently in operation anywhere in the world, it draws hundreds of entries each year, awarding the very best submissions in a series of medium-based categories.
Waterfront Redevelopment and Urban Revitalization in Mumbai: Forging a New Dawn for Darukhana
A transformative waterfront redevelopment project reimagining Darukhana’s shipbreaking heritage into an inclusive urban future.
OUT-OF-MAP: A Call for Postcards on Feminist Narratives of Public Space
Rhizoma Design and Research Lab invites artists, designers, architects, researchers, and students to reflect on how feminist perspectives can reshape public space. Selected works will be exhibited in Barcelona, October 2026. Submissions open until 15 April 2026.
Documentation Work on Buddhist Wooden Temple
Architectural syncretism and cultural hybridity: A comparative study of the Buddhist temples in Chattogram Hill tracks
Explore Architecture Competitions
Discover active competitions in this discipline
The International Standard for Design Portfolios
The Global Benchmark for Architecture Dissertation Awards
The Global Benchmark for Graduation Excellence
Challenge to reimagine the Iron Throne
Comments (0)
Please login or sign up to add comments
No comments yet. Be the first to comment!