SAFRA Choa Chu Kang Clubhouse: A Paradigm of Sustainable and Recreational Architecture
Exploring SAFRA Choa Chu Kang Clubhouse by DP Architects: a sustainable, recreational hub blending architecture with nature for community wellness in Singapore.
The SAFRA Choa Chu Kang Clubhouse, designed by DP Architects Pte Ltd, emerges as a beacon of sustainable and recreational architecture in Singapore. Nestled within a verdant park, this 19,700 m² facility serves as a communal hub for National Servicemen and their families, offering a myriad of fitness and wellness activities. This article, crafted in the style of Hugh Pearman, delves into the architectural ingenuity of the clubhouse, its sustainable ethos, and the synergetic relationship it fosters between nature, architecture, and community.



Introduction to SAFRA Choa Chu Kang Clubhouse
At the heart of a bustling neighborhood lies the SAFRA Choa Chu Kang (CCK) Clubhouse, a testament to DP Architects' visionary approach. The project, led by Ng San Son, epitomizes the fusion of dynamic community space with the tranquility of nature, all while showcasing an architectural language that speaks volumes of unity and strength through its bold forms and materiality.


Architectural Philosophy: Interweaving Nature with Community
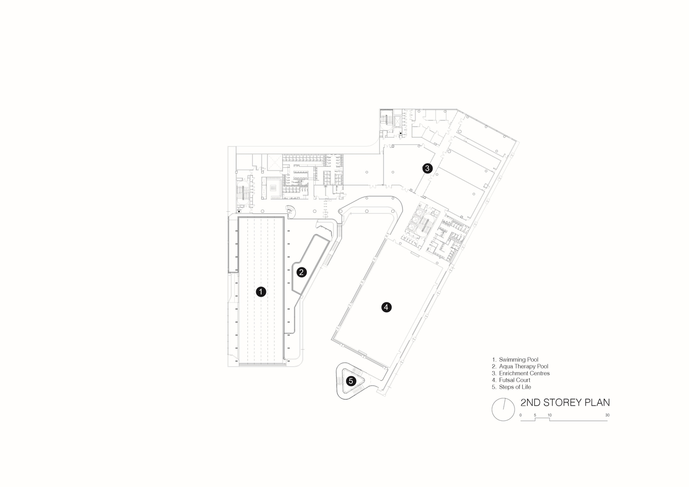
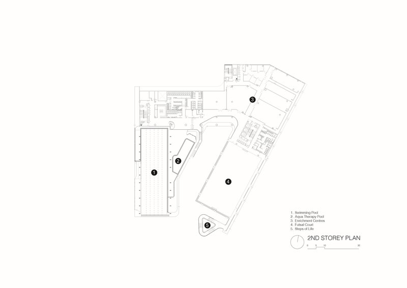
The clubhouse is ingeniously integrated into its park setting, employing a design philosophy that accentuates openness and fluidity. The use of porous public spaces and strategic orientation invites the external greenery into the architectural domain, creating a central courtyard that acts as a lung for the structure. Elevated swimming pools and the 'Steps of Life' staircase further blur the lines between the built environment and the natural, offering unique experiences of connectivity and vertical mobility.






Sustainable Practices: Towards a Greener Future
The SAFRA CCK Clubhouse is a model of environmental stewardship, incorporating passive and active design strategies to minimize its ecological footprint. High-efficiency systems, smart irrigation, photovoltaic panels, and the use of green concrete and recycled steel underline the project's commitment to sustainability. The achievement of the Green Mark Platinum – Super Low Energy certification underscores its role as a pioneer in green building practices in Singapore.
The Role of SAFRA Choa Chu Kang Clubhouse in the Community
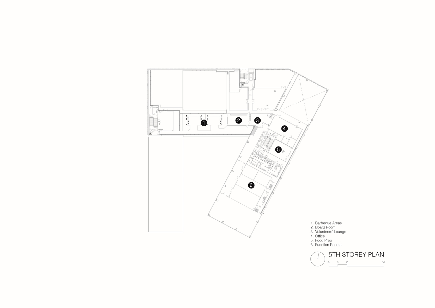
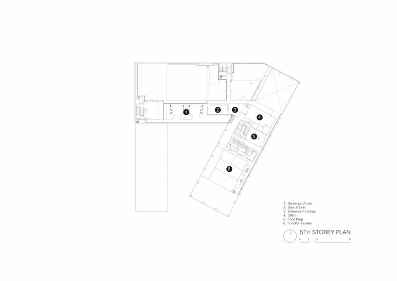
More than just a recreational facility, the SAFRA CCK Clubhouse is a catalyst for community engagement and well-being. Its design fosters a sense of belonging and encourages active lifestyles among its users. The seamless integration of fitness and wellness facilities with the surrounding parkland enhances the clubhouse's appeal as a communal anchor, invigorating the neighborhood and reinforcing the community spirit.






The SAFRA Choa Chu Kang Clubhouse by DP Architects stands as a shining example of how architecture can harmonize with nature to create spaces that are not only functional but also inspirational. Through its sustainable design, the clubhouse sets a benchmark for future developments, proving that architectural excellence and environmental responsibility can go hand in hand to serve the community in meaningful ways.





All the photographs are work of DP Architects
Popular Articles
Popular articles from the community
Solar Steam: A Climate-Responsive Architecture That Redefines the Monument
A climate-responsive memorial architecture that transforms heat, decay, and time into a living system reflecting humanity’s ecological impact.
An Miên Lumière Cafe by xưởng xép, Ho Chi Minh City, Vietnam
An industrial-inspired café where layered steel and warm light create a dynamic, immersive environment shaped by reflection, depth, and perception.
Treehouse Apartment: A Warm Timber Interior Blending Craft, Play, and Contemporary Living
Warm timber apartment with integrated treehouse, combining natural materials, craftsmanship, and playful design to create a flexible, family-oriented living environment.
On the Brooks House by Monsoon Collective – A Contemporary Kerala Home Rooted in Tradition
Kerala home blending tradition and modernity with water-inspired design, brick architecture, courtyard planning, and sustainable rainwater harvesting strategies.
Similar Reads
You might also enjoy these articles
The Ken Roberts Memorial Delineation Competition (Krob)
As the most senior architectural drawing competition currently in operation anywhere in the world, it draws hundreds of entries each year, awarding the very best submissions in a series of medium-based categories.
Waterfront Redevelopment and Urban Revitalization in Mumbai: Forging a New Dawn for Darukhana
A transformative waterfront redevelopment project reimagining Darukhana’s shipbreaking heritage into an inclusive urban future.
OUT-OF-MAP: A Call for Postcards on Feminist Narratives of Public Space
Rhizoma Design and Research Lab invites artists, designers, architects, researchers, and students to reflect on how feminist perspectives can reshape public space. Selected works will be exhibited in Barcelona, October 2026. Submissions open until 15 April 2026.
Documentation Work on Buddhist Wooden Temple
Architectural syncretism and cultural hybridity: A comparative study of the Buddhist temples in Chattogram Hill tracks
Explore Architecture Competitions
Discover active competitions in this discipline
The International Standard for Design Portfolios
The Global Benchmark for Architecture Dissertation Awards
The Global Benchmark for Graduation Excellence
Challenge to reimagine the Iron Throne
Comments (0)
Please login or sign up to add comments
No comments yet. Be the first to comment!