Sahy House: A Sustainable Tropical Retreat by H2C Arquitetura
Sahy House by H2C Arquitetura merges modern tropical living with sustainability, embracing Brazil’s Atlantic forest and its ecosystem.
Embracing Nature in Architectural Design
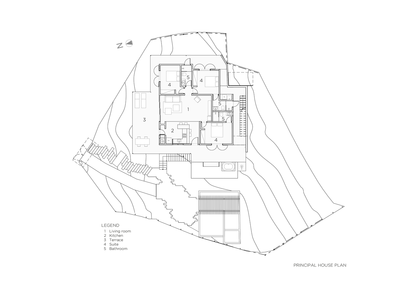
Sahy House by H2C Arquitetura redefines sustainable tropical house design, seamlessly blending modern living with the lush Atlantic forest of Praia Barra do Sahy, Brazil. Designed by lead architect Helena Camargo, the 200 m² residence harmoniously integrates with its uneven terrain, endemic vegetation, and breathtaking coastal views.



Site Challenges and Design Solutions
Uneven Terrain and Structural Ingenuity
The site’s uneven landscape required innovative solutions. Wooden tree pillars were employed for structural stability, ensuring minimal environmental impact and enhancing the connection between the house and its surroundings.



Preservation of Existing Structures
An old house on the property informed the design process. Its masonry and foundations served as the backbone for the new structure, highlighting a sustainable reuse approach.

Indoor-Outdoor Harmony
The Encircling Terrace
A terrace envelops the main house, blurring boundaries between indoor and outdoor spaces. This transitional space immerses residents in the natural beauty of the Atlantic forest, creating a serene connection to the environment.


The Tiny House Concept
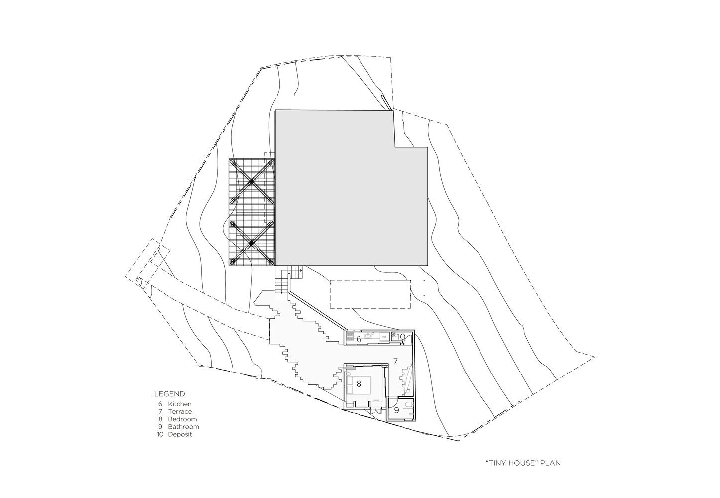
An annex volume, dubbed the "tiny house," complements the main residence. This minimal living unit exemplifies spatial efficiency and enhances the fragmentation principle, where distinct spaces contribute to a unified whole.



Biophilic Design and Landscaping
Preserving Endemic Flora
Sahy House prioritizes the preservation of native species, including cacao, carambola, jabuticaba, and banana trees. These trees enrich the local ecosystem and attract diverse birdlife, emphasizing biodiversity.


Integrating Natural Light and Ventilation
The design allows generous natural lighting and ventilation, reducing energy use while offering expansive sea views. Open spaces further enhance the tropical aesthetic, merging the house with the Atlantic forest.

Sustainable Features and Community Impact
Eco-Conscious Construction
The use of locally sourced materials, minimal land disruption, and energy-efficient ventilation underscores the house's sustainable ethos.

A Model for Future Tropical Residences
Sahy House serves as a blueprint for sustainable tropical architecture, promoting harmony with nature while offering modern comforts.

A Testament to Sustainable Design
Sahy House by H2C Arquitetura exemplifies how thoughtful architecture can embrace and enhance its natural environment. Through innovative design and a commitment to sustainability, the residence reflects a deep respect for the Atlantic forest and a vision for future tropical homes.




All the photographs are work of Helena Camargo