Samsen Street Hotel - A Bangkok, Thailand Hotel by Chat Architects
Samsen Street Hotel is a stylish and modern hotel located in Bangkok, Thailand. The hotel is situated in a prime location for exploring the city and guests can enjoy views of the city from the rooftop
The Samsen Street Hotel, created by Chat Architects in Bangkok, has been shortlisted for the AR New into Old awards 2021. Located in Thailand's capital city, a popular tourist destination known for its iconic temples, shrines, waterfront, and vibrant street food and nightlife, the hotel was formerly a sex motel. Chat Architects transformed the space into a new hotel, showcasing the ingenuity and resourcefulness of the local informal economy. Despite facing challenges such as government efforts to sanitize the streets and cultural taboos, the temporary construction workers' houses and introverted architecture found in the city's red-light district are a testament to the resilience and creativity of the city's residents.
Local architect Chatpong Chuenrudeemol has been studying non-traditional vernaculars, including those found in South-East Asia, as part of his research project titled "Bangkok Bastards," which focuses on local architecture that lacks a clear historical lineage. Since 2013, Chuenrudeemol has been collecting and analyzing data on these types of architecture. His studio, Chat Architects, recently used this extensive knowledge of local architecture and subcultures in a project where they transformed a previously dark and discreet sex motel in Bangkok's Samsen Red Light District into an outgoing hotel that borrows heavily from the informal architectural styles of South-East Asia.
‘Bangkok’s residents see a different city, created by the hands of locals and often without the aid of architects’
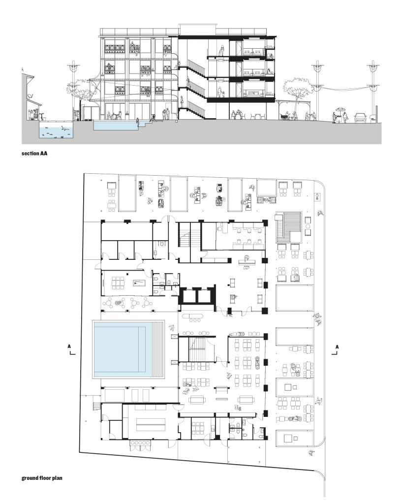
The design of the hotel was inspired by a combination of various elements, including a sex motel, cantilevered steel elements similar to those found in housing for construction workers, and a street food market. These elements were brought together in what the designer, Chuenrudeemol, describes as a "perfect storm" to create a unique and lively facade for the hotel. The addition of green "scaffolding" components serves to enhance and invert the original, plain concrete facade. The northwest veranda also adds to the liveliness of the street by providing a space for special performances. Overall, the hotel's design incorporates various aspects of Bangkok culture, including its street life and food scene, to create a memorable and engaging experience for guests.
The courtyard model's four-story concrete structure remains unchanged, with only slight modifications such as polishing, plastering, or painting. However, new metal elements in a pale pastel green colour have been added to all sides of the building. These additions include extra bed spaces, balconies, seats, balustrades, services and pipework, access stairs, signage, and shading to meet the project's requirements. The pastel green colour would fit in seamlessly with the aesthetic of 1930s Miami.
The ground level of the hotel features a 6m setback from the site boundary which is filled with a veranda. This veranda is home to various street food vendors, creating a lively atmosphere filled with smells, sights, and noise. The veranda also includes pastel green mobile street furniture, providing a constantly changing space for locals and guests to eat, drink, meet, and chat. A wide path runs through the veranda, leading to the old drive-thru entrance and maintaining the spatial sequences and theatrical elements of the hotel's previous use.
However, this entrance now leads to the central hotel lobby which provides access to the restaurant and games room on either side or to the communal courtyard beyond. The courtyard, which used to be a curtained car park for secretive motel guests, is now an open lounge lined with hanging balconies where guests can swim in the pool or attend large cinema screenings. The addition of scaffolding components in the courtyard makes the architecture more social and lively, unlike its previous private nature.
Samsen Street Hotel is a testament to the passion that Chat Architects have for past architectures and traditions. While the company does not have a specific mantra, manifesto, or ethos regarding sustainability and reuse, it is clear that this is a priority for them as many of their recent projects have involved the reuse of buildings. It is not by coincidence that this has become a common theme in their work, but rather a result of their dedication to preserving the past while also being mindful of the environment.
References (2)
Popular Articles
Popular articles from the community
An Miên Lumière Cafe by xưởng xép, Ho Chi Minh City, Vietnam
An industrial-inspired café where layered steel and warm light create a dynamic, immersive environment shaped by reflection, depth, and perception.
The Ken Roberts Memorial Delineation Competition (Krob)
As the most senior architectural drawing competition currently in operation anywhere in the world, it draws hundreds of entries each year, awarding the very best submissions in a series of medium-based categories.
Louis Malle Cinema: A Limestone Cultural Landmark Revitalizing Community Life in Prayssac
Limestone cinema extension with public forecourt, blending heritage and modern design to create flexible cultural spaces and strengthen community interaction.
Inverted Architecture Installation by Studio Link-Arc: Exploring the Intersection of Architecture and Living Organisms
Inverted Architecture Installation by Studio Link-Arc blends mycelium, sustainability, inverted design, ecological cycles, and urban adaptive architecture in Shenzhen.
Similar Reads
You might also enjoy these articles
The Ken Roberts Memorial Delineation Competition (Krob)
As the most senior architectural drawing competition currently in operation anywhere in the world, it draws hundreds of entries each year, awarding the very best submissions in a series of medium-based categories.
A Contemporary Take on Iranian Residential Architecture
A modern interior design in Mashhad that reinterprets brick, light, and spatial flow to create a warm, contemporary residential architecture.
Franche-Comté Advanced School of Engineering by Dominique Coulon & associés, Besançon
A flexible engineering school immersed in woodland, combining concrete minimalism, adaptable spaces, and natural light to support evolving educational environments.
Waterfront Redevelopment and Urban Revitalization in Mumbai: Forging a New Dawn for Darukhana
A transformative waterfront redevelopment project reimagining Darukhana’s shipbreaking heritage into an inclusive urban future.
Explore Architecture Competitions
Discover active competitions in this discipline
The International Standard for Design Portfolios
The Global Benchmark for Architecture Dissertation Awards
The Global Benchmark for Graduation Excellence
Challenge to reimagine the Iron Throne















Comments (0)
Please login or sign up to add comments
No comments yet. Be the first to comment!