Schafbergbahn Station: A Modern Marvel by Dunkelschwarz
A comprehensive look at the modern redesign of Austria's historic Schafbergbahn Station by dunkelschwarz, blending functionality with architectural innovation.
In the picturesque town of Saint Wolfgang im Salzkammergut, Austria, a remarkable blend of history and modernity stands in the form of the newly redesigned Schafbergbahn Station. Designed by the architectural firm dunkelschwarz and completed in April 2023, this station serves as the valley station for Austria's steepest steam rack railway, originally established in 1893. This article delves into the architectural nuances, design philosophy, and the multidisciplinary collaboration that brought this iconic project to life.

Historical Context and Need for Renovation
The Schafbergbahn railway, a critical piece of Austria's transportation heritage, has ferried tourists from the valley to the summit of the Schafberg for over a century. However, the aging valley station, unable to meet contemporary demands, necessitated a comprehensive overhaul. The renovation project, initiated through an EU-wide competition in 2019, saw participation from 54 architectural firms, with dunkelschwarz emerging victorious.

Architectural Design and Structure
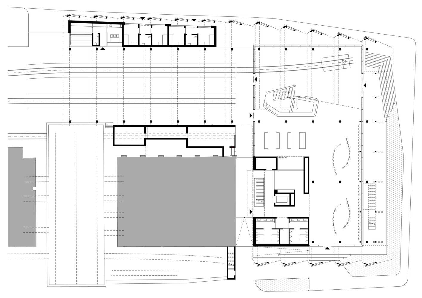
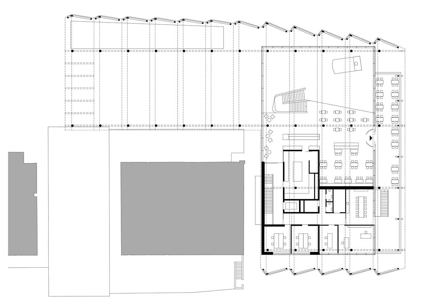
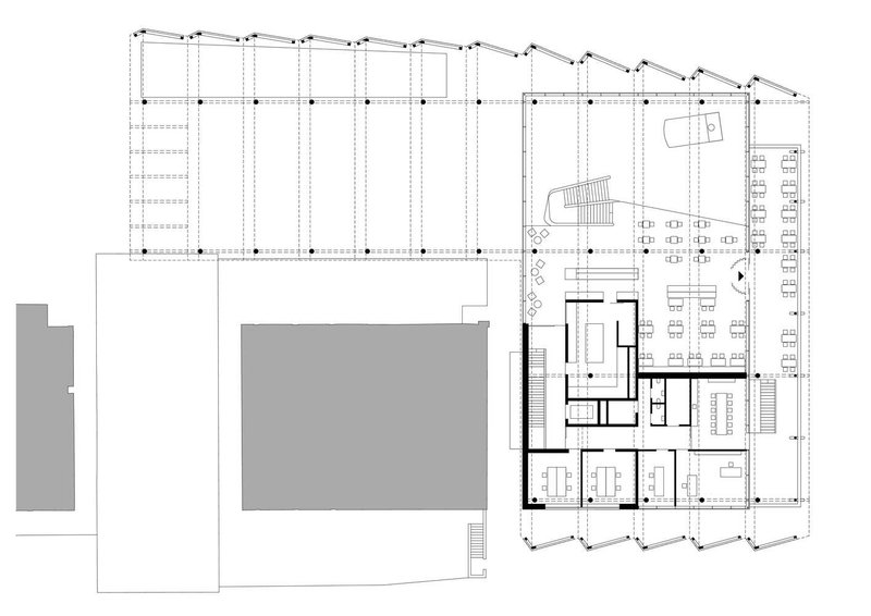
Site and Layout
Located at the foot of Schafberg and on the shores of Lake Wolfgang, the Schafbergbahn Station features a two-story main building and a single-story outbuilding. These structures, along with existing workshop buildings, form a courtyard-like enclosure around the station area. A distinctive shed roof unites the new buildings, extending over the platform and creating a cohesive spatial experience.

Exterior Design
The station's exterior is characterized by a folded roof design, which extends vertically to form a second façade level. This architectural choice not only provides a unique aesthetic but also harmonizes the building's scale with the surrounding small-scale structures. The design motif of folding structures introduces a visual rhythm that engages with the scenic landscape.


Interior Spaces and Functionality
Public Areas
The interior of the main building is a testament to open-plan design, featuring an entrance hall with ticketing facilities, an exhibition space, a shop, a restaurant, and an event area. Extensive glazing in both the facades and the shed roof blurs the boundaries between the indoors and the breathtaking natural surroundings, establishing a continuous visual dialogue with Lake Wolfgang and the Schafberg.



Material Palette
Wood and steel dominate the material palette, striking a balance between the industrial and the organic. The use of wood softens the industrial aesthetic, creating a warm and inviting atmosphere for visitors. This combination of materials reflects the dual nature of the station as both a functional transportation hub and a welcoming tourist destination.


Engineering and Technical Aspects
The station's construction involved several specialized engineering disciplines:
- Structural Engineering: Handled by BAUINGENIEURE | LACKNER | EGGER | ZT GMBH, ensuring the stability and durability of the innovative roof design and other structural elements.
- Building Physics: Managed by Bauphysik-Team, Zwittlinger & Staffl Engineering OG, focusing on the thermal performance and acoustic properties of the building.
- Electrical Engineering: Executed by Pürcher Planungs GmbH, integrating modern electrical systems to support both operational efficiency and visitor comfort.
- HVAC Consultants: Karres Technisches Büro Ges.m.b.H provided solutions for heating, ventilation, and air conditioning, ensuring a comfortable indoor environment throughout the year.
- Lighting Design: By LICHT ART GmbH, which created a lighting scheme that enhances both functionality and the architectural aesthetics of the station.

Sustainable and Environmental Considerations
The redesign of the Schafbergbahn Station places significant emphasis on sustainability. The choice of materials, such as locally sourced wood, and the integration of energy-efficient systems reflect a commitment to environmental responsibility. The design not only respects but also enhances the natural beauty of its location, minimizing its ecological footprint.


The Schafbergbahn Station by dunkelschwarz is a stellar example of how contemporary architecture can honor historical heritage while addressing modern needs. This project successfully marries functionality with aesthetic appeal, creating a space that is both a transportation hub and a tourist attraction. The station's thoughtful design and meticulous engineering make it a landmark that will serve the region for years to come, continuing the legacy of the Schafbergbahn railway in a new era.



By preserving the historical essence and integrating modern elements, the Schafbergbahn Station stands as a testament to innovative architectural practice and multidisciplinary collaboration. It is a project that not only meets but exceeds the expectations of a modern tourist facility, set against the stunning backdrop of the Austrian Alps and Lake Wolfgang.


All Photographs are the work of Albrecht Imanuel Schnabel
Popular Articles
Popular articles from the community
Atelier Macri Concept Store Interior Design by CASE-REAL
Atelier Macri store features a "ko" counter, walnut wood details, cork displays, blending retail, gallery, and seamless customer experiences.
Louis Malle Cinema: A Limestone Cultural Landmark Revitalizing Community Life in Prayssac
Limestone cinema extension with public forecourt, blending heritage and modern design to create flexible cultural spaces and strengthen community interaction.
Inverted Architecture Installation by Studio Link-Arc: Exploring the Intersection of Architecture and Living Organisms
Inverted Architecture Installation by Studio Link-Arc blends mycelium, sustainability, inverted design, ecological cycles, and urban adaptive architecture in Shenzhen.
On the Brooks House by Monsoon Collective – A Contemporary Kerala Home Rooted in Tradition
Kerala home blending tradition and modernity with water-inspired design, brick architecture, courtyard planning, and sustainable rainwater harvesting strategies.
Similar Reads
You might also enjoy these articles
The Ken Roberts Memorial Delineation Competition (Krob)
As the most senior architectural drawing competition currently in operation anywhere in the world, it draws hundreds of entries each year, awarding the very best submissions in a series of medium-based categories.
A Contemporary Take on Iranian Residential Architecture
A modern interior design in Mashhad that reinterprets brick, light, and spatial flow to create a warm, contemporary residential architecture.
Franche-Comté Advanced School of Engineering by Dominique Coulon & associés, Besançon
A flexible engineering school immersed in woodland, combining concrete minimalism, adaptable spaces, and natural light to support evolving educational environments.
Waterfront Redevelopment and Urban Revitalization in Mumbai: Forging a New Dawn for Darukhana
A transformative waterfront redevelopment project reimagining Darukhana’s shipbreaking heritage into an inclusive urban future.
Comments (0)
Please login or sign up to add comments
No comments yet. Be the first to comment!