School Davos Transformation: A Landmark in Sustainable School Renovation by CURA Architekten
School Davos by CURA Architekten exemplifies sustainable school renovation, combining ecological materials, adaptive reuse, and modern educational spaces.
Introduction to Sustainable School Renovation
The transformation of the School Davos complex by CURA Architekten exemplifies a pioneering approach to sustainable school renovation. Situated in Davos Platz, Switzerland, the project redefines the potential of existing educational structures by combining ecological construction techniques with a modern educational environment. This renovation showcases how adaptive reuse can meet contemporary needs while reducing environmental impact.



Context and Motivation Behind the Renovation
The School Davos complex was originally built in the 1960s and required substantial upgrades to accommodate a growing demand for daycare facilities, administrative offices, classrooms, a cafeteria, and an assembly hall. Initially, plans were made to demolish the outdated structure and replace it with a new building. However, CURA Architekten proposed a more sustainable school renovation approach that preserved the embodied energy of the existing building.

The final design integrated the old structure with modern extensions, significantly reducing demolition waste and minimizing the environmental footprint. This approach aligns with the global shift towards sustainable architecture, emphasizing reuse over demolition.

Architectural Approach and Structural Integration
The sustainable school renovation centered on retaining the core of the 1960s building while enveloping it with a new external structure. This hybrid solution allowed the architects to expand the building’s capacity while improving its thermal performance and modernizing its visual identity.


A third story was added on top of the original structure, supported by lateral timber extensions. This innovative structural system ensured that no additional load was imposed on the existing concrete framework. The extensions were constructed using a prefabricated timber grid, aligned with the original building’s wall axes, reflecting precision engineering in sustainable school renovation.


Externally, the newly added shell conceals the old structure, giving the appearance of a completely new building. However, 40% of the final volume consists of the original building, emphasizing the project’s commitment to material conservation and environmental responsibility.


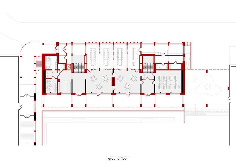
Interior Spatial Reorganization
The interior layout of the transformed school reflects a forward-thinking approach to educational architecture. The ground floor, designed as a public space, is oriented toward a covered schoolyard. Above, classrooms and administrative offices are arranged around a central atrium, creating a dynamic and interactive environment.


The atrium serves as a social hub, fostering communication and collaboration among students and staff. A circular corridor system allows fluid movement throughout the building, encouraging exploration and informal interactions. The extension towards the schoolyard repositions the classrooms away from the building’s core, enhancing both natural lighting and ventilation.


Material Selection and Ecological Considerations
The sustainable school renovation prioritized the use of regional and renewable materials. All new construction elements were made from timber, transforming the building into a long-term CO2 storage solution. The existing concrete structure provided thermal mass, stabilizing indoor temperatures and reducing heating requirements.

Massive wooden ceilings with sheep’s wool acoustic panels contribute to a warm and inviting atmosphere, while cork flooring enhances both comfort and sustainability. These material choices exemplify the synergy between old and new, creating a tactile and visually harmonious learning environment.

Natural Ventilation and Low-Tech Solutions
The design philosophy embraced low-tech solutions to ensure energy efficiency without relying heavily on mechanical systems. Cross-ventilation is achieved through operable windows connecting classrooms to both the exterior and the central atrium. This nine-meter-high atrium functions as a natural chimney, expelling warm air and promoting air circulation.

A roof garden further enhances the building’s ecological performance, while a geothermal heating system and photovoltaic (PV) modules ensure that the school operates with minimal reliance on non-renewable energy sources. This combination of passive ventilation, renewable energy, and thermal mass exemplifies the principles of sustainable school renovation.

Educational Value of Architectural Transparency
A unique aspect of the School Davos renovation is its educational approach to architecture. CURA Architekten deliberately maintained a visual distinction between the original concrete structure and the new timber additions. This transparency allows students to observe the evolution of their learning environment, fostering an appreciation for sustainable construction practices.

The contrast between raw concrete and warm timber surfaces serves as a daily reminder of the building’s history and the transformative power of sustainable design. This educational dimension aligns with the broader goal of raising environmental awareness among future generations.

Energy Efficiency and Long-Term Sustainability
The sustainable school renovation ensured that the building’s energy demands were minimized through intelligent design choices. The geothermal heating system harnesses the earth’s natural energy, while the PV modules contribute to renewable electricity generation. Combined with the passive cooling and ventilation strategies, the school operates as an energy-efficient educational facility.



This holistic approach to energy performance not only reduces operational costs but also aligns with Switzerland’s broader commitment to environmental sustainability. The School Davos renovation sets a benchmark for future educational projects seeking to balance functionality, aesthetics, and ecological responsibility.



The transformation of School Davos by CURA Architekten stands as an exemplary model of sustainable school renovation. By integrating an existing 1960s structure with modern timber extensions, the project demonstrates that educational facilities can be revitalized without resorting to demolition. The thoughtful selection of renewable materials, coupled with innovative ventilation and energy systems, showcases how architecture can foster both environmental stewardship and educational enrichment.


This renovation is more than a structural upgrade; it is a statement on the future of school design. It challenges the perception that new construction is the only path to progress, proving that sustainable school renovation can breathe new life into aging buildings while shaping the next generation’s understanding of ecological responsibility.



All Photographs are works of Daisuke Hirabayashi
Popular Articles
Popular articles from the community
Solar Steam: A Climate-Responsive Architecture That Redefines the Monument
A climate-responsive memorial architecture that transforms heat, decay, and time into a living system reflecting humanity’s ecological impact.
Louis Malle Cinema: A Limestone Cultural Landmark Revitalizing Community Life in Prayssac
Limestone cinema extension with public forecourt, blending heritage and modern design to create flexible cultural spaces and strengthen community interaction.
Inverted Architecture Installation by Studio Link-Arc: Exploring the Intersection of Architecture and Living Organisms
Inverted Architecture Installation by Studio Link-Arc blends mycelium, sustainability, inverted design, ecological cycles, and urban adaptive architecture in Shenzhen.
Atelier Macri Concept Store Interior Design by CASE-REAL
Atelier Macri store features a "ko" counter, walnut wood details, cork displays, blending retail, gallery, and seamless customer experiences.
Similar Reads
You might also enjoy these articles
The Ken Roberts Memorial Delineation Competition (Krob)
As the most senior architectural drawing competition currently in operation anywhere in the world, it draws hundreds of entries each year, awarding the very best submissions in a series of medium-based categories.
Waterfront Redevelopment and Urban Revitalization in Mumbai: Forging a New Dawn for Darukhana
A transformative waterfront redevelopment project reimagining Darukhana’s shipbreaking heritage into an inclusive urban future.
OUT-OF-MAP: A Call for Postcards on Feminist Narratives of Public Space
Rhizoma Design and Research Lab invites artists, designers, architects, researchers, and students to reflect on how feminist perspectives can reshape public space. Selected works will be exhibited in Barcelona, October 2026. Submissions open until 15 April 2026.
Documentation Work on Buddhist Wooden Temple
Architectural syncretism and cultural hybridity: A comparative study of the Buddhist temples in Chattogram Hill tracks
Explore Architecture Competitions
Discover active competitions in this discipline
The International Standard for Design Portfolios
The Global Benchmark for Architecture Dissertation Awards
The Global Benchmark for Graduation Excellence
Challenge to reimagine the Iron Throne
Comments (0)
Please login or sign up to add comments
No comments yet. Be the first to comment!