Sculpting Spaces: Exploring the Maruhon Makiart Terrace by Sou Fujimoto Architects
Can Architecture and Art Coexist? Unveiling the Maruhon Makiart Terrace by Sou Fujimoto Architects

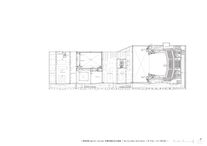
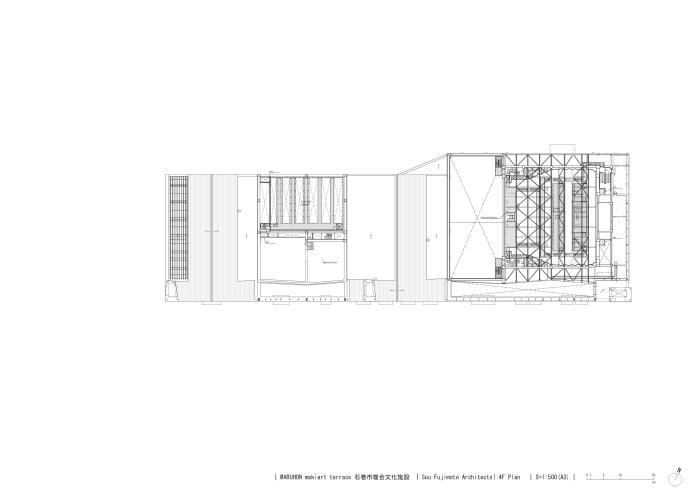
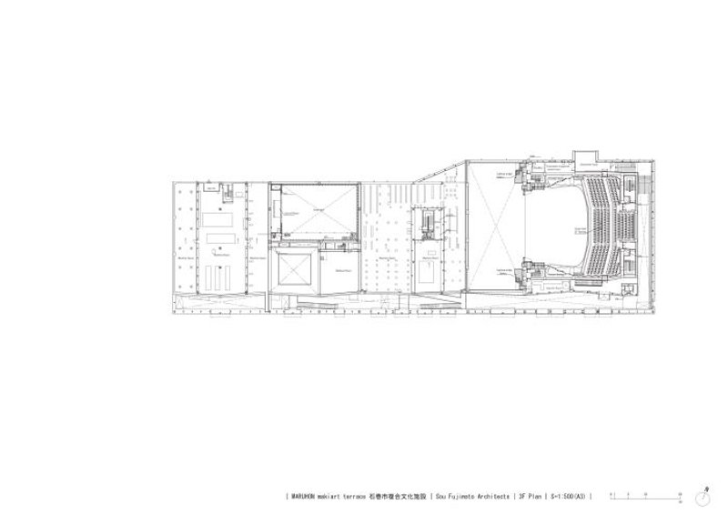
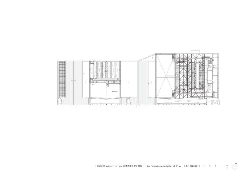
On March 11, 2011, the Great East Japan Earthquake and tsunami caused the Ishinomaki Civic Center and Ishinomaki Cultural Center to be demolished. In 2016, a design proposal was announced with the aim of reviving these functions and creating a complex cultural facility that would symbolize Ishinomaki City's recovery. This program included a large hall with 1254 seats, a small hall with 300 seats, an exhibition area, a public gallery, and a learning space. The plan configuration arranges the programs linearly along a slender lobby of about 170 m in length. The linear arrangement is segmented through the gable-roof forms and rectangular parallelepipeds to create a series of town-like spaces. Functions that are highly used by citizens, such as practice studios and ateliers, are placed in a way that protrudes into the lobby space, creating interlocking effects of various scales.
We carefully adjusted the entire space, including the selection and placement of furniture, as well as the density of signs and lighting fixtures, to create a comfortable place for citizens to study, chat, and read. To bring in light and allow for smoke exhaust, we placed small house-shaped and chimney-shaped volumes on the roof of the 13,000-square-meter building with a 30-meter fly tower. This combination of shapes gives the building a strong identity, while also evoking various impressions and meanings. We hope that the building will not be a landmark that imposes a single effect, but something that is flexible enough to allow various people to share their own impressions. The landscape of rows of house-shaped volumes pays homage to the buildings that lined the former Kitakami River, which prospered through water trade. To respond flexibly to the balance between the number of seats and the performance type, we divided the second-floor seats with curtains, making it possible to use the middle hall scale within the first floor.
The interior of the hall, designed with black as a backdrop, emphasizes the stage and the audience seating, creating a sense of unity between performers and viewers. The small hall features a flat floor with rollback chairs, and is designed to be used for theatrical performances, music appreciation, exhibitions, and shows. We crafted this architecture with precision, considering the program, the context of the site, how it will be used, its history and future, and its public and human nature. The simple composition of subdivided and clustered scales suggests a new way to think about rural public complexes.
Principal(s) in charge: Sou FujimotoProject team: Sou Fujimoto, Shintaro Honma, Masaki Iwata, Shohei Inada, Miki Shibata, Reo Akiyama, Sei Hosaka, Francesco Zonca, Tomonori Kitamura, Kozo Sasaki, Megumi Sato, Naganobu Matsumura*, Hideto Chijiwa*, Toshiyuki Nakagawa*, Nobuyuki Tejima*, Kanae Shimamura*, Minako Suzuki*, Kei Sasaki*, Tang Li Qun*, Hiroki Nakagawa*, Seiya Ueki* (*Former Staff)


















Popular Articles
Popular articles from the community
Flamboyant House by Juliana Camargo + Prumo Projetos
Modern Brazilian house integrating existing tree, pool, and volumes with glass, wood, and transitional spaces blending interior, exterior, and landscape seamlessly.
The Ken Roberts Memorial Delineation Competition (Krob)
As the most senior architectural drawing competition currently in operation anywhere in the world, it draws hundreds of entries each year, awarding the very best submissions in a series of medium-based categories.
On the Brooks House by Monsoon Collective – A Contemporary Kerala Home Rooted in Tradition
Kerala home blending tradition and modernity with water-inspired design, brick architecture, courtyard planning, and sustainable rainwater harvesting strategies.
Treehouse Apartment: A Warm Timber Interior Blending Craft, Play, and Contemporary Living
Warm timber apartment with integrated treehouse, combining natural materials, craftsmanship, and playful design to create a flexible, family-oriented living environment.
Similar Reads
You might also enjoy these articles
Zhuxi Wonderland: Reimagining Traditional Chinese Gardens by Doarchi Architects
Zhuxi Wonderland by Doarchi Architects reinterprets traditional Yangzhou gardens, integrating courtyards, pavilions, and tea houses in modern cultural design.
Doble Soga House: A Contemporary Brick Residence Rooted in Landscape in Quito, Ecuador
Brick house in Quito integrating nature, flexible living spaces, exposed materials, and rooftop terrace, creating warm contemporary architecture for modern family life.
Al Gharra Mosque in Medina Redefining Contemporary Islamic Architecture
Minimalist Medina mosque using concrete, light, and landscape to reinterpret Islamic worship spaces through symbolic spiritual transitions and contemporary architecture.
Viczonecode Villa by DDconcept – Tropical Family Living in Ho Chi Minh City
Tropical family villa in Ho Chi Minh City featuring courtyards, skylights, natural ventilation, elevated flooring, and seamless indoor–outdoor living surrounded by greenery.
Explore Sculpting Competitions
Discover active competitions in this discipline
The International Standard for Design Portfolios
The Global Benchmark for Architecture Dissertation Awards
The Global Benchmark for Graduation Excellence
Challenge to reimagine the Iron Throne
Comments (0)
Please login or sign up to add comments
No comments yet. Be the first to comment!