Shared Office Architecture: Mega Floor (Seoul AI Hub) by stpmj
The article explores Mega Floor (Seoul AI Hub) by stpmj, an innovative shared office architecture project promoting collaboration and sustainability.
The Mega Floor (Seoul AI Hub), designed by the architecture studio stpmj, introduces a groundbreaking vision for shared office architecture in Seoul, South Korea. This innovative project redefines collaborative workspaces by merging private offices with expansive, open-plan shared areas, fostering synergy among AI-driven industries.



Context and Architectural Vision
Located in Seoul, the Mega Floor project addresses the evolving needs of the Fourth Industrial Revolution, particularly within the realm of artificial intelligence and tech-driven businesses. Traditional office buildings often revolve around a central core, limiting the size and quality of shared spaces. Mega Floor challenges this convention by placing shared spaces at the forefront, creating an environment conducive to cross-industry collaboration.


Architects Seung Teak Lee and Mi Jung Lim of stpmj envisioned a workspace that balances private and communal zones while maximizing environmental efficiency. Their design draws inspiration from the urban contrasts between Savannah’s intimate pocket parks and Manhattan’s vast Central Park, both emphasizing the importance of integrated social spaces within an urban setting.


Layout and Spatial Organization
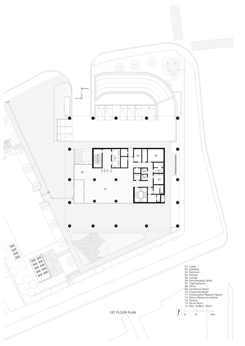
Mega Floor adopts an L-shaped core around which the office spaces are organized. This layout strategically positions private offices along the north and east facades, ensuring ample natural light and city views. In contrast, the south and west sides are dedicated to large, undefined shared spaces known as neutral zones, designed to accommodate various collaborative activities.


These neutral spaces are integrated with meeting rooms and focused workstations, creating a fluid transition between individual and collective work environments. The hierarchy within the floor plan progresses from private offices to semi-private zones near the core, and finally to open, public-facing areas. This gradient of privacy fosters both focused productivity and spontaneous collaboration.


Cross-Sectional Design and Vertical Connectivity
The shared office architecture concept extends beyond horizontal planning to vertical integration. Mega Floor incorporates double-height shared spaces across multiple levels, connected by open voids that enhance visual connectivity and natural ventilation. These voids facilitate interaction between floors while optimizing indoor climate control, reducing energy consumption.

The cross-sectional design ensures that every floor maintains a balance between secured office spaces and accessible communal zones. This vertical layering reinforces the building’s identity as a collaborative hub, breaking away from the compartmentalized nature of conventional office towers.

Environmental Performance and Sustainability
Sustainability is a core principle of Mega Floor’s shared office architecture. The building’s design harnesses natural resources to create a comfortable indoor environment while minimizing its ecological footprint. The large voids enhance airflow and daylight penetration, reducing reliance on artificial lighting and mechanical ventilation systems.

South and west-facing shared spaces receive abundant sunlight, reducing heating demands in colder months. The strategic positioning of private offices along the cooler north and east sides ensures thermal comfort while lowering cooling costs during the summer. This passive climate control approach exemplifies how shared office architecture can align with environmental sustainability goals.

Materiality and Interior Atmosphere
Mega Floor’s interior palette emphasizes raw materials such as exposed concrete, glass partitions, and natural wood finishes. These materials contribute to a modern, industrial aesthetic while promoting durability and low-maintenance solutions. The transparency of glass dividers maintains visual openness, reinforcing the project’s ethos of connectivity and transparency.

The neutral zones feature flexible furniture arrangements, allowing companies to customize their work settings according to evolving needs. This adaptability reflects the dynamic nature of AI-driven industries, where agility and innovation are paramount.

Urban Integration and Public Engagement
Mega Floor extends the concept of shared office architecture beyond its interior spaces into the urban fabric of Seoul. The building’s ground-level interface invites public engagement, blurring the boundaries between the workplace and the city. Open plazas and landscaped terraces encourage informal gatherings, fostering a sense of community within the bustling urban context.


Drawing parallels with Savannah’s pocket parks and Manhattan’s Central Park, Mega Floor envisions the workspace as a civic space. It challenges the traditional notion of offices as isolated units, advocating for workplaces that integrate seamlessly with public life.


Future Implications for Shared Office Architecture
The Mega Floor project by stpmj exemplifies the potential of shared office architecture to reshape contemporary work environments. As industries increasingly prioritize collaboration, adaptability, and well-being, this architectural model offers a blueprint for future office developments.


By prioritizing shared spaces, vertical connectivity, and environmental performance, Mega Floor sets a new standard for workplaces designed to support the Fourth Industrial Revolution. It underscores the role of architecture in facilitating human interaction, fostering creativity, and enhancing productivity within tech-driven economies.





Conclusion
Mega Floor (Seoul AI Hub) by stpmj represents a pioneering example of shared office architecture, redefining the spatial relationship between private offices and communal areas. Through innovative planning, cross-sectional integration, and sustainable design, the project establishes a workplace ecosystem tailored to the demands of the AI-driven era.



This architectural approach not only optimizes work efficiency but also fosters a sense of community, transforming the office into a vibrant hub of collaboration and innovation. As cities globally embrace hybrid work models and technological advancements, Mega Floor stands as a testament to the transformative power of shared office architecture.



All Photographs are works of Bae Ji Hun
Popular Articles
Popular articles from the community
On the Brooks House by Monsoon Collective – A Contemporary Kerala Home Rooted in Tradition
Kerala home blending tradition and modernity with water-inspired design, brick architecture, courtyard planning, and sustainable rainwater harvesting strategies.
Solar Steam: A Climate-Responsive Architecture That Redefines the Monument
A climate-responsive memorial architecture that transforms heat, decay, and time into a living system reflecting humanity’s ecological impact.
An Miên Lumière Cafe by xưởng xép, Ho Chi Minh City, Vietnam
An industrial-inspired café where layered steel and warm light create a dynamic, immersive environment shaped by reflection, depth, and perception.
Treehouse Apartment: A Warm Timber Interior Blending Craft, Play, and Contemporary Living
Warm timber apartment with integrated treehouse, combining natural materials, craftsmanship, and playful design to create a flexible, family-oriented living environment.
Similar Reads
You might also enjoy these articles
The Ken Roberts Memorial Delineation Competition (Krob)
As the most senior architectural drawing competition currently in operation anywhere in the world, it draws hundreds of entries each year, awarding the very best submissions in a series of medium-based categories.
Waterfront Redevelopment and Urban Revitalization in Mumbai: Forging a New Dawn for Darukhana
A transformative waterfront redevelopment project reimagining Darukhana’s shipbreaking heritage into an inclusive urban future.
OUT-OF-MAP: A Call for Postcards on Feminist Narratives of Public Space
Rhizoma Design and Research Lab invites artists, designers, architects, researchers, and students to reflect on how feminist perspectives can reshape public space. Selected works will be exhibited in Barcelona, October 2026. Submissions open until 15 April 2026.
Documentation Work on Buddhist Wooden Temple
Architectural syncretism and cultural hybridity: A comparative study of the Buddhist temples in Chattogram Hill tracks
Explore Architecture Competitions
Discover active competitions in this discipline
The International Standard for Design Portfolios
The Global Benchmark for Architecture Dissertation Awards
The Global Benchmark for Graduation Excellence
Challenge to reimagine the Iron Throne
Comments (0)
Please login or sign up to add comments
No comments yet. Be the first to comment!