Shenzhen Longhua District Qingquan Foreign Language Junior School: A Model of High-Density School Architecture
Shenzhen Longhua District Qingquan Foreign Language Junior School exemplifies high-density school architecture, merging innovation, sustainability, and student-centric design in urban education.
Innovative Solutions for Urban Educational Spaces
As Shenzhen continues to experience rapid urban growth, the challenge of creating educational spaces within a land-scarce environment has become a pressing issue. Shenzhen Longhua District Qingquan Foreign Language Junior School, designed by Yijing Architectural Design, addresses this challenge through an innovative approach to high-density school architecture. With a total area of 29,266 square meters, this campus redefines how educational institutions can thrive within constrained urban environments while prioritizing student engagement, well-being, and sustainability.




The Concept of the "Campus Valley"
One of the most distinctive features of this project is the introduction of the "campus valley" concept. This design transforms the school into a dynamic and visually engaging space, incorporating green areas, rooftop gardens, and multi-functional zones that foster creativity and interaction. The idea of a "valley garden" plays a central role, offering students an immersive environment where learning extends beyond traditional classrooms. These interconnected spaces allow children to observe nature, relax under the open sky, and enjoy an atmosphere that stimulates both education and imagination.




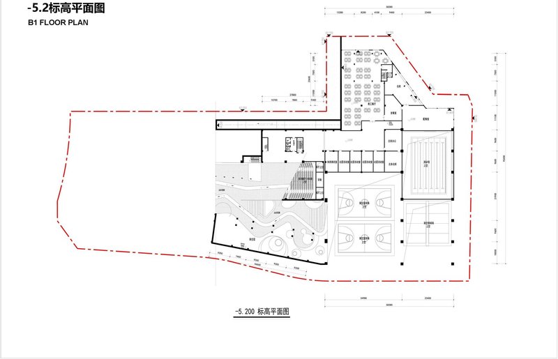
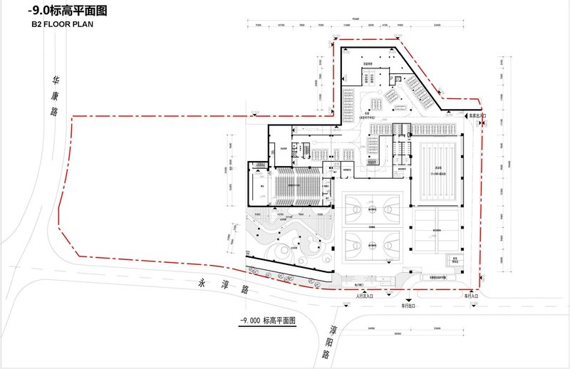
Strategic Site Planning for Maximum Space Utilization
Situated on an irregular trapezoidal plot with a significant height difference of 7.1 meters, the design team overcame spatial constraints by carefully placing two six-story teaching buildings along the perimeter. The ground floor of these buildings is elevated, ensuring openness and unobstructed views while creating a seamless connection between different campus functions. This layout optimizes land use, allowing for a larger activity area within a compact footprint.


A key feature of the school's spatial organization is the aerial library, which connects the academic buildings while enhancing the campus's functional flow. The introduction of stepped terraces, rooftop green spaces, and pedestrian walkways further contributes to the high-density school architecture strategy by integrating academic, recreational, and ecological elements in a cohesive design.


Expanding Recreational Opportunities Through Vertical Design
The sports field, traditionally placed at ground level, is elevated to extend the valley garden, maximizing space efficiency. This design choice not only increases the play area but also introduces a covered sports hall, ensuring year-round functionality regardless of weather conditions. The sports field’s elevated position fosters connectivity between various activity zones, reinforcing the school's commitment to student wellness.




A Child-Centered Approach to Architecture
Beyond functionality, the design embraces a child-friendly perspective that transforms the campus into an exciting, exploratory space. The auditorium entrance, hidden within a cave-like structure, offers an element of discovery, encouraging students to see their school as more than just a place for academic learning. The incorporation of a green sky observation deck and an aerial walkway invites students to interact with their surroundings, promoting curiosity and engagement with nature.


Through the integration of open-air learning spaces, relaxation zones, and interactive landscapes, Shenzhen Longhua District Qingquan Foreign Language Junior School redefines the possibilities of high-density educational architecture. This approach prioritizes both structured learning and free exploration, making it a model for future urban schools.



Sustainability and Ecological Considerations
The school’s emphasis on sustainability is evident in its extensive use of rooftop greenery and natural ventilation strategies. The ecological network formed by the green rooftops and open courtyards reduces heat absorption, contributing to energy efficiency. The integration of native plants and shaded outdoor spaces further enhances the microclimate, creating a comfortable learning environment while reducing the overall ecological footprint.




Redefining the Future of High-Density School Architecture
With urbanization continuing to challenge conventional school design, Shenzhen Longhua District Qingquan Foreign Language Junior School stands as a forward-thinking solution. By blending vertical design principles, nature-inspired spaces, and multifunctional educational environments, this project serves as a benchmark for the future of high-density school architecture. The innovative layout not only meets the demands of land-constrained cities but also ensures that students can learn, play, and grow in a stimulating and sustainable setting.



All Photographs are works of Linlv
Popular Articles
Popular articles from the community
Rede Arquitetos Builds an Open-Air School in Fortaleza That Doubles as a Neighborhood Living Room
Educar II SESC-CE folds sports, dance, and community gathering into a courtyard campus wrapped in mesh and tropical color.
TGK Nirasaki Plant: A Smart Factory Blending Technology, Landscape, and Wellness
Smart factory in Japan blending IoT manufacturing, scenic trail design, natural ventilation, and landscape integration to enhance user experience and sustainability.
Magic Box Office Barcelona Innovative Sustainable Workplace Design
Innovative sustainable office design featuring triangular form, ceramic façade, flexible interiors, natural light optimization, and creative workspace for modern work culture.
Marvila Apartment Renovation in Lisbon: A Bright Minimalist Attic Transformation by KEMA Studio
Bright attic transformed into minimalist Lisbon apartment with skylights, sustainable materials, open plan layout, and industrial-inspired interior design elements.
Similar Reads
You might also enjoy these articles
Bamboo Housing Challenge 2026: Design Affordable, Sustainable Homes Using Bamboo
An international design competition by Bamboo U and IBUKU inviting architects and designers to reimagine affordable housing using bamboo — with the winning design built full-scale in Bali.
Computational Design & Education: Beegraphy Design Awards Introduces 7th Category (Featuring Jiyun's Innovative Approach)
Dive into Beegraphy’s 7th Design Awards category, where computational design meets education to create immersive, interactive learning tools, inspired by Jiyun’s work.
From Parametric Lighting to Urban Furniture: Join the 2nd Workshop in Beegraphy’s Computational Design Series
Dive into Cutting-Edge Design Techniques and Practical Applications with Industry Experts
Explore Architecture Competitions
Discover active competitions in this discipline
The International Standard for Design Portfolios
The Global Benchmark for Architecture Dissertation Awards
The Global Benchmark for Graduation Excellence
Challenge to reimagine the Iron Throne
Comments (0)
Please login or sign up to add comments
No comments yet. Be the first to comment!