Shipping Container House Design in Wye River: House 28 by Studio Edwards
House 28 transforms shipping containers into a sustainable coastal retreat that harmonizes industrial design with the natural landscape.
A Compact Coastal Retreat Crafted from Shipping Containers
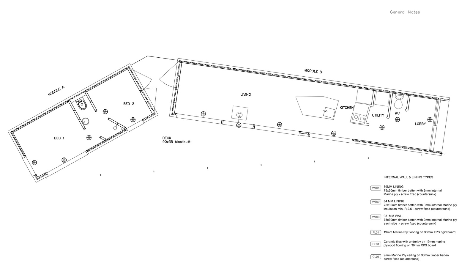
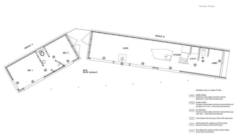
Perched on the rugged coastline of Wye River in Victoria, Australia, House 28 is a striking example of innovative shipping container house design. Designed by Studio Edwards, this 70-square-meter retreat transforms three 20-foot shipping containers into a thoughtfully arranged weekend getaway that blends seamlessly with the surrounding natural landscape. Completed in 2018, the project exemplifies sustainable architecture through its minimal footprint, modular construction, and sensitive integration into the steep hillside site.






Modular Construction Meets Coastal Living
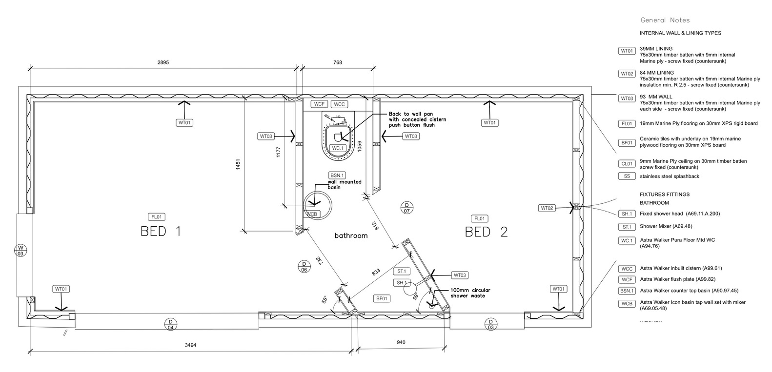
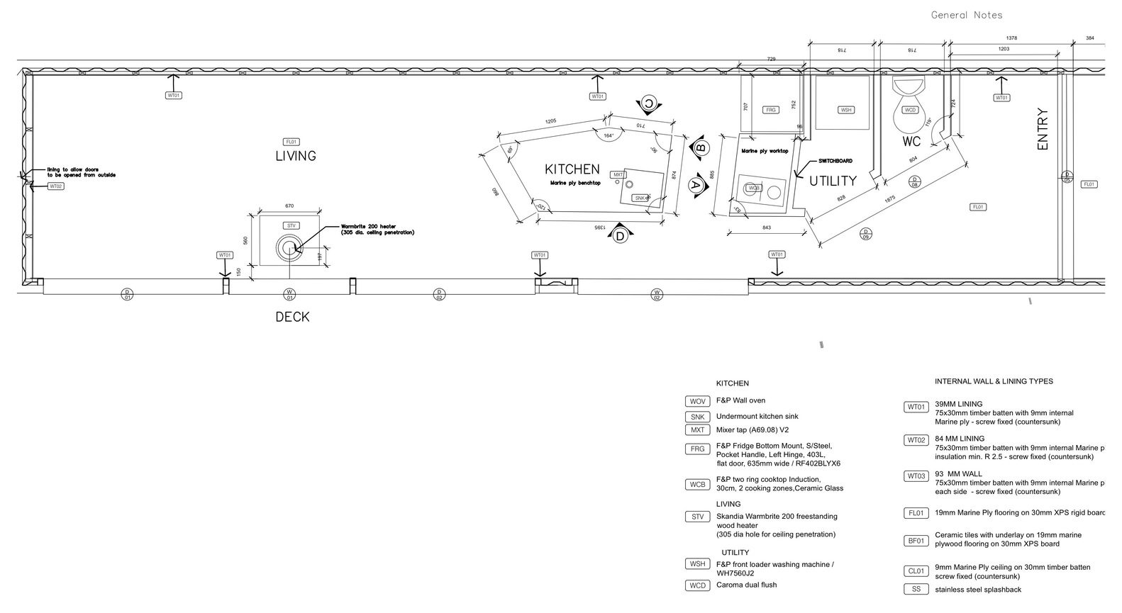
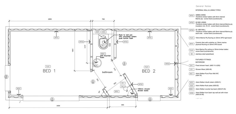
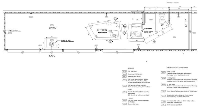
The house is composed of three repurposed shipping containers strategically configured for functionality and spatial clarity. Two containers are joined to create an open-plan living area that includes the kitchen, entryway, toilet, and laundry facilities. The third container serves as a private sleeping wing housing two bedrooms and a compact bathroom. The two volumes are connected by an open external deck, elevated on steel stilts and anchored to the hillside with deep concrete pile foundations. This separation enhances the feeling of immersion in the surrounding bush while allowing the building to tread lightly on the earth.




Material Palette Rooted in Resilience and Simplicity
Internally, the home is lined with marine-grade plywood, creating a warm and durable interior surface that reflects the project’s rugged coastal context. Externally, the containers are insulated and clad in galvanized steel sheeting, providing a resilient weatherproof skin suited to the coastal climate. These material choices are both practical and visually refined, reinforcing the home’s industrial aesthetic while delivering comfort and durability.





A Living Façade and Green Roof Integration
A distinctive feature of House 28 is the ecological strategy embedded into its form. The northern façade is designed with fittings for planting wires, encouraging native vegetation to climb and gradually envelop the structure. This not only softens the industrial feel of the containers but also enhances the home’s thermal performance and ecological footprint. The green roof, planted with native dichondra, provides additional insulation, assists in rainwater filtration, and fosters biodiversity on site—making the home an active participant in the local ecosystem.





Framing Nature Through Design
Oriented to embrace the natural beauty of its setting, the southern façade is predominantly glazed with a series of double-glazed doors and windows. These open out onto the deck and offer expansive views through the coastal trees toward the ocean beyond. This deliberate framing of the landscape fosters a direct relationship between the interior spaces and the wild scenery outside, allowing the compact home to feel expansive and immersive despite its modest size.





Sustainable Architecture for Modern Retreats
House 28 stands as a thoughtful example of how shipping container house design can be elevated through architectural care and environmental consideration. Studio Edwards delivers a home that is not only efficient and expressive but also deeply connected to its site. With its minimal intervention, climate-responsive materials, and strong spatial logic, the project reimagines the possibilities of modular architecture for sustainable coastal living.



All photographs are works of Tony Gorsevski
Popular Articles
Popular articles from the community
Flamboyant House by Juliana Camargo + Prumo Projetos
Modern Brazilian house integrating existing tree, pool, and volumes with glass, wood, and transitional spaces blending interior, exterior, and landscape seamlessly.
A Contemporary Take on Iranian Residential Architecture
A modern interior design in Mashhad that reinterprets brick, light, and spatial flow to create a warm, contemporary residential architecture.
Louis Malle Cinema: A Limestone Cultural Landmark Revitalizing Community Life in Prayssac
Limestone cinema extension with public forecourt, blending heritage and modern design to create flexible cultural spaces and strengthen community interaction.
An Miên Lumière Cafe by xưởng xép, Ho Chi Minh City, Vietnam
An industrial-inspired café where layered steel and warm light create a dynamic, immersive environment shaped by reflection, depth, and perception.
Similar Reads
You might also enjoy these articles
Top 15 Architecture Competitions to Enter in 2026
From student-friendly idea competitions to prestigious international awards, here are the best architecture competitions open for entries in 2026. Updated regularly.
DIY & Engineering in Computational Design : Enter the BeeGraphy Design Awards
Showcase Your Creativity with Computational Design and Open Source Projects

Innovative Design Solutions: Award-Winning Projects from Recent Architecture Competitions
Exploring award-winning architectural projects shaping the future of design, sustainability, and community.
Explore Architecture Competitions
Discover active competitions in this discipline
The International Standard for Design Portfolios
The Global Benchmark for Architecture Dissertation Awards
The Global Benchmark for Graduation Excellence
Challenge to reimagine the Iron Throne
Comments (0)
Please login or sign up to add comments
No comments yet. Be the first to comment!