Small Footprint Architecture: Maximizing Space with Crest Guesthouse by Mork-Ulnes Architects
Explore the Crest Guesthouse by Mork-Ulnes Architects, a masterclass in small footprint architecture blending sustainability with innovative design in Marin County.
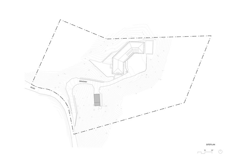
In the realm of modern architecture, "small footprint architecture" is gaining prominence as architects and homeowners alike seek to make the most out of limited spaces. The Crest Guesthouse in Marin County, California, exemplifies this trend, transforming the foundation of an old garage into a fully functional and stylish Accessory Dwelling Unit (ADU).


The Essentials of Small Footprint Architecture
What is Small Footprint Architecture?
Small footprint architecture focuses on designs that optimize limited space through smart planning, multipurpose features, and seamless integration with the environment. This approach not only addresses space constraints but also tends to have a smaller environmental impact.


Benefits of Small Footprint Designs
These structures are often more sustainable and cost-effective. They require fewer materials and energy to build and maintain, making them ideal for urban infills, vacation homes, and eco-conscious living.

Design and Features of the Crest Guesthouse
Architectural Design
Innovative Use of Space
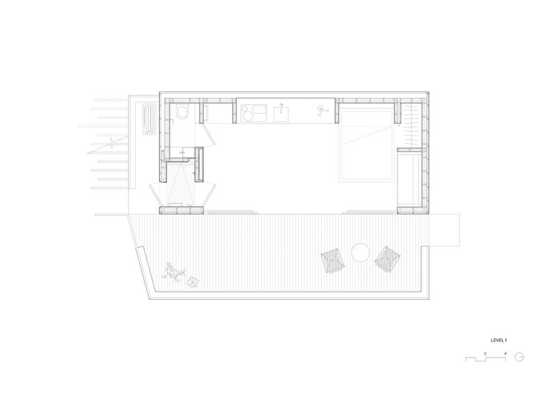
Mork-Ulnes Architects masterfully utilized the existing garage footprint to create the Crest Guesthouse. The structure’s sharply angled roofline not only complements the steep hillside but also maximizes the interior volume, allowing for high clerestory windows that flood the space with natural light.


Exterior and Interior Integration
A significant feature of the guesthouse is its front deck, which effectively doubles the usable area of the ADU. This outdoor space extends the living area into the mild California climate, enhancing both the functionality and aesthetic appeal of the building.


Interior Layout and Flexibility
Multifunctional Components
The guesthouse incorporates flexible design elements like a rolling kitchen island and a Murphy bed, which optimize the living space. These features allow the interior to be easily reconfigured based on immediate needs, showcasing the potential of small footprint architecture to adapt to various functions.


Smart Spatial Arrangement
The loft space serves as an additional sleeping or relaxation area, accessible via a ladder that integrates smoothly into the wall when not in use. This efficient use of vertical space is crucial in small footprint designs, providing extra functionality without sacrificing floor area.


Sustainability and Materials
Eco-Friendly Materials
The use of cement board for cladding not only provides fire resistance in the wooded setting but also offers ease of maintenance. Such sustainable material choices reflect a commitment to environmentally responsible design, a key principle in small footprint architecture.

Energy Efficiency
The strategic placement of windows and the integration of indoor-outdoor spaces contribute to the building's energy efficiency. Natural lighting and ventilation reduce the need for artificial heating and cooling, lowering energy consumption and enhancing comfort.


Impact and Utilization
Versatility in Use
Originally intended as a rental unit and guesthouse, the ADU is currently used by the owners as a vacation cabin. This adaptability in use demonstrates the practicality of small footprint architecture in meeting diverse housing needs.

Inspiration for Future Projects
The Crest Guesthouse serves as a model for architects and developers looking to maximize small spaces creatively and sustainably. It illustrates how thoughtful design can turn limited square footage into comfortable, luxurious living environments.

The Crest Guesthouse by Mork-Ulnes Architects is a testament to the capabilities of small footprint architecture. Through clever design and sustainable practices, it achieves a balance of style, functionality, and environmental stewardship, making it a beacon for future developments in the field.

All photographs are work of Bruce Damonte
Popular Articles
Popular articles from the community
Fifth NRE Jazz Club – De Bever Architecten: Eindhoven’s Revitalized Cultural Hub
Historic gas factory transformed into Fifth NRE Jazz Club blending modern sustainability, jazz culture, dining, and heritage architecture seamlessly.
Inverted Architecture Installation by Studio Link-Arc: Exploring the Intersection of Architecture and Living Organisms
Inverted Architecture Installation by Studio Link-Arc blends mycelium, sustainability, inverted design, ecological cycles, and urban adaptive architecture in Shenzhen.
Alton Cliff House: A Harmonious Retreat by f2a Architecture in Lake Country, Canada
Alton Cliff House blends corten steel, prefabrication, and sustainable design, creating a luxurious, energy-efficient retreat perched on Canadian cliffs.
Solar Steam: A Climate-Responsive Architecture That Redefines the Monument
A climate-responsive memorial architecture that transforms heat, decay, and time into a living system reflecting humanity’s ecological impact.
Similar Reads
You might also enjoy these articles
The Ken Roberts Memorial Delineation Competition (Krob)
As the most senior architectural drawing competition currently in operation anywhere in the world, it draws hundreds of entries each year, awarding the very best submissions in a series of medium-based categories.
Waterfront Redevelopment and Urban Revitalization in Mumbai: Forging a New Dawn for Darukhana
A transformative waterfront redevelopment project reimagining Darukhana’s shipbreaking heritage into an inclusive urban future.
OUT-OF-MAP: A Call for Postcards on Feminist Narratives of Public Space
Rhizoma Design and Research Lab invites artists, designers, architects, researchers, and students to reflect on how feminist perspectives can reshape public space. Selected works will be exhibited in Barcelona, October 2026. Submissions open until 15 April 2026.
Documentation Work on Buddhist Wooden Temple
Architectural syncretism and cultural hybridity: A comparative study of the Buddhist temples in Chattogram Hill tracks
Explore Architecture Competitions
Discover active competitions in this discipline
The International Standard for Design Portfolios
The Global Benchmark for Architecture Dissertation Awards
The Global Benchmark for Graduation Excellence
Challenge to reimagine the Iron Throne
Comments (0)
Please login or sign up to add comments
No comments yet. Be the first to comment!