Stones Water Light: A Landmark of Sustainable Visitor Center Architecture
This article explores the Stones Water Light visitor center, highlighting its innovative and sustainable architectural design that connects history, nature, and community.
Introduction to Sustainable Visitor Center Architecture
The Stones Water Light visitor center, designed by Christoph Hesse Architects, stands as a remarkable example of sustainable visitor center architecture. Located at Lake Edersee in Germany, the project seamlessly integrates cultural, historical, and ecological narratives into a built form that fosters interaction, education, and reflection. Positioned at the edge of the UNESCO-listed Kellerwald-Edersee National Park, the center creates a meaningful space for regenerative thinking, balancing both social and environmental sustainability.




Connection to the Edersee Dam
The architectural concept of Stones Water Light is deeply rooted in its connection to the Edersee Dam. This structure has played a transformative role in the region’s history, evolving from an engineering marvel to a symbol of resilience through its destruction and reconstruction during World War II. Today, the dam serves as a significant green energy producer and cultural landmark, and the visitor center pays homage to this legacy through its thoughtful design.


The building’s form mirrors a symbolic section cut through the dam, revealing layers of history while creating new spaces that engage visitors with the site’s past. The center acts as a bridge between the central square of the village of Edersee and the dam, reinforcing its significance within the local landscape.


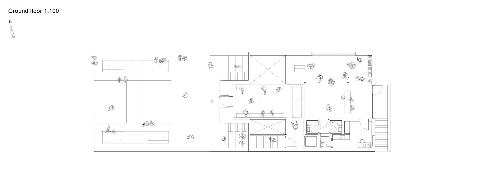
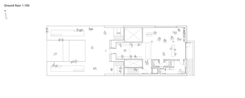
Architectural Design and Concept
The visitor center’s architecture embodies a dialogue between nature and human intervention. Rising above the landscape like a sculptural monolith, the structure offers sweeping views of the lake and dam from its upper levels. A large panoramic window in the foyer provides a direct visual connection to the dam, immersing visitors in the surrounding environment.


The ground floor functions as an open community space, fostering education, dialogue, and cultural exchange. The interior design follows an intuitive spatial flow, guiding guests through a lounge and information area before leading them down into the museum space. A light installation within this lower level transforms the visitor experience, illuminating the dam’s historical significance through an interactive display.


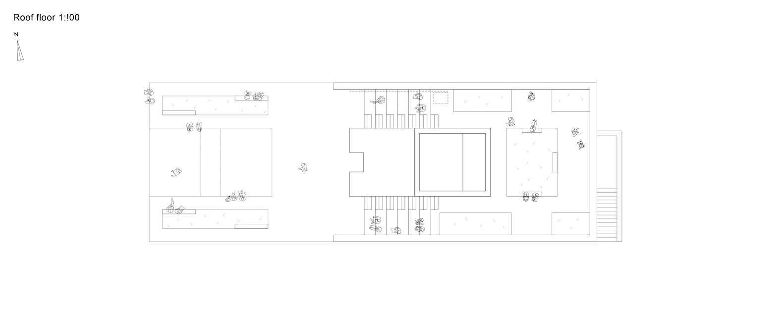
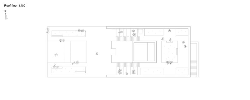
Multi-Layered Visitor Experience
The experience of the Stones Water Light visitor center unfolds across multiple levels, creating an engaging narrative for visitors. The outdoor spaces encourage social interaction and relaxation, while the rooftop is designed as a walkable surface, offering breathtaking perspectives of the dam and the natural landscape. This dynamic layering of experiences ensures that guests leave with a deeper understanding of the site’s cultural and ecological importance.




A Space for Reflection and Sustainability
Designed as a space for learning and contemplation, the visitor center embodies principles of sustainability in both concept and execution. The integration of natural materials, energy-efficient systems, and an emphasis on environmental education make it a model for sustainable visitor center architecture. By connecting people with history, nature, and innovation, the Stones Water Light project continues to inspire future generations while preserving the integrity of Lake Edersee’s heritage.


A Vision for the Future
The Stones Water Light visitor center is more than an architectural landmark—it is a testament to how design can serve as a bridge between past, present, and future. Through sustainable visitor center architecture, it invites people to reflect, engage, and appreciate the interconnectedness of history, nature, and human creativity.







All Photographs are works of Laurian Ghinitoiu, Michael Meschede
Popular Articles
Popular articles from the community
Flamboyant House by Juliana Camargo + Prumo Projetos
Modern Brazilian house integrating existing tree, pool, and volumes with glass, wood, and transitional spaces blending interior, exterior, and landscape seamlessly.
The Ken Roberts Memorial Delineation Competition (Krob)
As the most senior architectural drawing competition currently in operation anywhere in the world, it draws hundreds of entries each year, awarding the very best submissions in a series of medium-based categories.
Louis Malle Cinema: A Limestone Cultural Landmark Revitalizing Community Life in Prayssac
Limestone cinema extension with public forecourt, blending heritage and modern design to create flexible cultural spaces and strengthen community interaction.
On the Brooks House by Monsoon Collective – A Contemporary Kerala Home Rooted in Tradition
Kerala home blending tradition and modernity with water-inspired design, brick architecture, courtyard planning, and sustainable rainwater harvesting strategies.
Similar Reads
You might also enjoy these articles
Bamboo Housing Challenge 2026: Design Affordable, Sustainable Homes Using Bamboo
An international design competition by Bamboo U and IBUKU inviting architects and designers to reimagine affordable housing using bamboo — with the winning design built full-scale in Bali.
Computational Design & Education: Beegraphy Design Awards Introduces 7th Category (Featuring Jiyun's Innovative Approach)
Dive into Beegraphy’s 7th Design Awards category, where computational design meets education to create immersive, interactive learning tools, inspired by Jiyun’s work.
From Parametric Lighting to Urban Furniture: Join the 2nd Workshop in Beegraphy’s Computational Design Series
Dive into Cutting-Edge Design Techniques and Practical Applications with Industry Experts
Introducing Sphere by UNI: Pioneering a New Era in AEC Industry
Unlocking Global Potential with BIM and Agile Management
Explore Architecture Competitions
Discover active competitions in this discipline
The International Standard for Design Portfolios
The Global Benchmark for Architecture Dissertation Awards
The Global Benchmark for Graduation Excellence
Challenge to reimagine the Iron Throne
Comments (0)
Please login or sign up to add comments
No comments yet. Be the first to comment!