StudioAC creates a devilishly gorgeous retreat in the heart of Glen - See inside now!
Is this the ultimate luxury escape you've been dreaming of? Take a tour of StudioAC's stunning Devil's Glen retreat to find out.

StudioAC's latest creation, the Devils Glen residence, is making waves in the architectural world thanks to its innovative design process that began with a simple picnic on the site. The property, located on the Bruce Peninsula just a few hours north of Toronto, is a stunning example of how a deep understanding and respect for the natural elements of a site can inspire an entire project.
During the initial picnic, the discussion focused more on the site's natural elements than the building itself. This approach ultimately led to an architectural ethic that prioritized preserving the natural habitat as much as possible. From there, the design process began with two key fixations: siting the house true to a north-south-east-west axis to take advantage of the solar path throughout the day and the view to the water and creating a roofscape that would shape light, levels of intimacy, and vantage points to the treetops, water, and sky beyond.

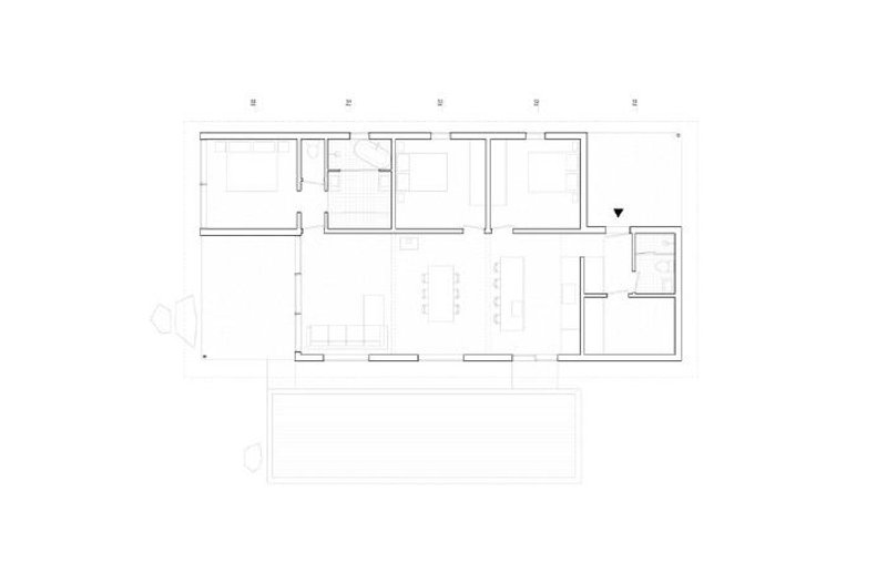
The result is a house that is organized into two linear bars, one for sleeping quarters and the other for open living. The plan uses a simple grid of 12' x 16' for living spaces and 12' x 12' for sleeping, creating an unobstructed living experience. A simple shift of the two bars produces a covered terrace facing the water and a covered porch at the entry, while increasing privacy for both the primary bedroom and the secondary bathroom facilities. The siting of the house also conceals the view to the water upon arrival to the site, creating a sense of anticipation that is fulfilled upon entering the house and being greeted by stunning views of the landscape and water through vignette-style windows and an expansive glass wall facing the lake.

The most striking feature of the house is undoubtedly the seemingly simple roof, which structurally and formally responds to the area's extensive snowfalls. The roof uses framed and clad trusses to increase lateral stability, while a partition between the two bars above the height of primary walls is allowed to sway from left to right, producing an intimate gable, a grand shed, or a funnel of light. The roof also includes a skygazing platform that brings visitors up into the roofscape to view the treetops, clouds, and stars.

The choice of a singular metal building for the residence was inspired by farm buildings in the area. The robust galvanized spec free from finish colors increases the durability of the building while reflecting the hues of the landscape and sky throughout the day. On the interior, a simple application of white painted drywall and plywood on the roofscape creates an unfettered backdrop for art, views, and sunlight.
Overall, the Devils Glen residence is a testament to the power of respecting and working with the natural elements of a site to create a stunning architectural masterpiece. StudioAC's approach, which began with a simple picnic on the site, has resulted in a house that not only blends seamlessly into the landscape but also offers a unique living experience that is sure to inspire and delight for years to come.

































Architects: StudioAC
Year: 2022
Photographs: Felix Michaud
Structural Engineering: Honeycomb
Construction Management: HCR Building INC.
Project Team: Jonathan Miura, Jennifer Kudlats, Andrew Hill
City: Municipality Of Northern Bruce Peninsula
Country: Canada
Popular Articles
Popular articles from the community
Atelier Macri Concept Store Interior Design by CASE-REAL
Atelier Macri store features a "ko" counter, walnut wood details, cork displays, blending retail, gallery, and seamless customer experiences.
On the Brooks House by Monsoon Collective – A Contemporary Kerala Home Rooted in Tradition
Kerala home blending tradition and modernity with water-inspired design, brick architecture, courtyard planning, and sustainable rainwater harvesting strategies.
Treehouse Apartment: A Warm Timber Interior Blending Craft, Play, and Contemporary Living
Warm timber apartment with integrated treehouse, combining natural materials, craftsmanship, and playful design to create a flexible, family-oriented living environment.
Flamboyant House by Juliana Camargo + Prumo Projetos
Modern Brazilian house integrating existing tree, pool, and volumes with glass, wood, and transitional spaces blending interior, exterior, and landscape seamlessly.
Similar Reads
You might also enjoy these articles
Zhuxi Wonderland: Reimagining Traditional Chinese Gardens by Doarchi Architects
Zhuxi Wonderland by Doarchi Architects reinterprets traditional Yangzhou gardens, integrating courtyards, pavilions, and tea houses in modern cultural design.
Doble Soga House: A Contemporary Brick Residence Rooted in Landscape in Quito, Ecuador
Brick house in Quito integrating nature, flexible living spaces, exposed materials, and rooftop terrace, creating warm contemporary architecture for modern family life.
Al Gharra Mosque in Medina Redefining Contemporary Islamic Architecture
Minimalist Medina mosque using concrete, light, and landscape to reinterpret Islamic worship spaces through symbolic spiritual transitions and contemporary architecture.
Viczonecode Villa by DDconcept – Tropical Family Living in Ho Chi Minh City
Tropical family villa in Ho Chi Minh City featuring courtyards, skylights, natural ventilation, elevated flooring, and seamless indoor–outdoor living surrounded by greenery.
Explore Architecture Competitions
Discover active competitions in this discipline
The International Standard for Design Portfolios
The Global Benchmark for Architecture Dissertation Awards
The Global Benchmark for Graduation Excellence
Challenge to reimagine the Iron Throne
Comments (0)
Please login or sign up to add comments
No comments yet. Be the first to comment!