Summer House in Klegod by Spant Studio
A restrained coastal retreat in West Jutland, blending timber, light, and landscape to create a calm, enduring summer house.
Located near Ringkøbing in the windswept coastal landscape of West Jutland, the Summer House in Klegod is a restrained and thoughtful retreat designed for long-term use and seasonal living. Completed in 2024, the 102 m² residence offers a quiet refuge where architecture, climate, and landscape are deeply intertwined.

Designed as a gathering place for a couple, their children, and grandchildren, the house balances intimacy and openness while responding sensitively to its exposed dune setting near the North Sea.
Context: Living with Wind, Light, and Dunes
Klegod lies in one of Denmark’s most dramatic coastal regions, characterized by:
- Strong prevailing winds
- Shifting sand dunes
- Rapid weather changes
- Expansive skies
- Sparse vegetation


Rather than resisting these conditions, Spant Studio embraced them as central design drivers. The house is conceived not as a protective shell that isolates its users, but as a mediator between human life and natural forces.

Design Philosophy: Belonging Rather Than Standing Out
From the outset, the project aimed to “belong” to its site.
Key intentions included:
- Preserving existing vegetation
- Minimizing visual impact
- Avoiding major land reshaping
- Using weathering materials
- Maintaining modest scale

This attitude resulted in an architecture that settles quietly into the dunes, becoming part of the landscape rather than dominating it.
Site Strategy and Orientation
The building is carefully positioned to provide shelter from dominant winds while maintaining openness toward key views.


Spatial Response to Climate
- Protected façades on exposed sides
- Openings toward dunes and sky
- Covered southwest-facing terrace
- Wind-buffered outdoor areas
- Gradual transition between inside and outside
This strategic placement allows the house to remain comfortable throughout changing seasons.

The Covered Terrace: An Outdoor Living Room
One of the project’s defining elements is the covered terrace on the southwest side.
Key Features
- Transitional indoor–outdoor space
- Adjustable sailcloth wind screens
- Flexible enclosure system
- Visual connection to landscape
- Evening lantern effect


During the day, the terrace opens to sun and views. In strong winds or after sunset, translucent screens close the space, transforming it into a softly glowing enclosure.
This adaptable outdoor room extends daily living and becomes the social heart of the house.

Light as a Building Material
Light plays a central role in shaping spatial experience.
Rather than treating daylight as incidental, the architects carefully choreographed its entry through framed openings and varying façade densities.

Effects of Light
- Changing atmospheres throughout the day
- Seasonal variation
- Visual connection to sky
- Enhanced spatial depth
- Reinforced sense of calm
Light becomes a dynamic material, constantly redefining the interior environment.


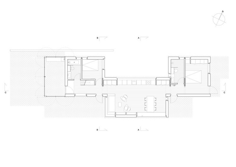
Spatial Organization: Clarity and Hierarchy
The plan follows a clear and intuitive hierarchy.
Programmatic Layout
- Central living and kitchen zone
- Bedrooms at outer edges
- Private functions separated from social areas
- Direct access to terrace
- Compact circulation


This organization supports both family gatherings and quiet retreats, allowing multiple modes of occupation within a modest footprint.
Integrated Architecture and Interior Design
In the Klegod Summer House, architecture, interiors, and furnishings are conceived as one coherent system.
Rather than adding furniture after construction, Spant Studio designed:

- Built-in seating
- Fixed storage
- Integrated cabinetry
- Custom surfaces
- Unified proportions
This approach eliminates visual clutter and reinforces continuity throughout the house.
Rooms, objects, and surfaces merge into a seamless spatial experience.


Subtle Spatial Variation
Although compact, the house avoids monotony through subtle spatial modulation.
Design tools include:
- Slight ceiling height variations
- Differentiated light conditions
- Changes in enclosure
- Shifts between openness and refuge
These nuanced adjustments create spatial richness without increasing footprint or material use.
Sustainability Through Restraint
Sustainability in this project is achieved through moderation rather than technological excess.
Environmental Principles
- Minimal site disturbance
- Long-lasting materials
- Passive climate control
- Natural ventilation
- Reduced maintenance needs
By relying on orientation, form, and material behavior, the house achieves comfort with minimal mechanical intervention.
A Quiet Model of Scandinavian Residential Design
The Summer House in Klegod exemplifies a contemporary Scandinavian approach rooted in restraint, craftsmanship, and environmental sensitivity.
Rather than pursuing iconic form, Spant Studio delivers an architecture of balance—between openness and shelter, permanence and change, simplicity and richness.
The result is a deeply contextual retreat that demonstrates how small-scale residential architecture can achieve lasting cultural and spatial value.
All the Photographs are works of Helene Høyer Mikkelsen
Popular Articles
Popular articles from the community
The Ken Roberts Memorial Delineation Competition (Krob)
As the most senior architectural drawing competition currently in operation anywhere in the world, it draws hundreds of entries each year, awarding the very best submissions in a series of medium-based categories.
Inverted Architecture Installation by Studio Link-Arc: Exploring the Intersection of Architecture and Living Organisms
Inverted Architecture Installation by Studio Link-Arc blends mycelium, sustainability, inverted design, ecological cycles, and urban adaptive architecture in Shenzhen.
Fifth NRE Jazz Club – De Bever Architecten: Eindhoven’s Revitalized Cultural Hub
Historic gas factory transformed into Fifth NRE Jazz Club blending modern sustainability, jazz culture, dining, and heritage architecture seamlessly.
Solar Steam: A Climate-Responsive Architecture That Redefines the Monument
A climate-responsive memorial architecture that transforms heat, decay, and time into a living system reflecting humanity’s ecological impact.
Similar Reads
You might also enjoy these articles
The Ken Roberts Memorial Delineation Competition (Krob)
As the most senior architectural drawing competition currently in operation anywhere in the world, it draws hundreds of entries each year, awarding the very best submissions in a series of medium-based categories.
Waterfront Redevelopment and Urban Revitalization in Mumbai: Forging a New Dawn for Darukhana
A transformative waterfront redevelopment project reimagining Darukhana’s shipbreaking heritage into an inclusive urban future.
OUT-OF-MAP: A Call for Postcards on Feminist Narratives of Public Space
Rhizoma Design and Research Lab invites artists, designers, architects, researchers, and students to reflect on how feminist perspectives can reshape public space. Selected works will be exhibited in Barcelona, October 2026. Submissions open until 15 April 2026.
Documentation Work on Buddhist Wooden Temple
Architectural syncretism and cultural hybridity: A comparative study of the Buddhist temples in Chattogram Hill tracks
Explore Architecture Competitions
Discover active competitions in this discipline
The International Standard for Design Portfolios
The Global Benchmark for Architecture Dissertation Awards
The Global Benchmark for Graduation Excellence
Challenge to reimagine the Iron Throne
Comments (0)
Please login or sign up to add comments
No comments yet. Be the first to comment!