Sustainable Architecture in South Korea: A Close Look at Raw House by Todot Architects and Partners
Explore Raw House by Todot Architects, a prime example of sustainable architecture in South Korea, emphasizing harmony with nature.
In the realm of modern architecture, sustainability is a key driver in design and construction. Todot Architects and Partners have embodied this principle beautifully in their latest project, Raw House, located in Yangpyeong-gun, South Korea. This article explores how Raw House exemplifies sustainable architecture in South Korea.



Site and Inspiration
The Natural Setting
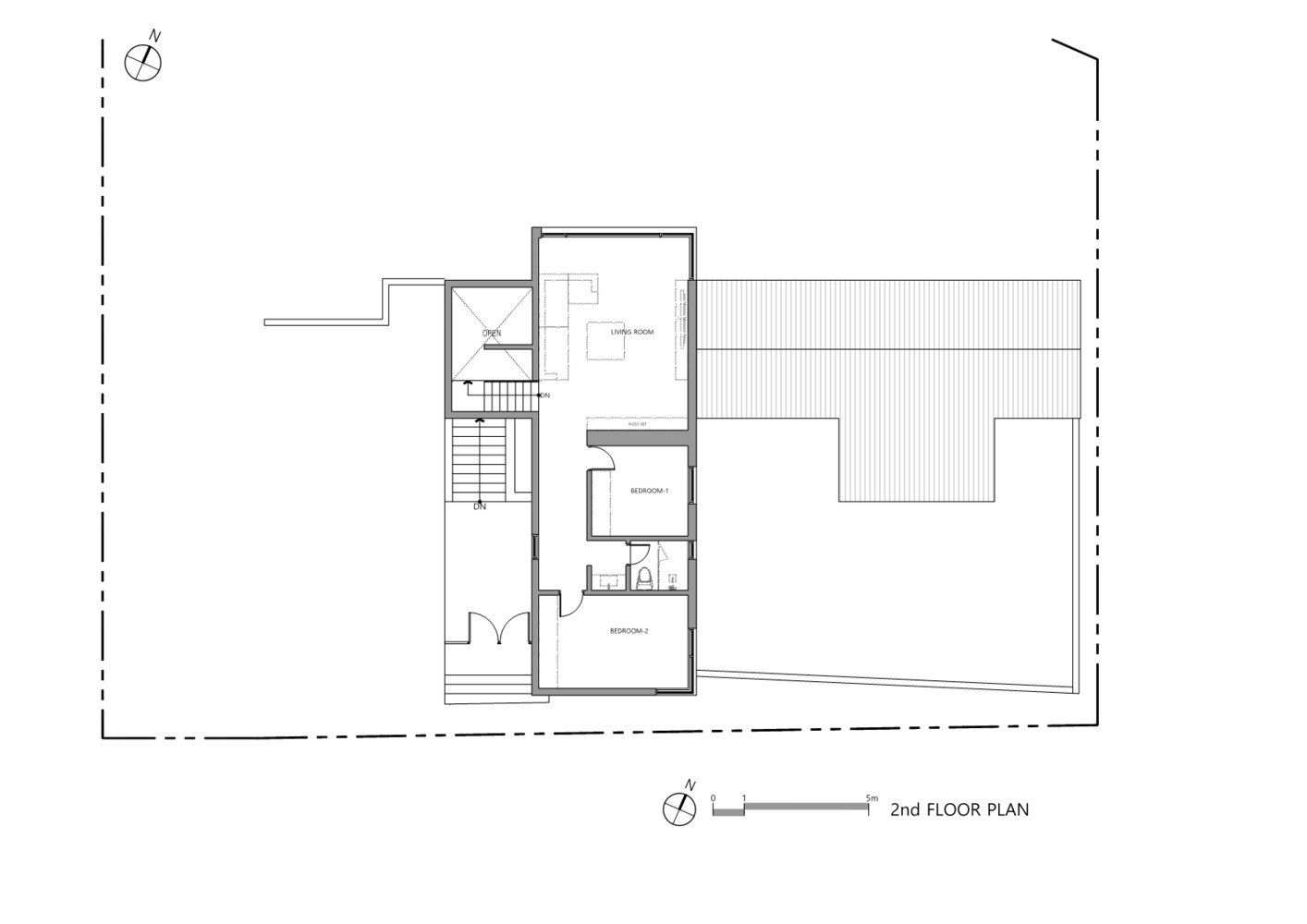
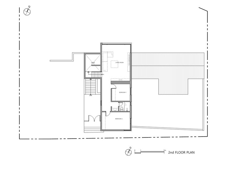
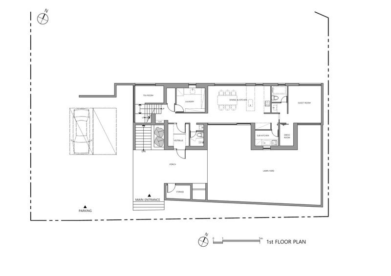
Raw House is strategically situated on a mountainside, offering panoramic views of the nearby ridge and vibrant natural landscapes. The initial design process focused on integrating the building with its surroundings, ensuring minimal environmental impact. This approach reflects a broader commitment to sustainability that is becoming more prevalent in South Korean architecture.



Design Philosophy
The architects approached the site with a deep respect for nature, aiming to "accept nature as it is." This philosophy guided every decision, from the layout of the living spaces to the choice of materials. The house's integration with the terrain, especially its use of sloping yards and pilotis (supporting stilts), highlights the adaptive strategies that define sustainable architecture in South Korea.



Architectural Features
Utilizing Natural Light and Views
Raw House is designed to maximize the intake of natural light. The varying heights of the site allow for a dynamic interaction between indoor spaces and the natural world outside. Every room offers a distinct view, engaging the occupants with the landscape in a way that changes throughout the day and with the seasons.




Materials and Structure
The use of raw, natural materials is a hallmark of the project. Concrete and wood dominate, providing both durability and a tactile sense of the natural world. These materials were selected for their low environmental impact and their ability to age gracefully, thereby reducing the need for replacement or extensive maintenance.




Sustainable Practices
Energy Efficiency
The house is designed to be energy-efficient, with thermal insulation that minimizes heating and cooling needs. Large windows facilitate cross-ventilation, reducing the reliance on artificial climate control. This not only aligns with sustainable practices but also enhances the comfort of those living in the house.


Water Conservation
Water conservation measures are integrated throughout the property, including rainwater harvesting systems that reduce dependence on municipal water supplies. This is particularly important in the context of South Korea's variable climate.


Raw House by Todot Architects and Partners is a prime example of sustainable architecture in South Korea. Through thoughtful design and innovative use of materials, the project demonstrates how modern homes can harmonize with their environment while providing comfortable, sustainable living spaces.


All photographs are work of Jinbo Choi
Popular Articles
Popular articles from the community
The Ken Roberts Memorial Delineation Competition (Krob)
As the most senior architectural drawing competition currently in operation anywhere in the world, it draws hundreds of entries each year, awarding the very best submissions in a series of medium-based categories.
Atelier Macri Concept Store Interior Design by CASE-REAL
Atelier Macri store features a "ko" counter, walnut wood details, cork displays, blending retail, gallery, and seamless customer experiences.
A Contemporary Take on Iranian Residential Architecture
A modern interior design in Mashhad that reinterprets brick, light, and spatial flow to create a warm, contemporary residential architecture.
On the Brooks House by Monsoon Collective – A Contemporary Kerala Home Rooted in Tradition
Kerala home blending tradition and modernity with water-inspired design, brick architecture, courtyard planning, and sustainable rainwater harvesting strategies.
Similar Reads
You might also enjoy these articles
The Ken Roberts Memorial Delineation Competition (Krob)
As the most senior architectural drawing competition currently in operation anywhere in the world, it draws hundreds of entries each year, awarding the very best submissions in a series of medium-based categories.
Waterfront Redevelopment and Urban Revitalization in Mumbai: Forging a New Dawn for Darukhana
A transformative waterfront redevelopment project reimagining Darukhana’s shipbreaking heritage into an inclusive urban future.
OUT-OF-MAP: A Call for Postcards on Feminist Narratives of Public Space
Rhizoma Design and Research Lab invites artists, designers, architects, researchers, and students to reflect on how feminist perspectives can reshape public space. Selected works will be exhibited in Barcelona, October 2026. Submissions open until 15 April 2026.
Documentation Work on Buddhist Wooden Temple
Architectural syncretism and cultural hybridity: A comparative study of the Buddhist temples in Chattogram Hill tracks
Explore Architecture Competitions
Discover active competitions in this discipline
The International Standard for Design Portfolios
The Global Benchmark for Architecture Dissertation Awards
The Global Benchmark for Graduation Excellence
Challenge to reimagine the Iron Throne
Comments (0)
Please login or sign up to add comments
No comments yet. Be the first to comment!