THAD Wraps Fifteen Aging Cubes in Red Brick to Revive a Zhuhai Campus Landmark
A skin-over-skin renovation on the foothills of Phoenix Mountain turns a rundown teaching block into a rooftop-connected design school.
Beijing Normal University's Zhuhai campus sits on the northern foothills of Phoenix Mountain, six kilometers from the sea, and at its center stood the Yuanbo Building: fifteen separate cubes built around 2004, once home to design departments but by the late 2010s little more than a cluster of peeling paint, rusted steel, and overgrown courtyards. THAD was tasked not just with cosmetic repair but with a wholesale rethinking of how the 13,762 square meter complex could serve a new School of Future Design while meeting the university's carbon neutrality commitments.
What makes this project worth studying is not the sustainability label itself but the method: a dry-hanging red brick and GRC cladding system laid over the original facades without demolishing them, a continuous loop of stairs and corridors stitching fifteen rooftops into a single circulation path, and a central cube converted from a neglected void into a skylit exhibition hall. The renovation treats the existing structure as a found object, adding layers rather than subtracting them, and the result is a campus building that finally reads as one thing instead of fifteen.
Skin Over Skin: The Brick Envelope



The defining move is the dry-hanging brick wall system that wraps every cube in red brick cladding accented by a white grid. Rather than stripping the original facades, THAD layered new material over old, creating an air gap that doubles as thermal insulation in Zhuhai's subtropical heat. The system is fast to install, avoids wet-trade waste, and keeps the existing structure intact beneath. It is a pragmatic choice dressed in a material that echoes every other red brick building on campus, so the Yuanbo Building finally looks like it belongs.
At dusk the white canopy entrance between two red-paneled volumes catches interior light and broadcasts it outward, turning the threshold into a lantern. GRC panels and perforated aluminum wrap the rooftop corridors, lightening the mass at the crown and signaling that everything above the original roofline is new. U-glass caps the central white box, diffusing daylight into the atrium below while keeping solar gain manageable.
The Rooftop Loop



Fifteen cubes that once stood apart are now linked by a continuous belt of corridors, staircases, and terraces running across their rooftops. Seen from above, the loop reads as a red running track bordered by green grass and yellow wood decking, turning dead roof area into the most public space in the building. Students jog, sit, and move between departments without descending to ground level, which is precisely the kind of incidental encounter a design school needs.
The aerial views reveal how carefully this circulation spine negotiates the existing geometry. Each cube is rotated at a slightly different angle, so the connecting corridors bend and shift, wrapped in perforated aluminum to filter light and wind. The result is not a single clean line but a responsive path that acknowledges the original plan's irregularity rather than forcing it into order.
The Central Atrium


The most dramatic interior moment is the central cube, formerly an open-air courtyard choked with vegetation, now sealed under a glass roof and threaded with zigzagging orange staircases. The color is intentional and almost confrontational against the white walls, pulling the eye upward through five floors to a pyramidal skylight. Reconnected interior stairs make vertical circulation legible for the first time, and the space doubles as a venue for concerts, fashion shows, and exhibitions.
Openings at the base of the cube and the new skylight work together to generate a wind-drawing effect, pulling air through the atrium along the prevailing breeze path. Triangle scuttles in the platform punch sunlight into the previously dark entrance below. These are not token gestures toward passive design; they address a real problem in southern China, where mechanical cooling dominates energy budgets. By treating the atrium as a chimney, THAD reduces the hours the air conditioning system needs to run.
Courtyards and Preserved Trees



Two courtyards, one square and one circular, anchor the social life of the ground level. The circular sunken courtyard is ringed by red-roofed volumes and at dusk glows like an amphitheater, a ready-made stage for performances and gatherings. The square courtyard centers on a preserved phoenix tree, its red brick seating radiating outward. These spaces are designed for the kind of unstructured overlap between disciplines that rigid classroom blocks cannot provide.
Every existing tree on the site was kept. Because original drawings lacked accurate tree locations, THAD drew terraces around the actual root zones on site, adjusting geometry in real time. That decision preserved the campus's mature canopy and its carbon sequestration capacity, but it also gave the ground plane a loose, negotiated quality that feels less institutional and more like a garden someone has been tending for twenty years.
Climate Response in the Details


Zhuhai's hot, humid climate demands more than good intentions. The facade and window casing system is designed to block direct sunlight from reaching classrooms, while new openings in atrium walls, sized and positioned with ventilation software, create cross-ventilation corridors. During transitional seasons, operable windows allow the building to breathe without mechanical assistance. The dry-hanging brick wall itself acts as a rain screen and heat buffer, keeping the thermal mass of the original concrete structure shielded from afternoon sun.
THAD frames the sustainability strategy across four domains: energy, construction, operation, and education. The last category matters more than it might seem. Graduates of the School of Future Design carry these principles into careers in rural and urban communities across the Greater Bay Area. A building that teaches by example, where students can literally see how their atrium ventilates and how their roof garden retains stormwater, has a multiplier effect that outlasts any single energy audit.
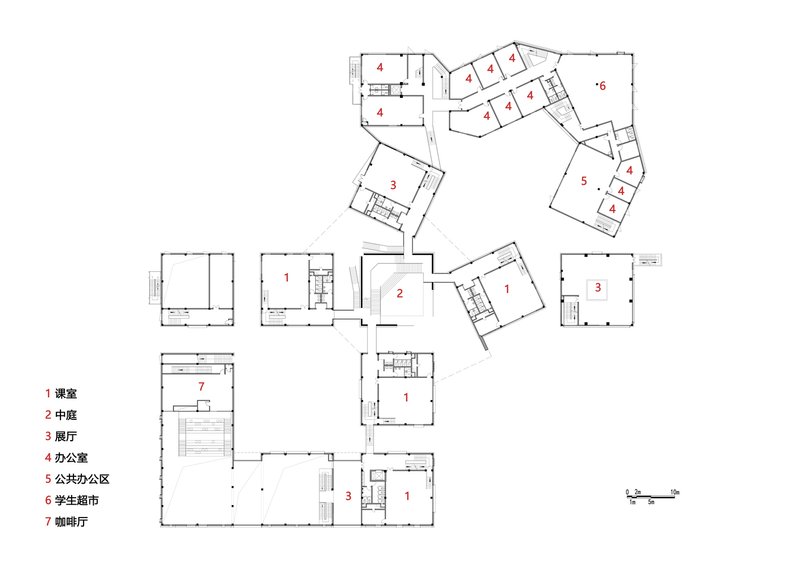
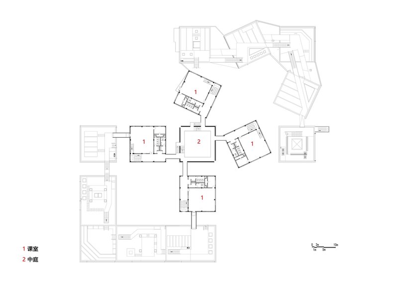
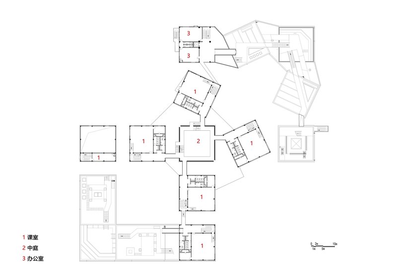
Plans and Drawings










The site plan makes the organizational logic legible: fifteen rectangular volumes radiate from a central core at varied angles, linked by circulation corridors that wrap around two circular courtyards. Floor plans at successive levels show how the connective tissue thickens as you rise, until at the roof level the loop is complete. Detail drawings of the window and wall assemblies reveal the layered construction: original concrete, air gap, dry-hung brick, and the precise placement of shading devices. The east and west elevations show how fenestration patterns and horizontal banding unify cubes that were originally designed as separate structures.
Why This Project Matters
Campus renovations rarely receive the attention of new builds, partly because they lack the clean conceptual narrative that a blank site affords. The Yuanbo Building is interesting precisely because it refuses to start over. THAD's strategy of layering new skins, circulation, and program onto a flawed original structure demonstrates that the most sustainable square meter is one you do not demolish. The dry-hanging brick system, the rooftop loop, and the converted central atrium are all additive moves that respect the carbon already embedded in the concrete below.
More broadly, the project proposes a model for how aging university buildings across southern China might be upgraded without the cultural and environmental cost of demolition. It shows that you can give a building a new identity, a new program, and significantly better environmental performance while keeping its bones. For a school that trains the next generation of designers, that lesson is as important as anything taught in a lecture hall.
Yuanbo Building at BNU Zhuhai by THAD. Beijing Normal University Zhuhai Campus, Zhuhai, Guangdong, China. 13,762 m². Renovation completed 2021. Photography by Wu Qingshan.
About the Studio
Share Your Own Work on uni.xyz
If projects like this are the kind of work you want to make, uni.xyz is a place to publish your own, find collaborators, and enter design competitions.
Popular Articles
Popular articles from the community
Rojkind Arquitectos and Think Parametric Build a Glueless Pavilion from 67 Interlocking Panels
A serpentine fiber-cement installation in Chapultepec Park celebrates a decade of architectural media in Mexico City.
Bernardes Arquitetura Stretches a Timber Roof Along a Reservoir's Edge in Minas Gerais
Dam House in Itaúna lets a sweeping wooden canopy dissolve the boundary between hillside terrain and open water.
3dor Concepts Wraps a Kerala Home in Mirrored Concrete Arcs Around a Courtyard Tree
In the Western Ghats foothills of Thamarassery, a 270 m² single-story house uses two curved volumes to frame nature as its center.
Fausto Terán and Toro Fuse Japanese Craft with Mexican Tradition in a Lakeside Retreat
Nakamura House pairs Shou-Sugi-Ban charred pine with handmade clay tile at the foot of Atlangatepec Lagoon in Mexico.
Similar Reads
You might also enjoy these articles
Bamboo Housing Challenge 2026: Design Affordable, Sustainable Homes Using Bamboo
An international design competition by Bamboo U and IBUKU inviting architects and designers to reimagine affordable housing using bamboo — with the winning design built full-scale in Bali.
Computational Design & Education: Beegraphy Design Awards Introduces 7th Category (Featuring Jiyun's Innovative Approach)
Dive into Beegraphy’s 7th Design Awards category, where computational design meets education to create immersive, interactive learning tools, inspired by Jiyun’s work.
From Parametric Lighting to Urban Furniture: Join the 2nd Workshop in Beegraphy’s Computational Design Series
Dive into Cutting-Edge Design Techniques and Practical Applications with Industry Experts
Introducing Sphere by UNI: Pioneering a New Era in AEC Industry
Unlocking Global Potential with BIM and Agile Management
Explore Architecture Competitions
Discover active competitions in this discipline
The International Standard for Design Portfolios
The Global Benchmark for Architecture Dissertation Awards
The Global Benchmark for Graduation Excellence
Challenge to reimagine the Iron Throne
Comments (0)
Please login or sign up to add comments
No comments yet. Be the first to comment!