Sustainable Family Home Design: Cloud Street by Steffen Welsch Architects
Cloud Street by Steffen Welsch Architects redefines sustainable family home design through passive solar strategies, energy efficiency, and community integration.
Sustainable architecture is redefining the future of residential design, balancing environmental responsibility with modern family living. Cloud Street, a family home in Northcote, Australia, designed by Steffen Welsch Architects, exemplifies this approach. Integrating passive solar principles, energy-efficient materials, and an open, community-centered layout, this project challenges the notion that larger homes cannot be environmentally sensitive.



A Modest Approach to Spacious Living
Cloud Street is a 341-square-meter home designed to harmonize with its suburban surroundings. Despite its size, the design ensures that the structure does not overpower the neighborhood, embracing a philosophy where the home acts as a subtle background to its environment rather than dominating it. This principle is evident in its spatial arrangement, material selection, and connection with the street.

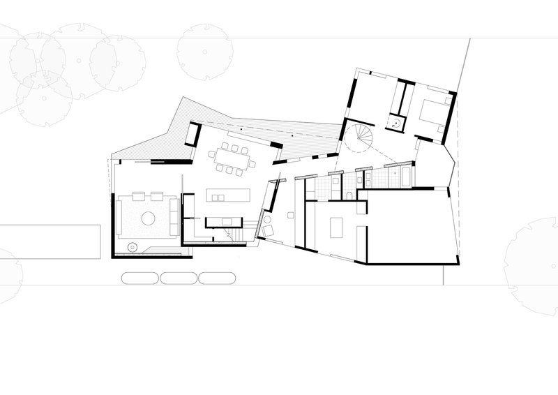
The house is divided into four distinct zones, each catering to different functions. At the heart of the layout is a communal living space that opens onto a north-facing courtyard garden, maximizing sunlight and natural ventilation. The parents' and children's wings are positioned on either side of this core, ensuring privacy while maintaining a visual and spatial connection. The southern section houses utilities, reinforcing the home's efficiency-driven design.


A Unique Architectural Form
One of Cloud Street’s most distinctive features is its non-rectangular room shapes. Angled walls and sloped ceilings break down the home's visual mass, making the structure feel more organic and adaptable. Two double-story pavilions define the main living spaces—one for the parents at the rear and one for children and guests at the front.


The parents' section remains secluded, with a staircase discreetly placed behind the kitchen leading to a private bedroom and terrace. In contrast, the children’s wing features playful design elements, including an open timber staircase and a fireman’s pole, adding a dynamic, interactive quality to the space. This front wing connects directly to the garden, which seamlessly blends with the neighborhood, reinforcing a sense of openness and community.


Passive Solar and Energy-Efficient Strategies
Sustainability is at the core of Cloud Street’s design. The home employs passive solar principles to regulate indoor temperatures naturally, reducing dependence on mechanical climate control. Large north-facing windows, a shaded veranda, and strategically placed openings maximize sunlight in winter while preventing overheating in summer.



A central rammed earth spine runs through the house, acting as a thermal mass that stabilizes indoor temperatures. This material was chosen not only for its sustainability and low embodied carbon but also for its acoustic benefits and the way it interacts with natural light. The home also features thick walls with integrated automated awnings, further optimizing temperature regulation.



Materiality and Connection to Nature
The exterior of Cloud Street is clad in timber, a material selected for its ability to age gracefully and form a symbiotic relationship with its environment. This choice reinforces the home’s connection to nature, allowing it to evolve over time rather than remain static. The removal of the front fence and the introduction of a native-planted front yard contribute to this sense of openness, inviting engagement with the community.


Internally, natural materials are prioritized, ensuring a warm and tactile living environment. Timber detailing, natural finishes, and an emphasis on light-filled spaces create a home that feels both grounded and airy. Every material decision reflects a commitment to reducing environmental impact while enhancing the daily living experience.


Achieving Low Carbon Impact
One of the most significant achievements of Cloud Street is its drastically reduced global warming potential. A life cycle analysis of the home demonstrated a 230% saving in emissions compared to the average Australian dwelling. This remarkable statistic proves that even large family homes can be designed with a minimal carbon footprint when sustainability is a core priority.


By focusing on passive design, durable materials, and community integration, Cloud Street sets a precedent for future residential architecture. It challenges conventional expectations of large homes, proving that spacious living can coexist with environmental responsibility.


Cloud Street by Steffen Welsch Architects is an exemplar of Sustainable Family Home Design. By blending passive solar strategies, innovative spatial planning, and a deep respect for its surroundings, this project redefines what a family home can be. It serves as a model for homeowners and architects alike, demonstrating that sustainability and spaciousness are not mutually exclusive but can coexist harmoniously in contemporary architecture.



All photographs are works of Tom Ross
Popular Articles
Popular articles from the community
Filtering Space: A Gradual Spatial Experience
From urban intensity to spatial calm.
Marvila Apartment Renovation in Lisbon: A Bright Minimalist Attic Transformation by KEMA Studio
Bright attic transformed into minimalist Lisbon apartment with skylights, sustainable materials, open plan layout, and industrial-inspired interior design elements.
Alton Cliff House: A Harmonious Retreat by f2a Architecture in Lake Country, Canada
Alton Cliff House blends corten steel, prefabrication, and sustainable design, creating a luxurious, energy-efficient retreat perched on Canadian cliffs.
Free Architecture Competitions You Can Enter Right Now
No entry fees, real prizes. Here are the best free architecture competitions open for submissions in 2026.
Similar Reads
You might also enjoy these articles
Bamboo Housing Challenge 2026: Design Affordable, Sustainable Homes Using Bamboo
An international design competition by Bamboo U and IBUKU inviting architects and designers to reimagine affordable housing using bamboo — with the winning design built full-scale in Bali.
Computational Design & Education: Beegraphy Design Awards Introduces 7th Category (Featuring Jiyun's Innovative Approach)
Dive into Beegraphy’s 7th Design Awards category, where computational design meets education to create immersive, interactive learning tools, inspired by Jiyun’s work.
From Parametric Lighting to Urban Furniture: Join the 2nd Workshop in Beegraphy’s Computational Design Series
Dive into Cutting-Edge Design Techniques and Practical Applications with Industry Experts
Explore Architecture Competitions
Discover active competitions in this discipline
The International Standard for Design Portfolios
The Global Benchmark for Architecture Dissertation Awards
The Global Benchmark for Graduation Excellence
Challenge to reimagine the Iron Throne
Comments (0)
Please login or sign up to add comments
No comments yet. Be the first to comment!